Vibrofix

Звукоизоляция в черновой квартире (перегородки, примыкания)

Обговорення проблем захисту від шуму, звукоізоляції приміщень, віброізоляції обладнання.
Проєктування, матеріали, вимірювання

Звукоизоляция в черновой квартире (перегородки, примыкания)

Postby pakhomovmv » 14 Jul 2018, 22:58

Добрый вечер!
Хочу Звукоизоляцию пола и стен сделать – по начинке определился уже, далее думал всё просто, но начал чуть глубже смотреть и понимаю, что нужно для начала какой-то план/схему/проект составить, а то всё напрасно может быть иначе :).

Имеется квартира черновая 65 м.кв. пока еще без стен, т.е. перегородок на последнем этаже … потолок – это по сути крыша дома (мягкая кровля на стропилах).
Стены буду делать каркасные (профиль, гвл+гкл, ЗИ вата), и в некоторых местах облицовка каркасная. Сначала думал всё по кругу в каркасной облицовке, а затем перегородки, но потом подумал, что это не везде нужно.

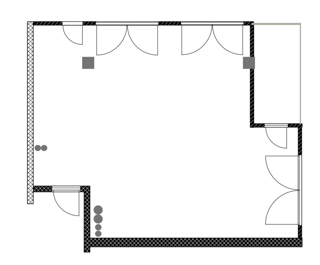
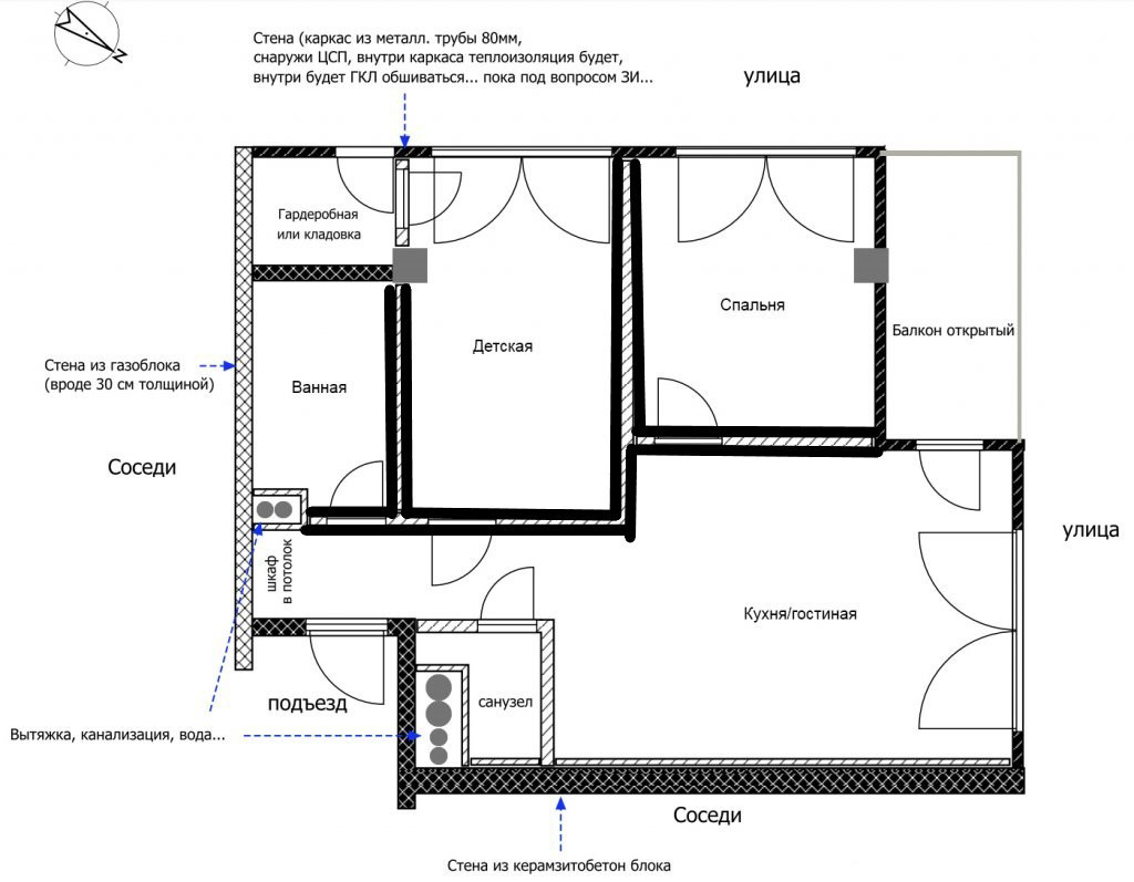
На картинках: пустая квартира, и как планирую выставить стены/облицовки.
flat_empty.jpg
пустая квартира
flat_empty.jpg (58.87 KiB) Viewed 10292 times

flat_1.jpg
с перегородками
flat_1.jpg (92.7 KiB) Viewed 10292 times


Прошу подсказать по ЗИ: по примыканиям стен и облицовок всё ли верно для ЗИ, и по наличию/уместности той или иной стены.

Конкретнее:

1. Сначала планирую закрыть в каркасах (профиль 50 + вата + гкл+гкл) трубы.
Вопрос: нужно ли дополнительно сами трубы ЗИ? Просто этаж верхний и мимо пролетать в трубах нечему… или все равно с нижних этажей будет звук?

2. Затем облицовка каркасная нижней стены (профиль 75 (или 100) + вата + гвл+гкл). И каркасная перегородка санузла (профиль 2*50 + вата + гвл+гкл).
Вопрос: для ЗИ лучше сначала перегородку, а потом облицовку в гостиной и санузле (как на картинке)? Тут встает вопрос еще – нужная ли облицовка в санузле в таком случае?
Или лучше всё-таки на всю стену облицовку сделать, а к ней уже перегородку санузла примкнуть?

3. Стену слева сначала тоже думал в каркасной облицовке сделать, но потом подумал, что для ванной и кладовки не важна ЗИ, а в коридоре будет шкаф в потолок… тоже наверное не нужна ЗИ. Т.е. мне главное, чтобы я не слышал соседей, и они меня не слышали именно в комнатах и гостиной.
Поэтому уже внутри квартиры сами перегородки сделать на сдвоенном каркасе (профиль 2*50 + вата + гвл+гкл) – что и даст ЗИ.
Вопрос: Верно ли рассуждение о стене слева?

4. Внутри квартиры сами перегородки планирую на сдвоенном независимом каркасе (профиль 2*50 + вата + гвл+гкл).
Вопрос: Т.к. у меня там межкомнатные двери без порогов будут, то не потеряется ли смысл двойного независимого каркаса, т.к. двери будут мостиками?

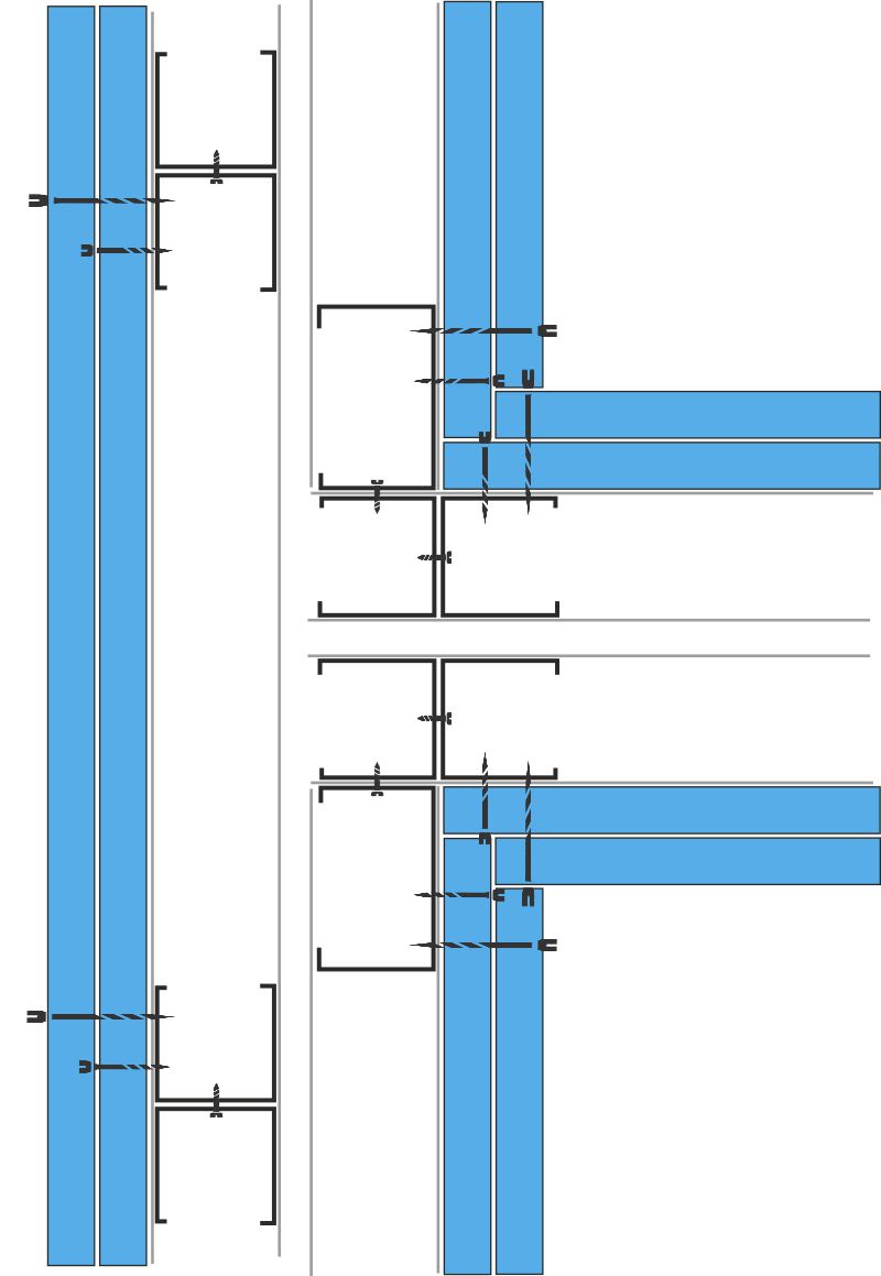
5. На схеме ниже видно, как это планирую делать перегородки … по примыканиям к стенам и между собой. Жирными линиями выделены как бы каркасы независимые перегородок.
flat_11.jpg
жирными линиями - каркасы
flat_11.jpg (118.64 KiB) Viewed 10292 times


Вопрос: корректно ли указан по примыканиям по ЗИ?

6. Шов в стяжке обязательно должен быть между каркасами? Или можно с одной стороны от двух каркасов?


ЗАРАНЕЕ СПАСИБО!
pakhomovmv
 
Posts: 54
Joined: 14 Jul 2018, 14:18
Location: г. Сочи

Re: Звукоизоляция в черновой квартире (перегородки, примыкания)

Postby pakhomovmv » 14 Jul 2018, 23:04

Еще пару вопросов забыл написать:
7. Вот схемы для углов с двойной обшивкой: внешних и внутренних углов для независимых каркасов, и Т-образное примыкание.
Верно так?
angle.jpg
angle.jpg (60.13 KiB) Viewed 10291 times

T-angle_50-50.jpg
T-angle_50-50.jpg (78.6 KiB) Viewed 10291 times


8. По поводу кабелей в гофрах внутри перегородки где можно найти информацию? Например:
- При выходе кабеля в гофре из стяжки внутрь перегородки - нужно ли оборачивать/обмазывать чем-то гофру, чтобы с профилем не касалась?
- Внутри самой перегородки кабель в гофре при протаскивании через отверстия в ПС чем то изолировать (оборачивать/обмазывать)?
- Внутри самой перегородки кабель в гофре - прижимается ватой ЗИ к одной из обшивок? Или же нужно утапливать кабель в вату (надрезав например её)?
В общем может есть ряд требований/рекомендаций/технологий по этой теме?
pakhomovmv
 
Posts: 54
Joined: 14 Jul 2018, 14:18
Location: г. Сочи

Re: Звукоизоляция в черновой квартире (перегородки, примыкания)

Postby Андрей Смирнов » 15 Jul 2018, 11:20

Вы задаете очень много вопросов и рассматриваете достаточно объемную проблему ЗИ квартиры в целом, и хотите решить эту проблему с помощью форума. Это не совсем правильно и выходит за рамки любого профильного форума, где можно получить ответы только на наиболее общие вопросы.
Набор ответов на ваши вопросы будет представлять собой почти полноценный проект :)
Тем не менее, ваш подход к организации перегородок, их конструкции и узлам сопряжения вполне приемлем.
Если двери будут без стационарных порогов, то в дверных полотнах рекомендуется предусмотреть монтаж автоматических выпадающих порогов http://www.acoustic.ua/recommendations/851
Важно исключить распространение звука косвенными путями, например, по стропильной конструкции кровли.
Для этого в каждой комнате после монтажа перегородок рекомендуется выполнить подвесной потолок с двой ной обшивкой ГКЛ 12,5 мм (лучше ГВЛ 12,5 мм), с заполнением каркасов акустической ватой и закреплением каркаса подвесного потолка с помощью звукоизоляционных креплениq Vibrofix PU.
...ничто не слишком...(с) Кармадон, "Альтист Данилов"
http://www.akustik.ua - акустическое проектное бюро
http://www.acoustic.ua - звукоизоляционные материалы
............................................
User avatar
Андрей Смирнов
Soundmoderator
 
Posts: 8791
Joined: 29 Aug 2006, 12:24
Location: Украина, Киев

Re: Звукоизоляция в черновой квартире (перегородки, примыкания)

Postby pakhomovmv » 15 Jul 2018, 18:26

Андрей, добрый день! Спасибо за ответы и советы.

Прошу прощения, что так сразу вывалил кучу вопросов. На проект я не рассчитывал :). Просто подумал, что если бы задал вопросы в общем... типа "из чего сделать перегородки, чем заполнить, как вообще всё делать и т.п...", то это было бы неправильно. Поэтому сначала поизучал насколько мог моменты по ЗИ, во многих моментах определился для себя и остались уже более конкретные вопросы, которые хотел бы уточнить уже более конкретно.

Если не затруднительно, то хотел бы тогда получить ответы на наиболее интересующие меня вопросы: 4, 5 и 7.

Заранее СПАСИБО!
pakhomovmv
 
Posts: 54
Joined: 14 Jul 2018, 14:18
Location: г. Сочи

Re: Звукоизоляция в черновой квартире (перегородки, примыкания)

Postby Андрей Смирнов » 15 Jul 2018, 21:14

Так я ответил конкретно на вопросы 4, 5 и 7.
...ничто не слишком...(с) Кармадон, "Альтист Данилов"
http://www.akustik.ua - акустическое проектное бюро
http://www.acoustic.ua - звукоизоляционные материалы
............................................
User avatar
Андрей Смирнов
Soundmoderator
 
Posts: 8791
Joined: 29 Aug 2006, 12:24
Location: Украина, Киев

Re: Звукоизоляция в черновой квартире (перегородки, примыкания)

Postby pakhomovmv » 15 Jul 2018, 22:20

ОК! Спасибо! Я понял.
pakhomovmv
 
Posts: 54
Joined: 14 Jul 2018, 14:18
Location: г. Сочи

Re: Звукоизоляция в черновой квартире (перегородки, примыкания)

Postby Hadgusya » 31 Jul 2018, 11:17

Здравствуйте!
Озадачился звукоизоляцией спален. Материал выбрал - будет состоять из 3 слоев (K-foniks, минвата, СМЛ на металлокаркасе). Обшивка СМЛ планируется - стены+потолок. Вопрос в узле примыкания стеновых и потолочных листов СМЛ с креплением самого каркаса - как правильно исполнить? Стыковать стеновой каркас к потолочному или потолочный каркас к становому? И можно ли развязать каркасы от основных стен и потолка (не крепить направляющие к основным стенам и потолку) - типа: коробка в коробочке (прямые подвесы не учитываются)?
Hadgusya
 
Posts: 4
Joined: 31 Jul 2018, 08:24

Re: Звукоизоляция в черновой квартире (перегородки, примыкания)

Postby Андрей Смирнов » 31 Jul 2018, 12:29

К чему в данном случае K-fonik? Функцию звукопоглотителя акустическая вата выполняет гораздо лучше.
СМЛ не самый лучший выбор для ЗИ из-за высокой жесткости плит. Даже обычный ГКЛ предпочтительнее, не говоря уже о ГВЛ или Кнауф Сапфир/Титан/Диамант...
Более эффективно монтировать сначала потолок, затем стены, но это если не так важна звукоизоляция между комнатами в самой квартире.
Можно реализовать принцип комната в комнате без закрепления облицовок к стенам и потолку.
Но в этом случае каркас стеновых облицовок должен быть несущим, а сверху на него должны опираться самонесущие балки перекрытия потолка.
Минусы: каркасы очень массивные и вес всей конструкции прикладывается только к полу, что может быть нежелательно.
Поэтому нагрузку обычно распределяют с помощью звукоизоляционных креплений.

Комната в комнате Vibrofix.JPG
Комната в комнате Vibrofix.JPG (11.59 KiB) Viewed 10192 times
...ничто не слишком...(с) Кармадон, "Альтист Данилов"
http://www.akustik.ua - акустическое проектное бюро
http://www.acoustic.ua - звукоизоляционные материалы
............................................
User avatar
Андрей Смирнов
Soundmoderator
 
Posts: 8791
Joined: 29 Aug 2006, 12:24
Location: Украина, Киев

Re: Звукоизоляция в черновой квартире (перегородки, примыкания)

Postby Hadgusya » 31 Jul 2018, 14:00

Здравствуйте Андрей!
С акустической ватой лично не знаком, с K-Fonik знаком хорошо. По моему личному, субъективному мнению, K-fonik работает лучше относительно ваты при меньшей толщине. При этом вату планирую использовать вторым слоем (не акустическая конечно, но то что доступно).
Про СМЛ - учту. Выбор пал на СМЛ именно по причине большой жесткости и большей несущей способности (навешивание мебели и ТВ) и малой деформации в случае аварийного потопа.
Что значит: "эффективно монтировать сначала потолок, затем стены, если не так важна звукоизоляция между комнатами"??? Звукоизоляция - на первом месте. На картинке указана обратная последовательность - так более правильно с точки зрения последовательности и эффективности???
Коробка в коробочке - я имел ввиду, что на пол крепиться стеновая направляющая, на потолок и стены крепятся прямые подвесы. Профиля ПП и СП собираются в единую конструкцию без крепления в верхней угловой зоне комнаты к основным перекрытиям и ограждениям!
Вашу схему я понял - пару раз видел.

P.S.: Я не строитель - я занимаюсь инженерным направлением. Основное - промышленная гидравлика и вентиляция (от сюда и идет мое знакомство с K-flex)
Hadgusya
 
Posts: 4
Joined: 31 Jul 2018, 08:24

Re: Звукоизоляция в черновой квартире (перегородки, примыкания)

Postby Андрей Смирнов » 31 Jul 2018, 14:14

Забудьте о звукоизоляционном своем опыте в области вентиляции. В строительной акустике действуют совершенно другие законы.
K-fonik это пористый звукопоглотитель, как и минеральная вата.
Но звукоизоляцию в облицовке определяет не звукопоглотитель, а конструкция в целом http://www.acoustic.ua/recommendations/743
На иллюстрации один из вариантов реализации принципа комната в комнате.
Вам я порекомендовал сначала смонтировать потолок, а потом стены.
...ничто не слишком...(с) Кармадон, "Альтист Данилов"
http://www.akustik.ua - акустическое проектное бюро
http://www.acoustic.ua - звукоизоляционные материалы
............................................
User avatar
Андрей Смирнов
Soundmoderator
 
Posts: 8791
Joined: 29 Aug 2006, 12:24
Location: Украина, Киев

Re: Звукоизоляция в черновой квартире (перегородки, примыкания)

Postby Hadgusya » 31 Jul 2018, 14:26

Спасибо за ЛикБез!
Hadgusya
 
Posts: 4
Joined: 31 Jul 2018, 08:24

Re: Звукоизоляция в черновой квартире (перегородки, примыкания)

Postby Андрей Смирнов » 31 Jul 2018, 20:09

Ответ пропитан сарказмом :)
...ничто не слишком...(с) Кармадон, "Альтист Данилов"
http://www.akustik.ua - акустическое проектное бюро
http://www.acoustic.ua - звукоизоляционные материалы
............................................
User avatar
Андрей Смирнов
Soundmoderator
 
Posts: 8791
Joined: 29 Aug 2006, 12:24
Location: Украина, Киев

Re: Звукоизоляция в черновой квартире (перегородки, примыкания)

Postby Hadgusya » 01 Aug 2018, 08:45

Ни в коем разе!
Это честное признание моей безграмотности (или отсутствия знаний)!
Hadgusya
 
Posts: 4
Joined: 31 Jul 2018, 08:24

Re: Звукоизоляция в черновой квартире (перегородки, примыкания)

Postby johnson » 10 Aug 2018, 20:01

pakhomovmv wrote:Еще пару вопросов забыл написать:
8. По поводу кабелей в гофрах внутри перегородки где можно найти информацию? Например:
- При выходе кабеля в гофре из стяжки внутрь перегородки - нужно ли оборачивать/обмазывать чем-то гофру, чтобы с профилем не касалась?
- Внутри самой перегородки кабель в гофре при протаскивании через отверстия в ПС чем то изолировать (оборачивать/обмазывать)?
- Внутри самой перегородки кабель в гофре - прижимается ватой ЗИ к одной из обшивок? Или же нужно утапливать кабель в вату (надрезав например её)?
В общем может есть ряд требований/рекомендаций/технологий по этой теме?


Залили уже стяжку? вывели гофру?
самому предстоит то же самое, интересно, как получилось.
johnson
 
Posts: 134
Joined: 31 Jul 2017, 18:39
Location: Рига, Латвия

Re: Звукоизоляция в черновой квартире (перегородки, примыкания)

Postby pakhomovmv » 10 Aug 2018, 20:03

johnson, не, пока еще дело не дошло :)... в отпуске... буду примерно через месяц приступать только
pakhomovmv
 
Posts: 54
Joined: 14 Jul 2018, 14:18
Location: г. Сочи

Re: Звукоизоляция в черновой квартире (перегородки, примыкания)

Postby Колобочек » 02 Mar 2019, 17:49

Андрей, квартира без межкомнатных стен.
Подскажите, пожалуйста, какой вариант ЗИ от НЧ и СЧ лучше:
1. Плавающий пол(швы по границам комнат), единый потолок на вибро подвесах на всю площадь квартиры, облицовки и перегородки на независимых каркасах(пол-потолок)
2. Плавающий пол(швы по границам комнат), потолок на вибро подвесах (отдельно на каждую комнату-не примыкает к другим комнатам), облицовки и перегородки на независимых каркасах(пол-потолок)
3. Плавающий пол(швы по границам комнат), облицовки и перегородки на независимых каркасах(пол-потолок), потолок на вибро подвесах в каждой комнате
4. Плавающий пол(швы по границам комнат), облицовки и перегородки на независимых каркасах(пол-потолок), потолок без крепления к перекрытию, а только к облицовкам и перегородкам
Колобочек
 
Posts: 11
Joined: 01 Mar 2019, 12:09

Re: Звукоизоляция в черновой квартире (перегородки, примыкания)

Postby Андрей Смирнов » 03 Mar 2019, 14:55

Колобочек wrote:Андрей, квартира без межкомнатных стен.
Подскажите, пожалуйста, какой вариант ЗИ от НЧ и СЧ лучше:
1. Плавающий пол(швы по границам комнат), единый потолок на вибро подвесах на всю площадь квартиры, облицовки и перегородки на независимых каркасах(пол-потолок)
2. Плавающий пол(швы по границам комнат), потолок на вибро подвесах (отдельно на каждую комнату-не примыкает к другим комнатам), облицовки и перегородки на независимых каркасах(пол-потолок)
3. Плавающий пол(швы по границам комнат), облицовки и перегородки на независимых каркасах(пол-потолок), потолок на вибро подвесах в каждой комнате
4. Плавающий пол(швы по границам комнат), облицовки и перегородки на независимых каркасах(пол-потолок), потолок без крепления к перекрытию, а только к облицовкам и перегородкам

Если основная задача ЗИ от соседей сверху, то п. 1.
Если основная задача ЗИ между комнататми, то п. 2 и п. 4.
Если я вас правильно понял... :)
...ничто не слишком...(с) Кармадон, "Альтист Данилов"
http://www.akustik.ua - акустическое проектное бюро
http://www.acoustic.ua - звукоизоляционные материалы
............................................
User avatar
Андрей Смирнов
Soundmoderator
 
Posts: 8791
Joined: 29 Aug 2006, 12:24
Location: Украина, Киев

Re: Звукоизоляция в черновой квартире (перегородки, примыкания)

Postby Колобочек » 04 Mar 2019, 11:01

Большое спасибо!
Забыл указать, что вариант 1 и 2 перегородки крепятся к виброизолированному потолку, а варианты 3 и 4 просто к плите перекрытия.
А 2 вариант не подходит для ЗИ от соседей сверху? Хотелось бы защиты в первую очередь от соседей, но и о детях в соседних комнатах не хотелось бы забывать.
По единому запотолочному пространству не будет звук проникать в соседние комнаты, если не будет перегородок в плиту перекрытия, а только в вибро потолок?
А в варианте 1 по единому потолку не будут передаваться шумы между комнатами?

Хотелось бы в крайней комнате установить ДК, а в смежной комнате будет детская. Хватит ли ЗИ, если между этими комнатами будет перегородка по 2 варианту на 2-х 50мм каркасах с промежутком между каркасами 10мм и заполнением каждого каркаса 50-мм ватой. С каждой стороны будет по 3 слоя ГВЛ или ГСП. Или необходимы каркасы на 100мм с двумя слоями ваты в каждом с промежутком между каркасами 10мм и 4 слоя ГВЛ или ГСП с каждой стороны?
А выдержат ли подвесы если к виброизолированому потоку будут крепиться перегородки с 4 слоями ГВЛ?
Колобочек
 
Posts: 11
Joined: 01 Mar 2019, 12:09

Re: Звукоизоляция в черновой квартире (перегородки, примыкания)

Postby Андрей Смирнов » 04 Mar 2019, 11:17

Для звукоизоляции между комнатами перегородки правильно примыкать к перекрытиям пола и потолка,и потом к ним примыкать подвесным потолком.
Для звукоизоляции от соседей сверху более эффективно выполнять сначала подвесной потолок и примыкать к нему перегородками.
В этом случае для увеличения ЗИ между комнатами можно выполнить перегородки на двух независимых каркасах, с примыканием к подвесному потолку, в котором выполнен акустический шов вдоль перегородки.
Сделать так, чтобы в пределах одной квартиры не было слышно сабвуфера домашнего кинотеатра практически невозможно.
...ничто не слишком...(с) Кармадон, "Альтист Данилов"
http://www.akustik.ua - акустическое проектное бюро
http://www.acoustic.ua - звукоизоляционные материалы
............................................
User avatar
Андрей Смирнов
Soundmoderator
 
Posts: 8791
Joined: 29 Aug 2006, 12:24
Location: Украина, Киев

Re: Звукоизоляция в черновой квартире (перегородки, примыкания)

Postby Колобочек » 04 Mar 2019, 13:20

Огромное спасибо!
И вопрос по акустическому шву:
1. Надо делать общий потолок на всю квартиру, а потом болгаркой пропиливать акустический шов шириной 10 мм по габаритам комнат.
2. Делать отдельный потолок над каждой комнатой с расстоянием(акустический шов) между соседними комнатами.

И сколько акустический шов должен иметь в ширину?
Требуется ли его чем-нибудь заполнять или оставить просто воздух?

А для плавающего пола действия такие-же?
1. Надо делать общий пол на всю квартиру, а потом болгаркой пропиливать акустический шов по габаритам комнат. А на какую глубину? до ваты или до перекрытия? В этом случае армирующую сетку располагать под будущим акустическим швом и потом её пропиливать или не доводить до будущего шва и оставить промежуток, чтобы легче пропиливать?
2. Делать отдельный пол под каждую комнату. Но тогда потребуется опалубка и время по заливке и высыханию увеличится минимум вдвое, так как смежные комнаты одновременно не залить.
Колобочек
 
Posts: 11
Joined: 01 Mar 2019, 12:09

Next

Return to Звукоізоляція

Who is online

Users browsing this forum: No registered users and 6 guests