Vibrofix

Комната для стерео и многоканала

Кімнати прослуховування, домашні кінотеатри, студії звукозапису, концертні зали, клуби, спортивні споруди, конференц-зали тощо. Звукопоглинальні матеріали, акустичні дифузори, бастрапи

Комната для стерео и многоканала

Postby fludimir » 25 Aug 2020, 05:01

Всем привет. Есть помещение которое можно полностью выделить под музыку, в котором я хочу сделать кдп для прослушивания стерео и многоканальной музыки, просмотра концертов и кино. Помещение не самое удобное в плане расположения окон и дверей, но возможности перепланировки ограничены только СНиПами :D Тем не менее дойдя до этапа планирования расположения акустики, техники, поглотителей оказалось что не все так просто и радужно, а даже местами несколько грустно, хотя изначально казалось что в выделенном большом помещении можно сделать все все. Но возможно я ввиду малого опыта проектирования кдп не вижу того что увидит специалист, потому и обращаюсь за помощью к уважаемому Андрею Смирнову и другим участникам форума .

Прикладываю изображения двух планировок которые я нарисовал, можно снести все внутренние перегородки и построить нужные заново (хотя санузел не хотелось бы переносить) если есть вариант лучше. Приоритетом для меня является качество стерео звука, однако расположение акустики и точки прослушивания по калькулятору для стерео проблематично ввиду необходимости разместить экран и тылы, и нужно придумать какое-то компромиссное решение. Снести все стены и получить большую но практически квадратную кдп мне кажется тоже не вариант.
Ради звукоизоляции и улучшения акустических свойств комнаты планируется делать комнату-в-комнате, что съест еще немного сантиметров, а также установить все необходимые поглотители и рассеиватели, но для начала нужно определиться с планировкой и расположением акустики. В вариантах которые я нарисовал мне не нравится, в первом ("горизонтальном"):
1 близость окна к левому фронту, и соответственно отсутствие симметрии для правого фронта
2 некоторые сложности с проходом на балкон при таком расположении дивана
3 есть возможность использовать стационарный экран на стене, однако предлагаемое калькулятором стерео расстояние между фронтами в 180см необходимо увеличить минимум до 270см чтобы видеть весь экран с точки прослушивания
во втором "вертикальном":
1 на фронтальной стене окно, причем несимметрично относительно продольной оси комнаты
2 сложности с рпасположением тылов и проходом в комнату, задние тылы могут быть только небольшими настенными
3 экран возможен только выдвижной звукопрозрачный, и хотя он позволяет разместить акустику именно там где говорит калькулятор для стерео (на плане ширина увеличена) - расстояние между точкой прослушивания и экраном будет слишком мало, нужно его каким-то образом увеличивать
4 сокращение размера кдп до 21м2 - не будет ли это преступлением против аудиофильского человечества? :D
К сожалению мне не хватает опыта оценить насколько эти проблемы критичны для "идеальной" кдп и насколько они трудноисправимы, так что хотелось бы услышать мнение по этому поводу тоже.

В расположении акустики я руководствовался такими мыслями - фронты должны быть расположены максимально близко к тому как предлагает калькулятор стерео, а для многоканала процессор внесет необходимую коррекцию. Точка прослушивания многоканала - диван в 38% от задней стены - не совпадает с точкой прослушивания стерео, однако т.к. стерео обычно для одного человека то это может быть решено креслом на колесиках .
Если я не прав или есть более подходящая методика для данного случая - буду рад ее услышать. Возможно точку прослушивания многоканала просто стоит перенести туда куда предлагает калькулятор стерео?

И последнее, если здесь есть кто-то увлеченный многоканальной музыкой (90% которой 5.1 или 4.0 миксы) и имеющий опыт ее прослушивания на различных многоканальных системах, то хотелось бы услышать мнение насколько хорошо пятиканальные миксы звучат в семи и более канальных системах? Возможно в моем случае дополнительная пара тылов будет скорее мешать и лучше от нее отказаться, соответственно упростив расположение АС.
Attachments
Clip303.png
Clip303.png (245.05 KiB) Viewed 33775 times
Clip301.JPG
Clip301.JPG (254.32 KiB) Viewed 33775 times
Clip300.png
Clip300.png (250.51 KiB) Viewed 33775 times
fludimir
 
Posts: 44
Joined: 23 Aug 2020, 01:04
Location: Харьков

Re: Комната для стерео и многоканала

Postby Андрей Смирнов » 25 Aug 2020, 10:07

Подходы к конфигурации и акустической отделке КДП и ДК (многоканальный звук) существенно отличаются.
Если вы хотите совместить, то нужно будет или колонки таскать или идти на какой-то компромисс в расстановке.
По планировке оба варианта приемлемы.
...ничто не слишком...(с) Кармадон, "Альтист Данилов"
http://www.akustik.ua - акустическое проектное бюро
http://www.acoustic.ua - звукоизоляционные материалы
............................................
User avatar
Андрей Смирнов
Soundmoderator
 
Posts: 8791
Joined: 29 Aug 2006, 12:24
Location: Украина, Киев

Re: Комната для стерео и многоканала

Postby fludimir » 25 Aug 2020, 20:31

Я понимаю что придётся идти на какие-то компромиссы, но в конце концов задача ведь должна быть решаемой, вряд-ли я первый кто захотел слушать и стерео и многоканальную музыку и смог выделить для этого всего одно помещение. :D
Я думаю отчасти задача облегчается тем что ввиду жанровых предпочтений мне подходит достаточно заглушенное помещение. Собственно в текущей комнате 17м2 которая используется для стерео и многканала RT близко к 0.25с .

Таскать тяжелые фронты (большая комната позволит поставить серьезные напольники в 30-40кг весом) не очень вариант, нужно придумать какую-то компромиссную расстановку.
Я понимаю что оба варианта планировки приемлемы, но выделяя отдельное помещение хочется добиться максимума , так какой вариант будет лучше?
fludimir
 
Posts: 44
Joined: 23 Aug 2020, 01:04
Location: Харьков

Re: Комната для стерео и многоканала

Postby Андрей Смирнов » 26 Aug 2020, 11:10

fludimir wrote:Я понимаю что оба варианта планировки приемлемы, но выделяя отдельное помещение хочется добиться максимума , так какой вариант будет лучше?

Вы не указали высоту помещения, а это важно для выбора.
...ничто не слишком...(с) Кармадон, "Альтист Данилов"
http://www.akustik.ua - акустическое проектное бюро
http://www.acoustic.ua - звукоизоляционные материалы
............................................
User avatar
Андрей Смирнов
Soundmoderator
 
Posts: 8791
Joined: 29 Aug 2006, 12:24
Location: Украина, Киев

Re: Комната для стерео и многоканала

Postby fludimir » 26 Aug 2020, 13:22

Высота 2.7м , как-то забыл указать, простите. Размер нарисованных комнат рассчитывались по этому калькулятору http://www.acoustic.ua/forms/calculator7_1.html чтобы попадали в рекомендованные значения. Я еще думал о таком варианте, но почитав ваши рекомендации в других темах похоже что симметрию выдержать важнее?
Attachments
Clip309.png
Clip309.png (216.36 KiB) Viewed 33751 times
fludimir
 
Posts: 44
Joined: 23 Aug 2020, 01:04
Location: Харьков

Re: Комната для стерео и многоканала

Postby Андрей Смирнов » 26 Aug 2020, 13:56

Предпочтительнее будет комната 24,6 м2.
...ничто не слишком...(с) Кармадон, "Альтист Данилов"
http://www.akustik.ua - акустическое проектное бюро
http://www.acoustic.ua - звукоизоляционные материалы
............................................
User avatar
Андрей Смирнов
Soundmoderator
 
Posts: 8791
Joined: 29 Aug 2006, 12:24
Location: Украина, Киев

Re: Комната для стерео и многоканала

Postby fludimir » 26 Aug 2020, 22:02

Ок, спасибо, возьму за основу этот вариант. Как быть с окном на боковой стене, в непосредственной близости к левому фронту? Повесить плотную штору несложно, но может ли это полностью решить проблему?

По калькулятору для стерео получается вот такое расположение:
Clip310.png
Clip310.png (70.71 KiB) Viewed 33746 times

К сожалению из-за многоканала не получится полностью придержаться этой расстановки, нужно увеличивать расстояние между АС и/или расстояние до точки прослушивания. Насколько сильно можно увеличить расстояние "c" учитывая что боковые стены могут быть обработаны как угодно, однако слева от левого фронта будет окно?

А по поводу расстояний d-e есть такой вопрос: меня всегда удивляло что по калькулятору для прямоугольной комнаты точку прослушивания рекомендуется располагать практически в центре комнаты, однако во всех комнатах которые выложены у вас на сайте точка прослушивания гораздо ближе к тыловой стене, почему так выходит? Я понимаю что каждый случай индивидуален, плюс могут быть личные предпочтения слушать акустику не в ближнем поле, но странно что они совпадают вот прямо у всех :D
fludimir
 
Posts: 44
Joined: 23 Aug 2020, 01:04
Location: Харьков

Re: Комната для стерео и многоканала

Postby Андрей Смирнов » 27 Aug 2020, 11:01

Калькулятор по дефолту рассчитывает расстановку АС и точки прослушивания по равностороннему треугольнику.
Этот подход пришел из студийной практики и некоторым аудиофилам нравится.
Но более приемлемой и распространенной я считаю расстановку по равнобедренному треугольнику со смещением ТП к тыловой стене.
...ничто не слишком...(с) Кармадон, "Альтист Данилов"
http://www.akustik.ua - акустическое проектное бюро
http://www.acoustic.ua - звукоизоляционные материалы
............................................
User avatar
Андрей Смирнов
Soundmoderator
 
Posts: 8791
Joined: 29 Aug 2006, 12:24
Location: Украина, Киев

Re: Комната для стерео и многоканала

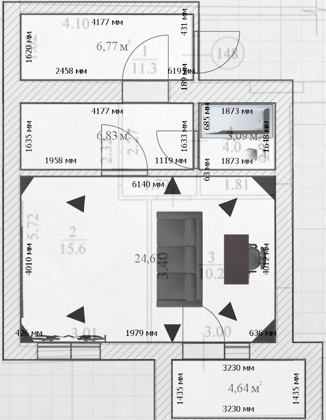
Postby fludimir » 12 Dec 2020, 03:45

Андрей Смирнов wrote:Предпочтительнее будет комната 24,6 м2.

В качестве альтернативы комнаты в 24,6м2 появилась возможность использовать другое помещение, примерно такого же размера но с другими пропорциями и без балкона, высота так же 270см, ширина +-15см. Мне этот вариант кажется гораздо удобнее и лучше, но хотелось бы услышать ваше мнение.
В эту комнату можно сделать дверь как из коридора так и из кухни, как будет лучше для расположения акустических панелей?
Attachments
147 музыкальная.png
147 музыкальная.png (164.71 KiB) Viewed 33187 times
fludimir
 
Posts: 44
Joined: 23 Aug 2020, 01:04
Location: Харьков

Re: Комната для стерео и многоканала

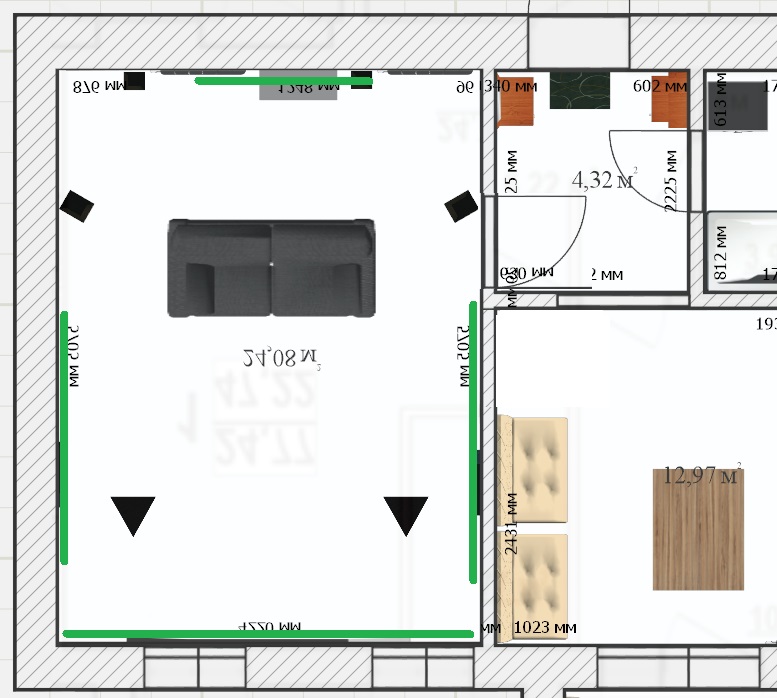
Postby Андрей Смирнов » 12 Dec 2020, 13:56

Хорошие пропорции, почти по Лаудену, 1971 :)
Дверь по центру боковой стены не очень удобна и тыловая стена с окнами не годится.
Если есть возможность, рекомендую комнату развернуть на 180 градусов и перенести дверь в коридор.
Это сразу дает множество плюсов!
На фронтальной стене с окнами штора, что для акустики хорошо и для функционала комнаты.
В передней части комнаты появляются места для акустических конструкций в нужных местах (выделено зеленым).
На тыловой стене можно установить диффузор, полки и закрытые системы хранения.

fludi.jpg
fludi.jpg (153.71 KiB) Viewed 33168 times


Пример:

hik.jpg
hik.jpg (128.01 KiB) Viewed 33168 times
...ничто не слишком...(с) Кармадон, "Альтист Данилов"
http://www.akustik.ua - акустическое проектное бюро
http://www.acoustic.ua - звукоизоляционные материалы
............................................
User avatar
Андрей Смирнов
Soundmoderator
 
Posts: 8791
Joined: 29 Aug 2006, 12:24
Location: Украина, Киев

Re: Комната для стерео и многоканала

Postby fludimir » 13 Dec 2020, 06:04

Квартира по пропорциям комнаты и выбиралась :D
Спасибо за такой вариант с примером, видел эту комнату у вас на сайте, хотя на себя примерить как-то не сообразил. Возможность развернуть все на 180 конечно есть, обдумаю этот вариант, учитывая что он решает столько проблем. Собственно говоря единственный его минус для меня - вместо стационарного экрана на стене придется делать выдвижной на потолке, что и не так хорошо и затратнее. Если можно ответьте пожалуйста на несколько вопросов:
1 Окна со шторами лучше иметь на фронтальной стене потому что штора это хороший поглотитель для первых отражений акустики, или есть еще какие-то причины? Несимметричное расположение окон не создает никаких проблем?
Вообще есть ведь много рекомендаций иметь монолитную фронтальную стену, а тут мы делаем ровно наоборот.
2 Вариант расположения диффузора шредера между окнами и аналогичного размещения акустических панелей на боковых стенах (дверь либо будет ближе к окну кухни либо тоже может нести на себе панель) будет хуже?
3 Такой чудесный "диффузор, полки и закрытые системы хранения." можно заказать в вашей компании, или же самостоятельно обращаться к мебельщикам?

Еще раз спасибо за помощь!
fludimir
 
Posts: 44
Joined: 23 Aug 2020, 01:04
Location: Харьков

Re: Комната для стерео и многоканала

Postby Андрей Смирнов » 13 Dec 2020, 18:11

1. фронтальная стена как правило выполняется поглощающей, это классический подход.
Монолитная фронтальная стена это редкость.
2. диффузор между окнами несимметричен относительно оси комнаты. На дверь навешивать что-ибо нежелательно по целому ряду причин.
3. сборную стенку можно спроектировать, а выполнят любые доступные мебельщики.
...ничто не слишком...(с) Кармадон, "Альтист Данилов"
http://www.akustik.ua - акустическое проектное бюро
http://www.acoustic.ua - звукоизоляционные материалы
............................................
User avatar
Андрей Смирнов
Soundmoderator
 
Posts: 8791
Joined: 29 Aug 2006, 12:24
Location: Украина, Киев

Re: Комната для стерео и многоканала

Postby fludimir » 15 Dec 2020, 03:22

Спасибо, понял. Теперь другой вопрос - звукоизоляция. Одним из критериев выбора этого помещения было минимально пересекаться с соседями, в итоге это первый этаж, все смежные комнаты не жилые(кухня, коридор, ванная и тп), и максимальная звукоизоляция нужна только для соседей сверху. Я прекрасно понимаю что нельзя просто звукоизолировать потолок и рассчитывать что соседи сверху не заметят просмотра фильма на референсной громкости, однако возможно ли в моем случае какое-то более простое решение чем обустройство полноценной комнаты в комнате?
fludimir
 
Posts: 44
Joined: 23 Aug 2020, 01:04
Location: Харьков

Re: Комната для стерео и многоканала

Postby Андрей Смирнов » 15 Dec 2020, 09:13

fludimir wrote:Спасибо, понял. Теперь другой вопрос - звукоизоляция. Одним из критериев выбора этого помещения было минимально пересекаться с соседями, в итоге это первый этаж, все смежные комнаты не жилые(кухня, коридор, ванная и тп), и максимальная звукоизоляция нужна только для соседей сверху. Я прекрасно понимаю что нельзя просто звукоизолировать потолок и рассчитывать что соседи сверху не заметят просмотра фильма на референсной громкости, однако возможно ли в моем случае какое-то более простое решение чем обустройство полноценной комнаты в комнате?

Изолировать звук сабвуфера в квартире многоэтажного дома без потерь площади и высоты невозможно.
...ничто не слишком...(с) Кармадон, "Альтист Данилов"
http://www.akustik.ua - акустическое проектное бюро
http://www.acoustic.ua - звукоизоляционные материалы
............................................
User avatar
Андрей Смирнов
Soundmoderator
 
Posts: 8791
Joined: 29 Aug 2006, 12:24
Location: Украина, Киев

Re: Комната для стерео и многоканала

Postby fludimir » 16 Dec 2020, 05:55

Потеря 5-10см толщины стен будет не критична, но нужно ли все делать так же как при звукоизоляции квартиры смежной со многими соседями, вроде этого?:
Attachments
Clip327.png
Clip327.png (155.47 KiB) Viewed 33039 times
fludimir
 
Posts: 44
Joined: 23 Aug 2020, 01:04
Location: Харьков

Re: Комната для стерео и многоканала

Postby Андрей Смирнов » 16 Dec 2020, 09:59

Для ЗИ звука сабвуфера конструкций толщиной 5-10 см будет недостаточно.
Потребуются более толстые и массивные решения.
...ничто не слишком...(с) Кармадон, "Альтист Данилов"
http://www.akustik.ua - акустическое проектное бюро
http://www.acoustic.ua - звукоизоляционные материалы
............................................
User avatar
Андрей Смирнов
Soundmoderator
 
Posts: 8791
Joined: 29 Aug 2006, 12:24
Location: Украина, Киев

Re: Комната для стерео и многоканала

Postby fludimir » 17 Dec 2020, 04:19

А какие именно решения применяются для звукоизоляции дк с сабвуфером?

У меня нет цели слушать бабахи в кино на THX 115дб@20гц , на такой громкости в принципе ничего не слушаю, да и система в первую очередь для музыки, просто как стерео так и многоканальной. Но в качестве основной акустики скорее всего будут большие напольники играющие достаточно низко, и несколько сабов могут использоваться чтобы получить максимально ровные и глубокие нч, а не максимум давления.

1. фронтальная стена как правило выполняется поглощающей, это классический подход.

А что вообще можно сделать с фронтальной стеной с окнами, кроме как повесить плотные шторы? Как бы половина площади стены занята окнами и радиаторами отопления, причем не симметрично
fludimir
 
Posts: 44
Joined: 23 Aug 2020, 01:04
Location: Харьков

Re: Комната для стерео и многоканала

Postby Андрей Смирнов » 17 Dec 2020, 09:32

fludimir wrote:А какие именно решения применяются для звукоизоляции дк с сабвуфером?

У меня нет цели слушать бабахи в кино на THX 115дб@20гц , на такой громкости в принципе ничего не слушаю, да и система в первую очередь для музыки, просто как стерео так и многоканальной. Но в качестве основной акустики скорее всего будут большие напольники играющие достаточно низко, и несколько сабов могут использоваться чтобы получить максимально ровные и глубокие нч, а не максимум давления.

1. фронтальная стена как правило выполняется поглощающей, это классический подход.

А что вообще можно сделать с фронтальной стеной с окнами, кроме как повесить плотные шторы? Как бы половина площади стены занята окнами и радиаторами отопления, причем не симметрично

Звукоизоляция сабвуфера в жилом доме вообще дело неблагодарное. Низкочастотные "бу-бу" в любом случае будут прослушиваться у соседей.
Уменьшить уровень проникающих шумов можно с помощью вкаркасных облицовок на максимально допустимом относе от стен/потолка https://www.acoustic.ua/recommendations/883
Гипсокартон должен быть специальным высокоплотным и гибким (Кнауф Титан, Диамант, Сапфир), слои ГКЛ необходимо задемпфировать вязкоэластичной тяжелой мембраной массой 5-10 кг/м3, например Vibrofix ML https://acoustic.ua/production/879.html?g=4&page=0
Облицовки стен лучше монтировать на независимом каркасе, в противном случае применять эффективные звукоизоляционные крепления.

vibrofix_300_345.jpg
vibrofix_300_345.jpg (36 KiB) Viewed 33008 times
...ничто не слишком...(с) Кармадон, "Альтист Данилов"
http://www.akustik.ua - акустическое проектное бюро
http://www.acoustic.ua - звукоизоляционные материалы
............................................
User avatar
Андрей Смирнов
Soundmoderator
 
Posts: 8791
Joined: 29 Aug 2006, 12:24
Location: Украина, Киев

Re: Комната для стерео и многоканала

Postby fludimir » 05 Jan 2021, 06:43

Здравствуйте Андрей, всего вам наилучшего в наступившем году! :)

Спасибо за рекомендации и материалы на сайте, но все же как из них выбрать то что будет оптимально в моих условиях? Не думаю что нужно очень сильно заморачиваться со звукоизоляцией от сабвуфера, саб у меня главным образом для расширения нч основной акустики, а не чтобы бухало в кино погромче. Но я люблю громко слушать тяжелую музыку, где достаточно много нч.
При этом все помещения которые соседствуют с кдп по горизонтали от шума защищать особенно не нужно, тк. все соседи будут через комнату/коридор/итп, а настолько громко чтобы заметно слышно было через комнату я музыку не слушаю. Однако остаются соседи сверху, как тут быть чтобы и от шума защититься и лишнего не нагородить? Рационально ли будет использовать самое простое решение (вроде Vibrofix Extra 48 ML) для стен и максимальное которое подходит по высоте(Extra 88 ML или PU 115 ML) для потолка?

Поскольку предстоит перепланировка комнаты с постройкой одной стены, что будет лучше - построить обычную кирпичную стену и сделать звукоизоляционную облицовку для нее, или же делать звукоизоляционную перегородку вроде Titan CW50/75?

Гипсокартон должен быть специальным высокоплотным и гибким (Кнауф Титан, Диамант, Сапфир), слои ГКЛ необходимо задемпфировать вязкоэластичной тяжелой мембраной массой 5-10 кг/м3, например Vibrofix ML https://acoustic.ua/production/879.html?g=4&page=0

это само собой, если делать гипсокартонные облицовки то явно по одному из вариантов представленных у вас на сайте. И помимо звукоизоляции меня волнует вопрос акустики комнаты, причем даже больше чем звукоизоляция. Я понимаю что не стоит сравнивать обычную облицовку гипсокартоном с тем как будет по вашей технологии, однако слушать музыку приходилось только в обычной гипсокартонной комнате, и то насколько может испортиться звучание неплохой системы я себе хорошо представляю.
fludimir
 
Posts: 44
Joined: 23 Aug 2020, 01:04
Location: Харьков

Re: Комната для стерео и многоканала

Postby Андрей Смирнов » 05 Jan 2021, 12:51

Звукоизоляция низких частот требует большой массы и толщины ограждения или каркасной облицовки.
Облицовка Vibrofix Extra 48 ML предназначена только для изоляции бытовых шумов, на звук саба она никак не повлияет.
Чем тоньше облицовка, тем выше её резонансная частота.
Рабочий диапазон любого сабвуфера бычно составляет 20-80 Гц.
Поэтому нужно выбирать конструкции с очень низкой резонансной частотой.
Такими характеристиками обладают облицовки с глубиной каркаса более 200 мм и при условии высокой массы обшивки не менее 30 кг/м2 (Титан-мембрана Vibrofix ML-Титан).
...ничто не слишком...(с) Кармадон, "Альтист Данилов"
http://www.akustik.ua - акустическое проектное бюро
http://www.acoustic.ua - звукоизоляционные материалы
............................................
User avatar
Андрей Смирнов
Soundmoderator
 
Posts: 8791
Joined: 29 Aug 2006, 12:24
Location: Украина, Киев

Next

Return to Акустика приміщень

Who is online

Users browsing this forum: No registered users and 2 guests

cron