Vibrofix

Примыкание подвесного потолка к каркасной стене

Кімнати прослуховування, домашні кінотеатри, студії звукозапису, концертні зали, клуби, спортивні споруди, конференц-зали тощо. Звукопоглинальні матеріали, акустичні дифузори, бастрапи

Примыкание подвесного потолка к каркасной стене

Postby ddd126 » 22 Sep 2014, 18:06

Уважаемый Андрей,
Затеваю ремонт квартиры в новостройке, и прошу ваших пояснений,
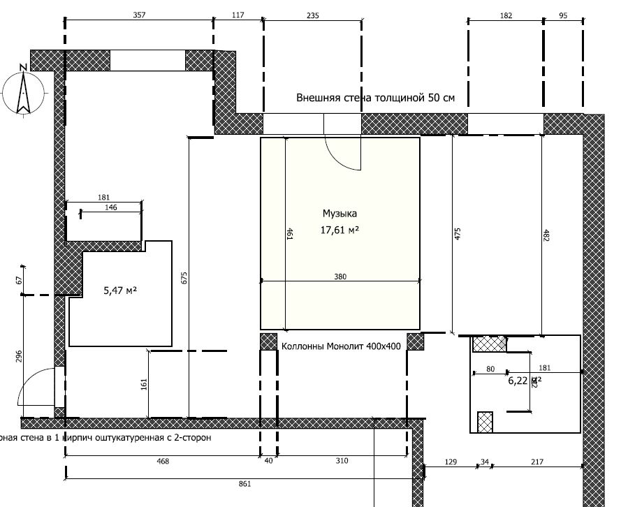
Исходные данные: на рисунке-1 комната Звук, т.е комната для КДП и возможно ДК.
Дом монолито – кирпичный, толщина внешней стены – 500 мм. межквартирная стены в 1-н полнотелый красный кирпич оштукатурены с двух сторон, толщина перекрытий 230 мм., монолит. Перегородки из пазогребневых гипсовых плит снесены. Высота по перекрытиям - 271 мм. Исходя из рекомендаций
"Соответствие размеров студийных помещений международным стандартам" были выбраны размеры длина – 4,6 м., ширина – 3,8 м., высота – 2,5 м.

Стены монтируются на независимых каркасах 100 в соответствии с рекомендациями сборника чертежей, обшиваются в три слоя ГКЛ + ГВЛ + ГКЛ, с заполнением Роквул Акустик Баттс или ПАРОК ССБ-1.
На окно – тяжелая штора, дверь - с уплотнением по периметру.
Потолок на каркасе с вибро развязкой, обшивается 2-мя слоями ГКЛ, с заполнением Роквул Акустик Батсс или ПАРОК ССБ-1.
В сборнике чертежей, W623 Примыкание к перекрытию п. 3.19 (примыкание подвесного потолка к каркасной стене ) и п. 3.22 (примыкание каркасной стены к подвесному потолку ) указаны два вида примыканий.
Чтобы увеличить ЗИ на НЧ какое выбрать примыкание? Т.е. хочется оптимального значения и по ударному и по воздушному шуму.

А вот по полам муки выбора. Для визуального комфорта хочется, что б визуально потолок был не ниже 250 см., с учетом подвесного потолка и ламината на пол остается 11-12 см..
Остаются 2 варианта пола,
а) Плавающий 25 мм + 25мм ( роквул) + 80мм (стяжка 150 кг/м), но смущает возможная усадка пола и монтаж потолка к каркасной стене п.3.19
б) Пол по лагам 30мм + 30 мм (АКУСТИК БАТТС или ПАРОК ССБ-1) + 23 ОСБ + 10 ГВЛ + 23 ОББ, в этом случае, усадки пола можно не опасаться и делать примыкание стен к потолку.
Заранее спасибо за пояснения.
Attachments
форум 1.JPG
форум 1.JPG (93.54 KiB) Viewed 6145 times
ddd126
 
Posts: 9
Joined: 26 Jan 2010, 17:41

Re: Примыкание подвесного потолка к каркасной стене

Postby Андрей Смирнов » 28 Sep 2014, 17:36

Способы примыкания подвесного потолка к перегородкам на ЗИ низких частот не повлияют.

Усадки стяжки по слою роквул флорбаттс плотностью 125 кг/куб.м можно не бояться.
...ничто не слишком...(с) Кармадон, "Альтист Данилов"
http://www.akustik.ua - акустическое проектное бюро
http://www.acoustic.ua - звукоизоляционные материалы
............................................
User avatar
Андрей Смирнов
Soundmoderator
 
Posts: 8791
Joined: 29 Aug 2006, 12:24
Location: Украина, Киев

Re: Примыкание подвесного потолка к каркасной стене

Postby ddd126 » 07 Oct 2014, 22:03

Уважаемый Андрей, спасибо за ответ, но возникли еще вопросы,
1. Изучая форум наталкивался на ваши рекомендации по использовании в конструкции плавающего пола, для повышения эффективности изоляции от воздушного шума, использования разных слоев базальтовой минеральной ваты, например слой 2 см Paroc ssb1 плотностью 110 кг/куб.м, поверх нее роквул флорбаттс плотностью 125 кг/куб.м , изоляция, бетонная стяжка толщиной 7-8 см плотностью 150 кг/куб.м..
Насколько отличается эффективность изоляции воздушного шума при использовании двух слоев базальтовой минеральной ваты с отличной плотностью, или с одинаковой плотностью?
2. Есть ли какие-нибудь рекомендации по вводу кабелей и проводов (от многоканального усилителя и хдми тв), без потери эффективной звукоизоляции, если аппаратура находится в отдельном помещении и конструкция межкомнатных стен выполнена по С 366 или W 115 с трехслойной облицовкой, например закладку кабельканала в плавающий пол, или устройство кабельканала в меж стенном пространстве. Необходимо ли дополнительно изолировать электрические розетки установленные в трехслойных стенах?
Как я понимаю идеальное решение, это пропустить провода сквозь стены и загермитизировать отверстия, но как обычно появятся новые кабели, которые надо затянуть.
Спасибо,
С Уважением
ddd126
 
Posts: 9
Joined: 26 Jan 2010, 17:41

Re: Примыкание подвесного потолка к каркасной стене

Postby Андрей Смирнов » 08 Oct 2014, 18:34

Плавающий пол тем более эффективен по ЗИ, чем более акустически "мягок" изоляционный слой. Но при этом возникает опасность усадки упругого слоя под статической нагрузкой от плавающей стяжки. Комбинированная прокладка из более тонкой (но мягкой ) ваты и более толстого слоя плотной ваты решает проблему.
Дело в том, что модуль упругости комбинированного слоя более близок к значению модуля для более мягкого материала. С другой стороны, бОльшая толщина плотной ваты не позволяет изоляционному слою усаживаться.
Это разумный компромисс.
...ничто не слишком...(с) Кармадон, "Альтист Данилов"
http://www.akustik.ua - акустическое проектное бюро
http://www.acoustic.ua - звукоизоляционные материалы
............................................
User avatar
Андрей Смирнов
Soundmoderator
 
Posts: 8791
Joined: 29 Aug 2006, 12:24
Location: Украина, Киев


Return to Акустика приміщень

Who is online

Users browsing this forum: No registered users and 9 guests