Vibrofix

Расположение стен в контрольной комнате

Кімнати прослуховування, домашні кінотеатри, студії звукозапису, концертні зали, клуби, спортивні споруди, конференц-зали тощо. Звукопоглинальні матеріали, акустичні дифузори, бастрапи

Расположение стен в контрольной комнате

Postby victorIn » 05 Apr 2011, 04:58

Доброе время суток
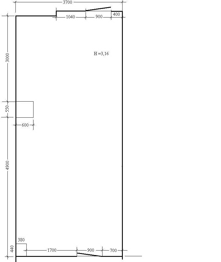
Есть прямоугольное помещение 3,7 x 8,4 метра (схема во вложении)
Предполагается из этого помещения сделать контрольную комнату, разделенную стеной с другой комнатой, в которой будет стоять дикторская кабина (внешние размеры кабины 2,5 х 2 мм)

Вопрос: по какому пути лучше пойти в данном случае.
1. Расположить разделяющую стенку по принципу золотого сечения, перегородив комнату перпендикулярно (что тогда с потолком делать?)
2. Избавляться от прямоугольности комнаты и сооружать, что-то наподобие
viewtopic.php?f=3&t=1357
http://www.johnlsayers.com/phpBB2/viewt ... =1&t=15790
Attachments
PlanRoom1.jpg
PlanRoom1.jpg (31.31 KiB) Viewed 6278 times
victorIn
 
Posts: 5
Joined: 05 Apr 2011, 02:18
Location: Москва

Re: Расположение стен в контрольной комнате

Postby Андрей Смирнов » 05 Apr 2011, 18:35

Привет, Виктор
Не совсем понятна постановка вопроса. Если перегородить комнату и построить контрольную, то в другой части можно сделать вокальную комнату (тон-зал). Зачем ставить такую маленькую дикторскую кабину и зачем для дикторсной кабины такая большая контрольная комната?
...ничто не слишком...(с) Кармадон, "Альтист Данилов"
http://www.akustik.ua - акустическое проектное бюро
http://www.acoustic.ua - звукоизоляционные материалы
............................................
User avatar
Андрей Смирнов
Soundmoderator
 
Posts: 8791
Joined: 29 Aug 2006, 12:24
Location: Украина, Киев

Re: Расположение стен в контрольной комнате

Postby victorIn » 06 Apr 2011, 00:59

Андрей Смирнов wrote:Привет, Виктор
Не совсем понятна постановка вопроса. Если перегородить комнату и построить контрольную, то в другой части можно сделать вокальную комнату (тон-зал). Зачем ставить такую маленькую дикторскую кабину и зачем для дикторсной кабины такая большая контрольная комната?


Это студия для пост-продакшн, т.е. в контрольной комнате могут сидеть 10 человек и комментировать, то, что звучит из мониторов. Поэтому комната должна быть большой.
Дикторская кабина уже есть. Записывать в ней предполагается только диктора или актера.
Дикторскую кабину просто хотели отгородить дополнительной стенкой. Чтобы было логическое разделение на два помещения: контрольную комнату и комнату для всякого барахла (в ней будет стоять дикторская кабина, компьютеры и т.д.).

Вопрос по контрольной комнате.
В стены вкладывать деньги не хочется в плане звукоизоляции от внешних шумов (помещение достаточно тихое, да и с арендой уверенности нет). Думаем обойтись только акустической отделкой.
Т.к. все равно строить стенку-перегородку и монтировать потолок, то можно сделать помещение для контрольной комнаты в виде «золотого кубоида» без дополнительных усилий.
Вопрос в том, оставлять ли как есть, т.е. прямоугольной, но с золотыми пропорциями контрольную комнату или все-таки избавляться от параллельности стен, сооружая что-то наподобие http://johnlsayers.com/Studio/Mainpage/MP-Funky_1.htm (вторая картинка)
victorIn
 
Posts: 5
Joined: 05 Apr 2011, 02:18
Location: Москва

Re: Расположение стен в контрольной комнате

Postby Андрей Смирнов » 06 Apr 2011, 11:57

Виктор, при высоте помещения 3,16 м не получится построить контрольную комнату по золотому сечению, т.к. требуемая ширина помещения должна составлять более 5 м, а в данном случае ширина только 3,7 м.
Я рекомендую использовать одну из известных пропорций 1,00H : 1,14W : 1,39L (L. W. Sepmeyer, 1965), которая ближе всего к соотношению высоты и ширины существующего помещения. Длина комнаты при этом получится 4,4 м, а площадь примерно 16 кв.м.
Если этого мало, то надо рассчитывать длину комнаты индивидуально, с целью минимизации влияния комнтных мод.

Можно выполнять наклонные боковые стены, а также использовать прямоугольную форму помещения. Это всего лишь различные приемлемые подходы к акустике студийных помещений, кому как нравится.
...ничто не слишком...(с) Кармадон, "Альтист Данилов"
http://www.akustik.ua - акустическое проектное бюро
http://www.acoustic.ua - звукоизоляционные материалы
............................................
User avatar
Андрей Смирнов
Soundmoderator
 
Posts: 8791
Joined: 29 Aug 2006, 12:24
Location: Украина, Киев

Re: Расположение стен в контрольной комнате

Postby victorIn » 06 Apr 2011, 23:20

Андрей спасибо за разъяснения.

Я просто думал, что высоту помещения как раз подогнать под золотое сечение с помощью подвесного потолка.
Или все таки под высотой помещения в расчетах надо подразумевать высоту до бетонного потолка и от этого никуда не денешься?
victorIn
 
Posts: 5
Joined: 05 Apr 2011, 02:18
Location: Москва

Re: Расположение стен в контрольной комнате

Postby Андрей Смирнов » 07 Apr 2011, 18:47

В расчетах надо подразумевать расстояния между массивными ограждениями.
...ничто не слишком...(с) Кармадон, "Альтист Данилов"
http://www.akustik.ua - акустическое проектное бюро
http://www.acoustic.ua - звукоизоляционные материалы
............................................
User avatar
Андрей Смирнов
Soundmoderator
 
Posts: 8791
Joined: 29 Aug 2006, 12:24
Location: Украина, Киев


Return to Акустика приміщень

Who is online

Users browsing this forum: No registered users and 70 guests