Искренне Вам благодарен за Вашу помощь на форумах. Вы, наверное, один из немногих оказываете народу аудиофильскому такую профессиональную и действенную поддержку в борьбе с волновым беспределом разных помещений... Спасибо Вам!
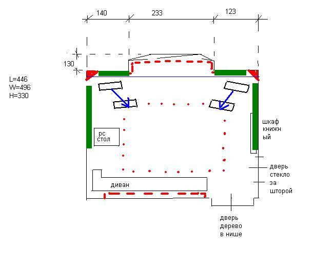
Нахожусь в стадии ремонта и хотелось бы получить от Вас консультацию по акустическому оформлению комнаты для прослушивания/жилой в кирпичном особняке в г.Черновцах. В настоящее время стены отштукатурены, все звенит в комнате,бас убежал, т.к. убрана мебель, ковры и т.п.На прилагаемом рисунке планирую: 1.во фронтальных углах установить низкочастотные поглотители Вашей конструкции. Здесь сразу хотел бы обратиться за помощью в коррекции размеров и конструкции , а также приобретении необходимого материала (общий бюджет до $1500 ). Минваты соответствующей плотности в 50 ед. у нас нет. Материала (как вы советуете, ДВП в 6мм) для мембраны НЧКП 60Х320 у нас также проблематично найти. Планирую фронтальные углы закрыть до потолка полностью но, в середине в одной плоскости с поглотителями от 150 до 220см сделать небольшие ниши для дизайна с полками, которые будут контактно не связаны с нижними и верхними НЧКП. Возможно ли такое сочетание?
Фронтальная стена вместе с эркером закрывается шторой. Тыльная стена за диваном - скорее диффузоры Шредера. Какого размера предпочтительнее диффузоры? Боковые стены - там стол, книжный шкаф у другой стены и полочки \стеллажи для дисков.На стены планирую виниловые обои. Не хотелось бы комнату переглушить.
3.Потолок от синей линии зашиваю гипсокартоном с минватой внутри для крепления штор на фронтальную стену с эркером. От гипсокартона да конца потолка в сторону дивана, двери планирую установить Clipso натяжной акустический потолок. Вы где-то писали, что такие потолки приемлемы. Не будет ли натяжной провисать от изменения температуры? У нас акустических не устанавливают, придется опять заказывать из Киева.
4.Пол уже лежит, поверх будет большой ковер.
Колонки высокие -130см, широкополосные Таннои, усиление- лампа.
Хотелось бы услышать Ваше мнение\консультацию по такому варианту оформления. Или что-то надо радикально менять? А также по-возможности помочь с необходимыми материалами.
С уважением,
Владимир
skydog
Сообщения: 0
Зарегистрирован: 14 ноя 2010, 01:32
* Личное сообщение

