В этом топике я хочу поделиться опытом строительства одной из студий звукозаписи, спроектированной специалистами проектного бюро нашей компании (
www.akustik.ua ).
Поставку материалов осуществляла наша торгово-производственная компания (
www.acoustic.ua ).
(Я буду выкладывать иллюстрации по мере заполнения топика контентом)
Проект студии заказал Анатолий Розанов, руководитель, композитор и продюсер легендарной группы "Фристайл".
Человек опытный и знающий, Анатолий Розанов достаточно хорошо представлял себе какую именно студию он хочет построить. Инженеры нашей компании получили техническое задание, выслушали все пожелания заказчика и приступили к проектированию.
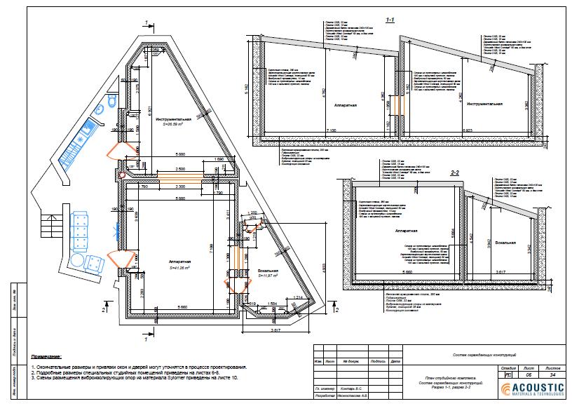
Проектируемый студийный комплекс расположен в Полтаве. Согласно проекту планировалось разместить его в специально возводимой для этого пристройке к существующему жилому зданию.
В составе комплекса: инструментальная студия, вокальная комната, референсная контрольная комната и лаунж-зона. Общая площадь студийного комплекса составляет более 100 кв.м.
Объемно-планировочное решение студийных помещений разрабатывалось с учетом требований Европейского Радиовещательного Союза (European Broadcasting Union, Technical Recommendation R22-1998) и Международного Телекоммуникационного Союза (International Telecommunication Union Recommendation ITU-R BS.1116-1, 1998).
Пропорции и форма студийных помещений и, в первую очередь контрольной комнаты, рассчитывались таким образом, чтобы свести к минимуму нежелательное влияние комнатных резонансов (мод помещения).
В процессе проектирования студии было реализовано несколько уникальных технических, концептуальных и инженерных решений.

- План студии Розанова.JPG (90.37 KiB) Viewed 148968 times
Все три студийных помещения построены по принципу "box in box". Каждая студия стоит на независимом виброизолированном фундаменте. Это, так можно выразиться, три отдельных "домика" без жестких связей друг с другом и с несущими конструкциями основного здания. В качестве упругих опор для плавающих фундаментов использовался высокоэффективный виброизоляционный материал Sylomer. Чтобы многотонные конструкции "домиков" упруго "плавали" на своих фундаментах и при этом виброизоляционный материал не был бы перегружен были проведены специальные акустические расчеты. Резонансная частота плавающих фундаментов составляет 7-9 Гц, что позволяет полностью развязать студии от всех внешних источников вибрации и структурного шума, а также обеспечить базу для высокого уровня звукоизоляции между самими студийными помещениями.
На рисунке план размещения упругих опор из материала Sylomer под фундаментом каждого из студийных помещений (контрольная, вокальная, инструментальная комнаты).

- План плавающих полов Sylomer.JPG (94.5 KiB) Viewed 148966 times
Вид на стройплощадку пристройки, внутри которой со временем будет построена студия звукозаписи.

- 1.JPG (129.83 KiB) Viewed 148965 times
Возведение стен, ограждающих студийный комплекс от остальной части здания, выполняется с помощью пустотелых бетонных блоков, с засыпкой пустот прокаленным речным песком.

- 1.1.JPG (143.51 KiB) Viewed 148965 times
Закончено возведение наружных стен и основного перекрытия кровли.

- 2.JPG (217.94 KiB) Viewed 148963 times
После разметки пола согласно проекту в каждом из будущих студийных помещений выполняются плавающие фундаменты.
Рабочие выполняют раскладку и монтаж упругих опор из материала Sylomer, поверх которых будут залиты бетонные фундаменты толщиной 200 мм.

- Плавающий пол Sylomer.jpg (107.93 KiB) Viewed 148963 times

- Плавающий пол Sylomer 2.jpg (90.82 KiB) Viewed 148963 times
Несъемная опалубка для плавающего пола из плит ОСБ.

- Опалубка плавающего пола Sylomer.jpg (119.95 KiB) Viewed 148962 times
Гидроизоляция опалубки.

- Опалубка плавающего пола Sylomer 2.jpg (105.71 KiB) Viewed 148962 times
Армирование плавающего фунадамента

- Арматура плавающего пола.jpg (74.69 KiB) Viewed 148962 times
Плавающий фундамент под вокальной студией готов и можно приступать к выполнению основания в следующем помещении

- Плавающий пол вокальная.jpg (94.42 KiB) Viewed 148962 times
После выполнения плавающих полов (фундаментов) для всех студий начинается возведение стен. Стены, ограничивающие каждое студийное помещение, строятся на отдельных фундаментах. Таим образом, каждую студию отделяет двойная стена с воздушным промежутком, заполненным акустической минеральной ватой. Стены выполняются из пустотелых бетонных блоков толщиной 190 мм с засыпкой пустот прокаленным песком.

- Стена контрольной комнаты.jpg (209.83 KiB) Viewed 148961 times
Высота и ширина окна визуальной связи между контрольной и инструментальной комнатами рассчитана по углам обзора в вертикальной и горизонтальной плоскостях.

- Стена контрольной комнаты 2.jpg (114.27 KiB) Viewed 148961 times
Монтаж каркаса для акустической подготовки помещений

- Каркас для звукопоглощающих конструкций.jpg (187.34 KiB) Viewed 148961 times
В оконном и дверном проеме просматривается разрез двойной стены между студиями

- Каркас для звукопоглощающих конструкций 2.jpg (102.88 KiB) Viewed 148961 times
Вид снизу на наклонное перекрытие потолка студии. Перекрытие выполнено в виде сендвича, в котором чередуются звукоотражающие и звукопоглощающие слои.

- Потолок студии.jpg (114.54 KiB) Viewed 148961 times
В пространстве между конструкцией кровли и перекрытием студийных помещений производится монтаж приточно-вытяжной системы вентиляции с помощью специальных звукопоглощающих воздуховодов.

- Вентиляция студии.jpg (136.76 KiB) Viewed 148961 times
В каждое студийное помещение входит отдельный вентиляционный канал. Транзитная прокладка воздуховодов исключена.

- Вентиляция студии 2.jpg (119.46 KiB) Viewed 148961 times

- Вентиляция студии 3.jpg (111.87 KiB) Viewed 148961 times