Vibrofix

Вопросы по проекту контрольной комнаты

Кімнати прослуховування, домашні кінотеатри, студії звукозапису, концертні зали, клуби, спортивні споруди, конференц-зали тощо. Звукопоглинальні матеріали, акустичні дифузори, бастрапи

Вопросы по проекту контрольной комнаты

Postby KTLZ » 26 Jul 2012, 20:29

Доброго времени суток!
Имеется помещение, распологающееся на третьем этаже кирпичного здания (толщина стен 60 см, высота помещения 3 метра). В наших планах использовать часть этого помещения в качестве контрольной комнаты с высоким фондом звукопоглощения ,а другую часть для ресепшена. Имеется бюджет в размере 3500 $ для воплощения проекта в жизнь.

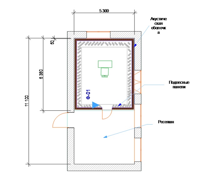
На плане акустическая оболочка представляет собой сэндвич по книжке Ф.Ньюэлла. Пол не обрабатывается. Развязкой акустической оболочки с полом служит прослойка Sylomerа, подходящего типа.
Вопрос: 1) Из чего лучше сделать разделительную стену между ресепшеном и контрольной комнатой? Можно ли ее оставить в виде акустической оболочки, чтобы ресепшн выполнял роль воздушной прослойки от капитальной тыльной стены?
2) Имеет ли смысл всё это при работе на мониторах Yamaha HS 80 c мощностью 120 Вт, будет ли отклик и возбуждение оболочки?
Attachments
studio1.jpg
План помещения
studio1.jpg (54.58 KiB) Viewed 4937 times
1-Сэндвич-стены.jpg
Тип акустической оболочки ( звукоизоляционного слоя не будет)
1-Сэндвич-стены.jpg (111.03 KiB) Viewed 4937 times
KTLZ
 
Posts: 6
Joined: 01 Sep 2011, 22:21
Location: Россия, г. Ульяновск

Re: Вопросы по проекту контрольной комнаты

Postby Андрей Смирнов » 27 Jul 2012, 15:32

Указанная акустическая оболочка сама по себе не обладает сколько-нибудь значимой звукоизоляцией и является дополнительной конструкцией для существующих стен. Поэтому какую-то перегородку между контролем и ресепшеном строить надо. Поскольку требования по звукоизоляции ограждений для студийных помещений не менее 60 дБ, то такая перегородка должна быть кирпичной и толщиной не менее 250 мм.
Необходимо отметить, что в приведенной схеме есть кране вредная ошибка, связанная с переводом. Звукоизоляционная оболочка ни в коем случае не должна закрепляться на стене с помощью пенопласта, это приведет к радикальному снижению звукоизоляции. В оригинале ГКЛ наклеивается на специальную полиуретановую пену средней плотности.
...ничто не слишком...(с) Кармадон, "Альтист Данилов"
http://www.akustik.ua - акустическое проектное бюро
http://www.acoustic.ua - звукоизоляционные материалы
............................................
User avatar
Андрей Смирнов
Soundmoderator
 
Posts: 8791
Joined: 29 Aug 2006, 12:24
Location: Украина, Киев

Re: Вопросы по проекту контрольной комнаты

Postby KTLZ » 28 Jul 2012, 13:59

Звукоизоляционная оболочка устанавливаться не будет, дело в том, что не стоит вопрос о такой звукоизоляции, в приоритете добиться максимального поглощения на НЧ.
Если исходить из того ,что теоретически расстояние между акустической оболочкой и капитальной стеной прямопропорционально поглощению на НЧ, то значит ли это то,что помещение ресепшена (при возведении перегородки в виде акустической оболочки) выполнит роль такого расстояния (этакая бас ловушка с функциями ресепшна длиной 4,72 м :D )? Будет ли это работать на практике?
И всё таки примерно какой мощности мониторной системы будет достаточно для того чтобы задуманная конструкция массой 4,5 тонны работала?
Attachments
3D вид.jpg
3D вид.jpg (111.2 KiB) Viewed 4822 times
KTLZ
 
Posts: 6
Joined: 01 Sep 2011, 22:21
Location: Россия, г. Ульяновск

Re: Вопросы по проекту контрольной комнаты

Postby Андрей Смирнов » 01 Aug 2012, 14:26

При наличии такого большого количества НЧ поглотителей влияние объема ресепшена не будет столь существенным.
...ничто не слишком...(с) Кармадон, "Альтист Данилов"
http://www.akustik.ua - акустическое проектное бюро
http://www.acoustic.ua - звукоизоляционные материалы
............................................
User avatar
Андрей Смирнов
Soundmoderator
 
Posts: 8791
Joined: 29 Aug 2006, 12:24
Location: Украина, Киев


Return to Акустика приміщень

Who is online

Users browsing this forum: No registered users and 13 guests