Vibrofix

Оцените планировку ДК

Кімнати прослуховування, домашні кінотеатри, студії звукозапису, концертні зали, клуби, спортивні споруди, конференц-зали тощо. Звукопоглинальні матеріали, акустичні дифузори, бастрапи

Оцените планировку ДК

Postby P_Dmitrij » 14 Aug 2020, 04:56

Здравствуйте, уважаемые любители хорошего звука!
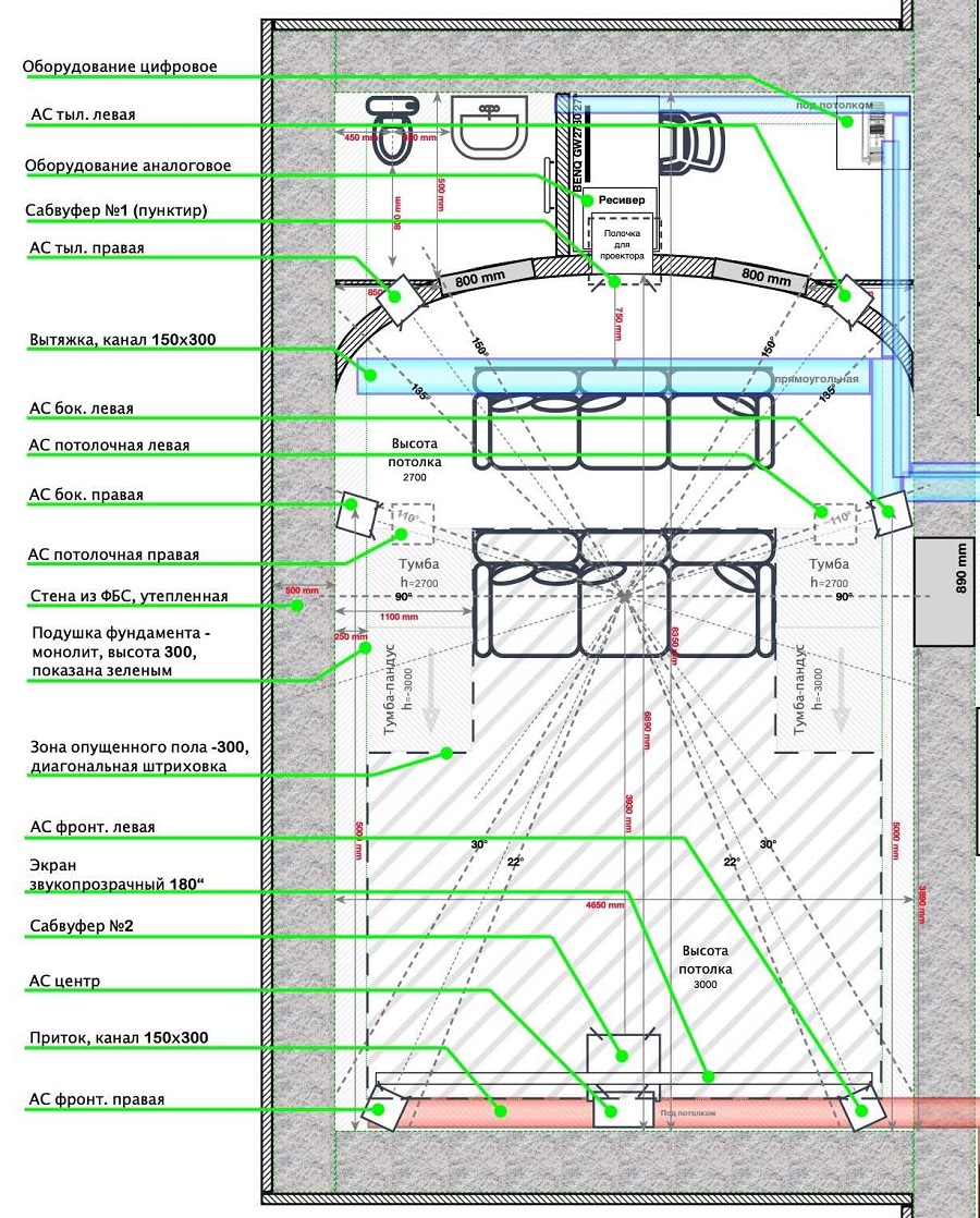
Прошу вас оценить планировочное решение ДК, расположенного в подвальном помещении частного дома. У меня, к сожалению, не так много опыта в этом вопросе, а хотелось бы избежать проблем, которые уже невозможно будет исправить на более поздних этапах строительства. На данный момент построены только капитальные стены, так что многое еще можно поменять.

ДК план small-2.jpg
ДК план small-2.jpg (425.66 KiB) Viewed 4549 times


ДК Стены.jpeg
Чертеж стен
ДК Стены.jpeg (97.83 KiB) Viewed 4551 times
Last edited by P_Dmitrij on 14 Aug 2020, 15:14, edited 1 time in total.
P_Dmitrij
 
Posts: 6
Joined: 11 Feb 2020, 18:06
Location: Воронеж

Re: Оцените планировку ДК

Postby Андрей Смирнов » 14 Aug 2020, 10:45

Вставьте изображение не ссылкой, которая не открывается, а прямо вложением на форуме.
...ничто не слишком...(с) Кармадон, "Альтист Данилов"
http://www.akustik.ua - акустическое проектное бюро
http://www.acoustic.ua - звукоизоляционные материалы
............................................
User avatar
Андрей Смирнов
Soundmoderator
 
Posts: 8791
Joined: 29 Aug 2006, 12:24
Location: Украина, Киев

Re: Оцените планировку ДК

Postby P_Dmitrij » 14 Aug 2020, 15:15

Прошу прощения, затупил. У меня то они открываются, но Дропбокс не показывает картинки другим. Исправил заглавное сообщение, добавил картинки как вложения.
P_Dmitrij
 
Posts: 6
Joined: 11 Feb 2020, 18:06
Location: Воронеж

Re: Оцените планировку ДК

Postby Андрей Смирнов » 14 Aug 2020, 15:58

В целом все правильно, кроме расположения потолочных АС.
В мануале Атмос немного по-другому предлагается размещать мониторы на потолке.
...ничто не слишком...(с) Кармадон, "Альтист Данилов"
http://www.akustik.ua - акустическое проектное бюро
http://www.acoustic.ua - звукоизоляционные материалы
............................................
User avatar
Андрей Смирнов
Soundmoderator
 
Posts: 8791
Joined: 29 Aug 2006, 12:24
Location: Украина, Киев

Re: Оцените планировку ДК

Postby P_Dmitrij » 14 Aug 2020, 17:56

Спасибо, Андрей! Кстати, планировку делал во многом опираясь на ваши статьи и калькуляторы, вы делаете большое дело для всех любителей звука!
Насчет потолочных колонок, я вроде по инструкции ATMOS расставлял, но возможно что-то упустил. Проверю еще раз. Не дадите еще пожалуйста совет по устройству пола. Я посмотрел конструкции пола на сайте http://www.acoustic.ru, в разделе "Звукоизоляция пола". Там в принципе все понятно расписано, но упор делается именно на звукоизоляцию. А в моем случае изолировать по-просту нечего - помещение стоит на песке. Чисто интуитивно видится, что основная проблема помещения будет связана с борьбой с переотражениями НЧ. Как я понял, одно из средств борьбы - это массивная мембрана, которая будет поглощать энергию волн НЧ путем ее конвертации в механическую работу по раскачиванию мембраны. Собственно, вопрос - можно ли сделать пол таким способом, что бы он стал такой мембраной и начал поглощать НЧ?
P_Dmitrij
 
Posts: 6
Joined: 11 Feb 2020, 18:06
Location: Воронеж

Re: Оцените планировку ДК

Postby Андрей Смирнов » 15 Aug 2020, 11:43

Если выполнять пол на лагах с настилом из листового материала, то такой пол будет достаточно эффективным поглотителем НЧ.
...ничто не слишком...(с) Кармадон, "Альтист Данилов"
http://www.akustik.ua - акустическое проектное бюро
http://www.acoustic.ua - звукоизоляционные материалы
............................................
User avatar
Андрей Смирнов
Soundmoderator
 
Posts: 8791
Joined: 29 Aug 2006, 12:24
Location: Украина, Киев

Re: Оцените планировку ДК

Postby P_Dmitrij » 15 Aug 2020, 12:22

Получается, имеет смысл ориентироваться на решение ?
Image

А можно для расчета поглощающих характеристик такого пола воспользоваться вашим калькулятором Панельный звукопоглотитель? Его результаты будут актуальны для пола такой конструкции?
P_Dmitrij
 
Posts: 6
Joined: 11 Feb 2020, 18:06
Location: Воронеж

Re: Оцените планировку ДК

Postby Андрей Смирнов » 15 Aug 2020, 13:41

Вам же не нужна звукоизоляция пола, поэтому пол на лагах можно выполнять без упругих прокладок под лагами.
Калькулятором воспользоваться можно.
...ничто не слишком...(с) Кармадон, "Альтист Данилов"
http://www.akustik.ua - акустическое проектное бюро
http://www.acoustic.ua - звукоизоляционные материалы
............................................
User avatar
Андрей Смирнов
Soundmoderator
 
Posts: 8791
Joined: 29 Aug 2006, 12:24
Location: Украина, Киев

Re: Оцените планировку ДК

Postby P_Dmitrij » 15 Aug 2020, 15:12

Ясно, пожалуй последний вопрос остался. Сейчас то у меня на полу просто песок, по этому, прежде чем установить лаги, надо бы залить стяжку и заложить под нее теплоизоляцию. Как вы считаете, будет ли что-то зависеть от толщины черновой стяжки и материала/толщины теплоизоляции под ней?
P_Dmitrij
 
Posts: 6
Joined: 11 Feb 2020, 18:06
Location: Воронеж

Re: Оцените планировку ДК

Postby Андрей Смирнов » 17 Aug 2020, 10:13

Тепло и гидроизоляцию пола выполняйте просто согласно требованиям профильного СНиП.
...ничто не слишком...(с) Кармадон, "Альтист Данилов"
http://www.akustik.ua - акустическое проектное бюро
http://www.acoustic.ua - звукоизоляционные материалы
............................................
User avatar
Андрей Смирнов
Soundmoderator
 
Posts: 8791
Joined: 29 Aug 2006, 12:24
Location: Украина, Киев

Re: Оцените планировку ДК

Postby P_Dmitrij » 17 Aug 2020, 12:56

Все понял, еще раз большое спасибо за советы, Андрей!
P_Dmitrij
 
Posts: 6
Joined: 11 Feb 2020, 18:06
Location: Воронеж


Return to Акустика приміщень

Who is online

Users browsing this forum: No registered users and 55 guests

cron