Vibrofix

КДП с нуля

Кімнати прослуховування, домашні кінотеатри, студії звукозапису, концертні зали, клуби, спортивні споруди, конференц-зали тощо. Звукопоглинальні матеріали, акустичні дифузори, бастрапи

КДП с нуля

Postby Discoverer » 19 Dec 2019, 12:58

Здравствуйте!
начинаю отдельную тему, т.к. условия и задачи схожие с описанными на форуме, но не совсем, а "поигравшись" калькуляторами, понял, что любая мелочь может навредить...
итак:
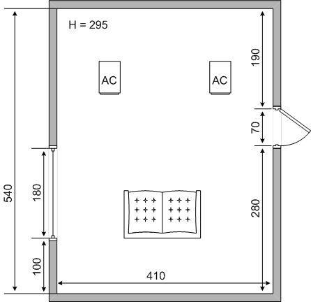
требуется акустическая коррекция(подготовка) помещения для прослушивания стерео. Система с АС Tannoy Kensington GR
помещение 5,4 х 4,1 м высота 3,05
Стены: газобетон, 30см
Пол: бетонная стяжка 7 см по ЭППС 100мм, покрытие - толстый ламинат(ибо теплый пол)
Потолок: в д.м. монолитное ЖБ перекрытие
Окна: двойной стеклопакет, толщина стекла 3-4 мм, 2,8 м. кв.
Двери: сплошные МДФ, 1,47 м. кв.
потолок планирую как минимум зашить ГК, тогда высота помещения 2,95
КДП.png
КДП.png (13.35 KiB) Viewed 5542 times

Планируется: 2 кресла с тканевой оббивкой, столик, стойка под аппаратуру, стеллаж для винила около 8-12 м.кв., коврик около 6 м.кв., штора из плотной ткани на окно около 5 м.кв.
прилагаю приблизительный расчет RT.

Суть вопроса:
1. Буду признателен за общие рекомендации по подготовке помещения(можно что-то изменить)
2. Звукопоглощающие материалы лучше в зонах первых отражений размещать(стены, потолок) или можно на потолок вместо ГК дать перфорированный панели типа кнауф акустик (боюсь "переглушить" помещение), зато дешевле на круг и не уменьшаю объем комнаты, как если сделаю ГК, а панели на стены/потолок по верху.
3. Какие материалы лучше использовать в качестве поглотителей(чтобы панели можно было задекорировать как картины/абстракцию)
4. Какую и где взять ткань -обвернуть вату в панелях
Заранее признателен за советы.
Attachments
1 отражения.png
1 отражения.png (112.93 KiB) Viewed 5542 times
KDP.png
KDP.png (82.44 KiB) Viewed 5542 times
Discoverer
 
Posts: 7
Joined: 13 Dec 2019, 11:57
Location: Львів

Re: КДП с нуля

Postby Discoverer » 26 Mar 2020, 16:19

я так понял советов/подсказок не будет?
пока помещение на стадии "голые стены", могу что то изменить/добавить(например уменьшить размер окна, или пирог пола/потолка изменить)
Discoverer
 
Posts: 7
Joined: 13 Dec 2019, 11:57
Location: Львів

Re: КДП с нуля

Postby Андрей Смирнов » 26 Mar 2020, 17:11

Вы сами написали "Буду признателен за общие рекомендации по подготовке помещения".
Общие рекомендации на этом ресурсе уже есть в нескольких ветках, например, здесь viewtopic.php?f=3&t=1113
Поэтому не совсем понятно что вам отвечать.
Пирог пола или размер окна никак особенно на акустику помещения не повлияют.
Фонд звукопоглощения вы уже посчитали самостоятельно.
Осталось только подобрать декоративно-акустические материалы, но это должны сделать вы.
Посмотреть варианты материалов отделки можно здесь http://www.acoustic.ua/production.html?g=6
Посмотреть иллюстрации некоторых наших объектов можно по ссылке http://www.akustik.ua/projects-muzykaln ... blyuz.html

P.S. Если будете выполнять ГКЛ облицовки, то обязательно применяйте ГКЛ в 2 слоя и заполняйте пустоты в каркасах акустической минеральной ватой для исключения нежелательных резонансных явлений http://www.acoustic.ua/recommendations.html?g=1
...ничто не слишком...(с) Кармадон, "Альтист Данилов"
http://www.akustik.ua - акустическое проектное бюро
http://www.acoustic.ua - звукоизоляционные материалы
............................................
User avatar
Андрей Смирнов
Soundmoderator
 
Posts: 8791
Joined: 29 Aug 2006, 12:24
Location: Украина, Киев

Re: КДП с нуля

Postby Discoverer » 26 Mar 2020, 17:25

Благодарю, Андрей,
но еще были более конкретные вопросы:

Discoverer wrote:
2. Звукопоглощающие материалы лучше в зонах первых отражений размещать(стены, потолок) или можно на потолок вместо ГК дать перфорированный панели типа кнауф акустик (боюсь "переглушить" помещение), зато дешевле на круг и не уменьшаю объем комнаты, как если сделаю ГК, а панели на стены/потолок по верху.
3. Какие материалы лучше использовать в качестве поглотителей(чтобы панели можно было задекорировать как картины/абстракцию)
Discoverer
 
Posts: 7
Joined: 13 Dec 2019, 11:57
Location: Львів

Re: КДП с нуля

Postby Андрей Смирнов » 26 Mar 2020, 18:03

Это не конкретные вопросы.
Это начало очень длинного разговора, который не укладывается в формат форума.
Акустического эффекта можно добиться с помощью разных материалов, как по цене, так и по внешнему виду.
Я специально дал вам ссылку на некоторые проекты, чтобы можно было выбрать в каком стиле, хотя бы, вы планируете выполнить комнату.
Поэтому такие вопросы на форумах не решают.
...ничто не слишком...(с) Кармадон, "Альтист Данилов"
http://www.akustik.ua - акустическое проектное бюро
http://www.acoustic.ua - звукоизоляционные материалы
............................................
User avatar
Андрей Смирнов
Soundmoderator
 
Posts: 8791
Joined: 29 Aug 2006, 12:24
Location: Украина, Киев

Re: КДП с нуля

Postby Discoverer » 26 Mar 2020, 21:07

и еще раз спасибо, но Вы ответили на вторую часть вопросов, а первую пропустили:
Звукопоглощающие материалы лучше в зонах первых отражений размещать(стены, потолок)
или можно на потолок вместо ГК дать перфорированный панели типа кнауф акустик (боюсь "переглушить" помещение).
суть-хочу понять, главное "заглушить" помещение чтобы добиться эффекта, размещая звукопоглощающие материалы где попало или есть предпочтительные места для их размещения?
Discoverer
 
Posts: 7
Joined: 13 Dec 2019, 11:57
Location: Львів

Re: КДП с нуля

Postby Андрей Смирнов » 27 Mar 2020, 00:13

А вы разве не посмотрели ссылки, которые я вам дал?
Там есть ответ на ваш вопрос.
...ничто не слишком...(с) Кармадон, "Альтист Данилов"
http://www.akustik.ua - акустическое проектное бюро
http://www.acoustic.ua - звукоизоляционные материалы
............................................
User avatar
Андрей Смирнов
Soundmoderator
 
Posts: 8791
Joined: 29 Aug 2006, 12:24
Location: Украина, Киев

Re: КДП с нуля

Postby Discoverer » 27 Mar 2020, 10:41

этой ссылки не увидел viewtopic.php?f=3&t=1113
спасибо большое, стало понятнее.
а на какой высоте от пола на стенах панели, центр панели на уровне уха, динамика, верха АС?
Discoverer
 
Posts: 7
Joined: 13 Dec 2019, 11:57
Location: Львів

Re: КДП с нуля

Postby Discoverer » 27 Mar 2020, 11:07

по Вашим подсказкам резюмирую:
1. при использования калькуляторов- Моды определяются массивными ограждениями, поэтому вводить в калькулятор надо значения габаритных размеров помещения по бетонным/кирпичным конструкциям без учета каркасных облицовок.
2. Звукопоглощающие материалы лучше в зонах первых отражений размещать(стены, потолок) viewtopic.php?f=3&t=1113.
на потолок вместо ГК дать перфорированный панели типа кнауф акустик не рекомендуется, можно переглушить помещение.
3. ткань, обвернуть вату в панелях, брать в строительном магазине (геотекстиль или мембрана)
4. в качестве поглотителей использовать материалы в зависимости от дизайна комнаты, принимая во внимание результаты калькулятора
5. окно уменьшу в 2 раза, хотя это и не принципиально(будет завешено плотной шторой). беспокоит то, что оно расположено в зоне первых отражений.
склоняюсь к дизайну в стиле приложенной картинки, технику расположу за АС в плотную к тыльной стене
Attachments
panel1.jpg
panel1.jpg (73.57 KiB) Viewed 5318 times
Discoverer
 
Posts: 7
Joined: 13 Dec 2019, 11:57
Location: Львів

Re: КДП с нуля

Postby Андрей Смирнов » 27 Mar 2020, 11:21

Как раз на потолке звукопоглощение рекомендуется и перфорированные панели типа кнауф акустик для этого вполне подходят.
Нужно только правильно оценить требуемое количество и возможно комбинировать на потолке перфорированный (в центре) и обычный гипсокартон (по периметру).
...ничто не слишком...(с) Кармадон, "Альтист Данилов"
http://www.akustik.ua - акустическое проектное бюро
http://www.acoustic.ua - звукоизоляционные материалы
............................................
User avatar
Андрей Смирнов
Soundmoderator
 
Posts: 8791
Joined: 29 Aug 2006, 12:24
Location: Украина, Киев

Re: КДП с нуля

Postby Discoverer » 27 Mar 2020, 11:32

в зоне первых отражений-да.
я рассматривал вариант весь потолок зашить, не размещая поглощающие панели на стенах. этот "номер" не пройдет.

буду планировать в зоне первых отражений(с большим захватом по площади, т.к. АС возможно передвинутся с расчетного места по факту) в ровень с обычным ГК. а изначально думал, что панель будет "ниже" потолка, поверх гипсокартона, как островок.
Discoverer
 
Posts: 7
Joined: 13 Dec 2019, 11:57
Location: Львів


Return to Акустика приміщень

Who is online

Users browsing this forum: No registered users and 59 guests