Vibrofix

Спальня без окна

Обговорення проблем захисту від шуму, звукоізоляції приміщень, віброізоляції обладнання.
Проєктування, матеріали, вимірювання

Спальня без окна

Postby aleonids » 17 Sep 2019, 09:35

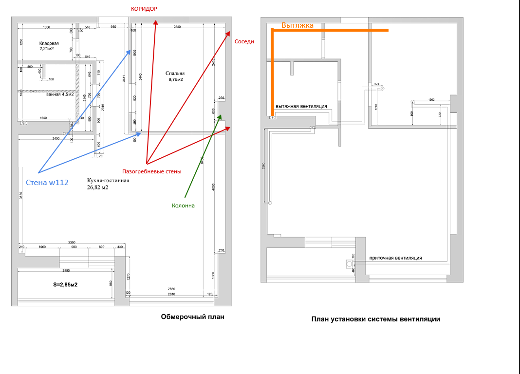
Добрый день! Есть квартира в каркасно-монолитном доме. В ходе перепланировки получилась спальня без окна. Буду устанавливать приточную установку, а также вытяжку в общий канал. Приточная установка будет на балконе с глушителем. Вытяжка будет идти не по проекту, а через гардеробную, где будет установлен канальный вентилятор и глушитель.
Приточный диффузор и вытяжной будут в потолке. вентиляционные каналы будут проходить через верхний край стен
Стены спальни w112 толщиной 100 мм (слой ГВЛ+ГКЛ с каждой стороны, внутри стены Акустик баттс).
В квартире не жил, соседи тоже не живут, ремонты делают, слышен только перфоратор и прочие ремонтные звуки). На всякий случай подумываю сделать звукоизоляцию в спальне. Из вероятных неудобств: звук открывающихся/закрывающихся соседских дверей, каблуков по плитке, звук телевизора, разговора за стеной. Пару вопросов:
1. Потолок будет опускаться минимум на 8 см для воздуховодов, имеет ли смысл устройство звукоизоляционного потолка D113, если в нем будет два вентиляционных диффузора 125 мм в диаметре, может это сведет на нет всю работу по звукоизоляции?
2. Для стен из пазогребневых плит рассматриваю w623, имеет ли смысл звукоизолировать колонну или нет?
Attachments
Clip2net_190917103414.png
Clip2net_190917103414.png (94.08 KiB) Viewed 1927 times
aleonids
 
Posts: 16
Joined: 09 Oct 2016, 23:24
Location: Гомель

Re: Спальня без окна

Postby Андрей Смирнов » 17 Sep 2019, 10:57

Сначала надо выполнить облицовки стен, лучше применить конструкцию W626. Подвесной потолок будет примыкать к облицовкам.
В подвесном потолке будет всего два небольших вентиляционных отверстия, поэтому это не критично для звукоизоляции.
Колонну лучше изолировать.
...ничто не слишком...(с) Кармадон, "Альтист Данилов"
http://www.akustik.ua - акустическое проектное бюро
http://www.acoustic.ua - звукоизоляционные материалы
............................................
User avatar
Андрей Смирнов
Soundmoderator
 
Posts: 8791
Joined: 29 Aug 2006, 12:24
Location: Украина, Киев

Re: Спальня без окна

Postby aleonids » 17 Sep 2019, 18:04

Узел примыкания воздуховода к гипсокартону каким-то дополнительным образом нужно заделывать? Лента/силикон?
aleonids
 
Posts: 16
Joined: 09 Oct 2016, 23:24
Location: Гомель

Re: Спальня без окна

Postby Андрей Смирнов » 17 Sep 2019, 19:11

aleonids wrote:Узел примыкания воздуховода к гипсокартону каким-то дополнительным образом нужно заделывать? Лента/силикон?

Стандартно: упругая лента/силикон
...ничто не слишком...(с) Кармадон, "Альтист Данилов"
http://www.akustik.ua - акустическое проектное бюро
http://www.acoustic.ua - звукоизоляционные материалы
............................................
User avatar
Андрей Смирнов
Soundmoderator
 
Posts: 8791
Joined: 29 Aug 2006, 12:24
Location: Украина, Киев


Return to Звукоізоляція

Who is online

Users browsing this forum: No registered users and 11 guests