Vibrofix

Квартира с пер. из ячестого бетона и каркасом

Обговорення проблем захисту від шуму, звукоізоляції приміщень, віброізоляції обладнання.
Проєктування, матеріали, вимірювання

Квартира с пер. из ячестого бетона и каркасом

Postby Илья46 » 23 Jan 2018, 15:33

Добрый день! 3х комнатная квартира в доме из силикатного кирпича с железобетонным каркасом. Дом новостройка даже ремонт мало кто начал делает. Но слышимость шикарная, такое ощущение что звук от перфоратора вообще не ослабевает через 4-5 этажей
Характеристики:
наружные стены из силикатного кирпича м150 50-38см
колонны несущие железобетонные 40х40, ригели железобетонные на них лежат плиты
Перекрытия: сборные железобетонные панели 220мм СЕРИЯ 1.141 (я так понимаю что с пустотами). Сверху залита стяжка от застройщика чтобы выровнять пол и спрятать трубы отопления примерно 3 см, может чуть больше засчёт уклона БЕЗ УТЕПЛИТЕЛЯ прямо на плиты насосом
Перегородки из ячеисто бетонных блоков 200ммм межквартирные, 100мм межкомнатные поштукатурены
Санузлы: силикатный кирпич

Планирую шумоизоляцию пола 80м2.
Цель не слышать каждое слово соседей снизу и чтобы соседи снизу ночью не слышали телевизор, громкий разговор и ударный шум
Стяжка 6см(м300 с армирование мет. сеткой) по мин вате РОКВУЛ ФЛОР БАТТС 25мм. Всё верно? нормальный ли это выбор? Шумастоп я так понимаю это перепакованная урса, только дороже из-за рекламы

Вопросы:
1)Использовать мин вату по кромке или более тонкую виброразвязку? Что использовать из того что можно найти у крупных брендов?
2)Трубы поквартирного отопления чем обернуть, там где они выходят из стяжки?



Спальня "комната в комнате". Потолок в спальне: 20м2 и все стены (200мм пенобетон) кроме той где окно
Каркас на вибро подвесах с ватой руквул акустик баттс и обшивкой гкл в 2-3 слоя
Вопросы:

1)Виброподвесы. Цены кусаются на любые виды. Большая разница между Виброфлекс-коннект ПС(300р) и протектор(80-100р) ? Имеет смысл экономить? Нагружать можно как обычный подвес?
2)Варианты обшивки 1) гкл 3шт (2х12мм,5+1х9мм) 2) гкл 12.5мм + гвл 12,5мм 3)гкл 2х12,5мм 4) гкл 12,мм + 9мм

Удобнее всего по покупке и доставке сделать 2 слоя 12,5мм гкл. Потолок 3 если нужно

3)Нужны ли спец крепления для направляющий к стене? Или можно как при обычном виде гипсокартоновых работ?
4)Что использовать в качестве упругой подкладке к стенам? и полу? Knauf Дихтунгсбанд 3 мм или тонкий? Можно в два слоя?
5)Виброкрепление для стен того же типа что и для потолка? или лучше крепить только к потолку и полу?
6)Железобетонную балку как обшить?

Чертёж и фото, если нужно залью чуть позже
Илья46
 
Posts: 19
Joined: 23 Jan 2018, 01:13
Location: Россия, г. Курск

Re: Квартира с пер. из ячестого бетона и каркасом

Postby Илья46 » 24 Jan 2018, 00:51

Старался задать вопрос по правилам. Что нужно изменить кроме приложения планы квартиры? Готов закать виброподвесы или оплатить консультацию по звукоизоляциии

Доп вопрос:
1)Механизированная стяжка, которую заказываю на большой объём и подаётся через бетонанасос. Можно применять по плитам мин ваты руквул флор батл?
2)Какую подложку под ламинат купить соседу сверху?
Разница все таки есть падет ложка на кафель, на ламинат или на линолиум. Понятно что воздушные звуки не уйдут, но хотябы восстановить перекрытие до СНИП
Илья46
 
Posts: 19
Joined: 23 Jan 2018, 01:13
Location: Россия, г. Курск

Re: Квартира с пер. из ячестого бетона и каркасом

Postby Андрей Смирнов » 24 Jan 2018, 14:28

Илья46 wrote:Добрый день! 3х комнатная квартира в доме из силикатного кирпича с железобетонным каркасом. Дом новостройка даже ремонт мало кто начал делает. Но слышимость шикарная, такое ощущение что звук от перфоратора вообще не ослабевает через 4-5 этажей
Характеристики:
наружные стены из силикатного кирпича м150 50-38см
колонны несущие железобетонные 40х40, ригели железобетонные на них лежат плиты
Перекрытия: сборные железобетонные панели 220мм СЕРИЯ 1.141 (я так понимаю что с пустотами). Сверху залита стяжка от застройщика чтобы выровнять пол и спрятать трубы отопления примерно 3 см, может чуть больше засчёт уклона БЕЗ УТЕПЛИТЕЛЯ прямо на плиты насосом
Перегородки из ячеисто бетонных блоков 200ммм межквартирные, 100мм межкомнатные поштукатурены
Санузлы: силикатный кирпич

Планирую шумоизоляцию пола 80м2.
Цель не слышать каждое слово соседей снизу и чтобы соседи снизу ночью не слышали телевизор, громкий разговор и ударный шум
Стяжка 6см(м300 с армирование мет. сеткой) по мин вате РОКВУЛ ФЛОР БАТТС 25мм. Всё верно? нормальный ли это выбор? Шумастоп я так понимаю это перепакованная урса, только дороже из-за рекламы

Вопросы:
1)Использовать мин вату по кромке или более тонкую виброразвязку? Что использовать из того что можно найти у крупных брендов?
в качестве кромочной прокладки можно использовать минвату РОКВУЛ ФЛОР БАТТС или ленты из химически сшитого пенополиэтилена 6-8 мм, доступные в вашем городе, например, Изолон 300
2)Трубы поквартирного отопления чем обернуть, там где они выходят из стяжки?
для трубопроводов отопления необходимо применить трубную изоляцию из вспененного каучука толщино1 10-15 мм, например К-Флекс или Армафлекс

Спальня "комната в комнате". Потолок в спальне: 20м2 и все стены (200мм пенобетон) кроме той где окно
Каркас на вибро подвесах с ватой руквул акустик баттс и обшивкой гкл в 2-3 слоя
Вопросы:

1)Виброподвесы. Цены кусаются на любые виды. Большая разница между Виброфлекс-коннект ПС(300р) и протектор(80-100р) ? Имеет смысл экономить? Нагружать можно как обычный подвес?
какой протектор вы имеете ввиду? Есть мой оригинальный Vibrofix Protector, а есть SoundGuard Protektor, который просто скопировали с моего крепления, но применили упругий элемент непонятного происхождения. В вашем случае по нагрузкам и эффективности можно спокойно применять Vibrofix Protector, по поводу копий ничего сказать не могу.
2)Варианты обшивки 1) гкл 3шт (2х12мм,5+1х9мм) 2) гкл 12.5мм + гвл 12,5мм 3)гкл 2х12,5мм 4) гкл 12,мм + 9мм
Удобнее всего по покупке и доставке сделать 2 слоя 12,5мм гкл. Потолок 3 если нужно
чем больше масса облицовки (больше слоев гипсокартона), тем выше ЗИ, но надо знать меру :) Три обычных ГКЛ 12,5 будет лучше, минимальные требования 2 ГКЛ х 12,5
3)Нужны ли спец крепления для направляющий к стене? Или можно как при обычном виде гипсокартоновых работ?
стеновые облицовки крепить с помощью Vibrofix Protector
4)Что использовать в качестве упругой подкладке к стенам? и полу? Knauf Дихтунгсбанд 3 мм или тонкий? Можно в два слоя?
направляющие профили крепить через ленты из химически сшитого пенополиэтилена 5-6 мм , доступные в вашем городе, например, Изолон 300
5)Виброкрепление для стен того же типа что и для потолка? или лучше крепить только к потолку и полу?
стеновые облицовки крепить с помощью Vibrofix Protector
6)Железобетонную балку как обшить?
по обычной гипсокартонной технологии, как и потолок

Чертёж и фото, если нужно залью чуть позже
...ничто не слишком...(с) Кармадон, "Альтист Данилов"
http://www.akustik.ua - акустическое проектное бюро
http://www.acoustic.ua - звукоизоляционные материалы
............................................
User avatar
Андрей Смирнов
Soundmoderator
 
Posts: 8791
Joined: 29 Aug 2006, 12:24
Location: Украина, Киев

Re: Квартира с пер. из ячестого бетона и каркасом

Postby Илья46 » 31 Jan 2018, 20:24

Большое спасибо вам за развёрнутый ответ
Пока закупил руквул флор батс на весь пол в 1 слой с запасом

1)Появилась дополнительная информация. Высота стяжки от застройщика 5-6см в среднем, залито напрямую на плиту 220 пустотелую. Я так понимаю изоляция по воздушному шуму(разговоры, телевизор) будет более менее нормальная и звенеть скорее буду стены(ячестый бетонный блок 10 см)?

2)а)Сколько примерно добавится по звукоизоляции если заменить её на пирог и руквул флор баттс 25мм + 6-7см бетона м300
Я так понимаю что я получу сильную прибавку по ударному шуму, а по воздушному будет незначительно?
б)на 6 см стяжку от застройщика уложить руквул 25мм + кнауф супер пол (клееный гвл 25мм)

3)Как крепить трубы отопления а)допустимо положить их поверх руквул флор батс (привязав к сетке) и плёнки и залить в плавающей стяжке?
б)положить два слоя руквул и в нижнем слое вырезать отверстие под трубу?


4)Какой перепад плит и ровность основания допустим для укладки мин ваты? Можно 1-2, 5 см выровнять засчёт стяжки?

5)Подложка под ламинат для соседа.Нашёл в продаже плитами синтетический (полистирол) 3-5мм, выглядит лучше обычной тонкой подложки. Не сжимается насквозь пальцами. Рекомендую как подложку для выравнивая основания. Можно его использовать? Обычная подложка не вызывает доверия так как сжимается до 0. Хвойную подложка я так понимаю ещё хуже
Что можно положить под ламинат в пределах 1см для снижения ударного шума?
Илья46
 
Posts: 19
Joined: 23 Jan 2018, 01:13
Location: Россия, г. Курск

Re: Квартира с пер. из ячестого бетона и каркасом

Postby Sabotage » 31 Jan 2018, 23:39

Здравствуйте. Я бы на Вашем месте не спешил и раз уж решили делать шумоизоляцию в новостройке, то делать, а не пытаться отделаться полумерами. Все мы люди и прекрасно понимаем, что сделать шумоизоляцию по всем правилам во всей квартире ооочень дорого. Но вот в спальне, я бы посоветовал Вам сделать полную "комнату в комнате". Не поленитесь сбить стяжку и хотя бы в этой комнате залить новую по слою минваты. Не надейтесь на уже имеюуюся стяжку.
Все ниже описанное только мое мнение (на своих шишках набитая практика), подождите ответа Андрея, он может конкретнее ответит.
По своему опыту скажу, что сделав стяжку в комнате по двум слоям плит шумостоп, воздушный шум от соседей снизу (а подомной многодетная семья с малыми детками с криками, писками, визгами и прочими радостями :D ) напрочь исчез по полу (стены еще не сделал, звук идет по ним :lol: ). А что касается внутренних перегородок в квартире - лучше их снести (ну если конечно они переизлучают звук) и построить новые звукоизолционные.
Касательно труб отопления - категорически не советую чтобы трубы находились в теле стяжки (я намучался с небольшим отрезком, кусок трубы очень переизлучал звук, идущий в трубе и передавал на всю стяжку в комнате). Если есть возможность, то сделайте по варианту б) который Вы указали (положить два слоя руквул и в нижнем слое вырезать отверстие под трубу).
По перепаду плит - лучше конечно сделать черновую выравнивающую стяжку, только смотрите не перегрузите плиты перекрытия (для ваших пустотелых плит общий слой категорически не должен превышать 9см!!! Имеется ввиду выравнивающий слой бетона и слой бетона поверх мин плит). Для этого можно сделать выравнивающую стяжку с применением керамзита или полистиролбетона.
Под ламинат вроде советуют Акуфлекс.
User avatar
Sabotage
 
Posts: 44
Joined: 05 Nov 2017, 23:06
Location: Ukraine, Yuzhnoukrainsk

Re: Квартира с пер. из ячестого бетона и каркасом

Postby Андрей Смирнов » 01 Feb 2018, 15:39

Илья46 wrote:1)Появилась дополнительная информация. Высота стяжки от застройщика 5-6см в среднем, залито напрямую на плиту 220 пустотелую. Я так понимаю изоляция по воздушному шуму(разговоры, телевизор) будет более менее нормальная и звенеть скорее буду стены(ячестый бетонный блок 10 см)?
так, перегородки из пенобетона будут переизлучать шум очень сильно
2)а)Сколько примерно добавится по звукоизоляции если заменить её на пирог и руквул флор баттс 25мм + 6-7см бетона м300
Я так понимаю что я получу сильную прибавку по ударному шуму, а по воздушному будет незначительно?
дополнительная звукоизоляция воздушного шума может составить 5-8 дБ, это существенно
б)на 6 см стяжку от застройщика уложить руквул 25мм + кнауф супер пол (клееный гвл 25мм)
это менее эффективный вариант по сравнению с а)

3)Как крепить трубы отопления
а)допустимо положить их поверх руквул флор батс (привязав к сетке) и плёнки и залить в плавающей стяжке?
это не совсем правильно и требуется очень высокая квалификация строителей в процессе производства работ
б)положить два слоя руквул и в нижнем слое вырезать отверстие под трубу?

можно и так, но более правильно снячала выполнить облегченную черновую стяжку, а потом плавающий пол
4)Какой перепад плит и ровность основания допустим для укладки мин ваты? Можно 1-2, 5 см выровнять засчёт стяжки?
если минеральная вата толщиной 20 мм, то неровность основания может быть в пределах 3-5 мм. Стяжкой можно выровнять уровень пола в пределах 2-4 см.
5)Подложка под ламинат для соседа.Нашёл в продаже плитами синтетический (полистирол) 3-5мм, выглядит лучше обычной тонкой подложки. Не сжимается насквозь пальцами. Рекомендую как подложку для выравнивая основания. Можно его использовать? Обычная подложка не вызывает доверия так как сжимается до 0. Хвойную подложка я так понимаю ещё хуже
Что можно положить под ламинат в пределах 1см для снижения ударного шума?
подложка должна сжиматься пальцами для обеспечения звукоизоляции, твердые подложки не эффективны. Просто вы не учитываете физику процесса. Сжимая пальцами подложку, вы прикладываете усилие в пределах 3-5 кг, которое распределяется на площадь подушечки пальца примерно 1 кв.см. При этом возникает удельное нагрузка 3-5 кг/1 кв.см=30-50 тн/1 кв.м. Такой нагрузки на пол в квартире не может быть в принципе :)
Я рекомендую подложки из химически сшитого пенополиэтилена толщиной 3-4 мм.
...ничто не слишком...(с) Кармадон, "Альтист Данилов"
http://www.akustik.ua - акустическое проектное бюро
http://www.acoustic.ua - звукоизоляционные материалы
............................................
User avatar
Андрей Смирнов
Soundmoderator
 
Posts: 8791
Joined: 29 Aug 2006, 12:24
Location: Украина, Киев

Re: Квартира с пер. из ячестого бетона и каркасом

Postby Илья46 » 06 Feb 2018, 18:52

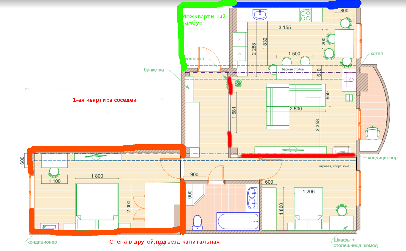
Добрый день! Благодарю вас за ответы! Пришёл к компромиссному решению. Сделать полную шумоизоляцию спальни, а остальной пол оставить как есть, положив толстую подложку акуфлекс. В спальне собью старую стяжку и сделаю новую по руквул флор 25мм в один слой + стяжка 6-7 см. Получится примерно 2 см выше остального пола и сделаю дверь с порогом. Трубу отопления перенесу в изоляцию стен. Потолок в два слоя руквул акустик. Стены в один слой
Прикладываю план:
план.png
план.png (252.24 KiB) Viewed 16347 times

1)Сильно поможет от шума сверху замена перегородки между залом и детской на гкл с ватой, прямо к полу и потолку через упругую подкладку? Обозначена красным.
Я так понимаю что воздушный шум я практически перестану слышать, если убрать стену из 10 см ячеистого пенобетона. И останется только ударный? Так как перекрытия 220мм пустотелая + 5-6 см стяжки тяжёлой


В кричном доме слышу шум не от потолка, а именно от тонкой стены из ячеистого пенобетона внутри квартиры

2)В магазинах не продаётся вспененный каучук. Зато много "вспененный полиэтилен" подойдёт ли он для прокладки между профилем и полом-стеной?

3)Химически вспененный полиэтилен также редкость и в основном под заказ. Я так понимаю разрекламированный акуфлекс пойдёт не хуже как подложка под ламинат. И какой-то эффект это даст? Т.е. госту перекрытие станет соответствовать по ударному шуму? По воздушному я понимаю и так нормальна за счёт стяжки в 6 см от застройщика

4)Подрезать стену и подкладывать какой-либо упругий материал к потолку даёт эффект? Чтобы развязать звенящую стену с потолком
Илья46
 
Posts: 19
Joined: 23 Jan 2018, 01:13
Location: Россия, г. Курск

Re: Квартира с пер. из ячестого бетона и каркасом

Postby Андрей Смирнов » 06 Feb 2018, 22:02

Илья46 wrote:Добрый день! Благодарю вас за ответы! Пришёл к компромиссному решению. Сделать полную шумоизоляцию спальни, а остальной пол оставить как есть, положив толстую подложку акуфлекс. В спальне собью старую стяжку и сделаю новую по руквул флор 25мм в один слой + стяжка 6-7 см. Получится примерно 2 см выше остального пола и сделаю дверь с порогом. Трубу отопления перенесу в изоляцию стен. Потолок в два слоя руквул акустик. Стены в один слой
Прикладываю план:
1)Сильно поможет от шума сверху замена перегородки между залом и детской на гкл с ватой, прямо к полу и потолку через упругую подкладку? Обозначена красным.
Я так понимаю что воздушный шум я практически перестану слышать, если убрать стену из 10 см ячеистого пенобетона. И останется только ударный? Так как перекрытия 220мм пустотелая + 5-6 см стяжки тяжёлой

Замена перегородки снизит и ударный и воздушный шум

В кричном доме слышу шум не от потолка, а именно от тонкой стены из ячеистого пенобетона внутри квартиры

2)В магазинах не продаётся вспененный каучук. Зато много "вспененный полиэтилен" подойдёт ли он для прокладки между профилем и полом-стеной?
обычный газонаполненный пенополиэтилен не подойдет, т.к. очень сильно сжимается под нагрузкой почти до нуля
3)Химически вспененный полиэтилен также редкость и в основном под заказ. Я так понимаю разрекламированный акуфлекс пойдёт не хуже как подложка под ламинат. И какой-то эффект это даст? Т.е. госту перекрытие станет соответствовать по ударному шуму? По воздушному я понимаю и так нормальна за счёт стяжки в 6 см от застройщика
ламинат по акуфлексу не приведет нормам по изоляции ударного шума для перекрытий 220 мм круглопустотных
4)Подрезать стену и подкладывать какой-либо упругий материал к потолку даёт эффект? Чтобы развязать звенящую стену с потолком
это один из подходов снижения ударного шума сверху, но распространение шума снизу остается все-равно
...ничто не слишком...(с) Кармадон, "Альтист Данилов"
http://www.akustik.ua - акустическое проектное бюро
http://www.acoustic.ua - звукоизоляционные материалы
............................................
User avatar
Андрей Смирнов
Soundmoderator
 
Posts: 8791
Joined: 29 Aug 2006, 12:24
Location: Украина, Киев

Re: Квартира с пер. из ячестого бетона и каркасом

Postby Илья46 » 02 Mar 2018, 10:56

Добрый день! Спасибо, купил основнойй материал. Остались виброподвесы. Звонил дилеру в спб - грамотно ответили на вопросы
1)PU и SPU в чём разница? Какой минимальный вес на каждый подвес? Строители посчитали 2 подвеса на квадратный метр или нужно 2,6-3 ?. Советуют PU В Питере так как их чаще применяют для дома и можно недогружать
2)После снятие старой стяжки и заделки неровностей остались 3 прута арматуры - около 0.5-1,5см выступают. Что с ними делать? Можно ли просто заложить ватой сверху и сделать стяжку?
Отопление будет перенесено по стенам

3)Герметик есть полиуретановый нетвердеющий Soudal Соудафлекс 40 ФС 600 мл ? Он подойдёт для стыков, я так понимаю главное чтобы был не твердеющий и полиуретановый или силиконовый
4)Чем оклеить канализационную трубу в стояке чтобы меньше издавала звуков (спуск воды в многоэтажке)? Вспененный каучук 1см заглушит звук или автомобильная шумка. Сделать каркас с ватой внутри будет проблемно
5)Подкладку под профиль 3мм вспененного каучука достаточно? Выпускается либо 3мм либо рулонами либо по 1м шириной и 1см толщины
Attachments
арматура.jpg
арматура.jpg (154.32 KiB) Viewed 16176 times
Илья46
 
Posts: 19
Joined: 23 Jan 2018, 01:13
Location: Россия, г. Курск

Re: Квартира с пер. из ячестого бетона и каркасом

Postby Андрей Смирнов » 02 Mar 2018, 11:25

Илья46 wrote:Добрый день! Спасибо, купил основнойй материал. Остались виброподвесы. Звонил дилеру в спб - грамотно ответили на вопросы
1)PU и SPU в чём разница? Какой минимальный вес на каждый подвес? Строители посчитали 2 подвеса на квадратный метр или нужно 2,6-3 ?. Советуют PU В Питере так как их чаще применяют для дома и можно недогружать
Vibrofix SPU обладает более низкой резонансной частотой, следовательно, более эффективен. Обычно более 2 креплений на кв.м. не требуется. Креплений Vibrofix необходимо столько же, сколько применяли бы и обычных подвесов. На удельную нагрузку на каждый подвес не обращайте внимания, т.к. конструкция Vibrofix предусматривает довольно широкие пределы допустимых нагрузок.
2)После снятие старой стяжки и заделки неровностей остались 3 прута арматуры - около 0.5-1,5см выступают. Что с ними делать? Можно ли просто заложить ватой сверху и сделать стяжку?
Отопление будет перенесено по стенам
арматуру следует заделать раствором с плавным распределением толщины. Для минеральной ваты недопустимы острые выступы, а плавное изменение толщины основания допускается.
3)Герметик есть полиуретановый нетвердеющий Soudal Соудафлекс 40 ФС 600 мл ? Он подойдёт для стыков, я так понимаю главное чтобы был не твердеющий и полиуретановый или силиконовый
подойдет
4)Чем оклеить канализационную трубу в стояке чтобы меньше издавала звуков (спуск воды в многоэтажке)? Вспененный каучук 1см заглушит звук или автомобильная шумка. Сделать каркас с ватой внутри будет проблемно
можно использовать вспененный каучук, хотя короб ГКЛ эффективнее
5)Подкладку под профиль 3мм вспененного каучука достаточно? Выпускается либо 3мм либо рулонами либо по 1м шириной и 1см толщины
прокладки под направляющий профиль не менее 6 мм
...ничто не слишком...(с) Кармадон, "Альтист Данилов"
http://www.akustik.ua - акустическое проектное бюро
http://www.acoustic.ua - звукоизоляционные материалы
............................................
User avatar
Андрей Смирнов
Soundmoderator
 
Posts: 8791
Joined: 29 Aug 2006, 12:24
Location: Украина, Киев

Re: Квартира с пер. из ячестого бетона и каркасом

Postby Илья46 » 24 Jul 2018, 00:37

Большое спасибо за консультацию. Доделываю ремонт
Появились дополнительные вопросы:
1)Нужно изолировать герметиком стык минваты со стеной? (кромка плавающей стяжки выполнена из минваты 25мм и обрезана вровень с полом. Она останется внутри облицовки
2)За каркасом потолка есть проводка в пластиковых гофрах. Как быть с ней? Я так понимаю это не окажет большого влияния, так как связь относительно не жёсткая . В данный момент гофры закреплены к потолку через пластиковое крепление. Стараться чтобы не касалось каркаса? Я так понимаю это окажется крайне малое влияние
3)Проход проводки в гофрах к розеткам с потолка: гофры окажутся за изоляцией. Как быть с переходом с потолка на стену. Можно ли провести в гофре и загерметизировать стык герметиком.
Т.е. общий контур окажется герметичным, но стены с потолком будут сообщаться через гофры?
4)Что делать с подразетниками? Есть ли инструкция по изготовлению коробов или готовое решение? (4 подразетника (1 выключатель и три розетки) на стене с соседями из ячеистого бетона которая будет выполнена из 2х50мм минваты и ГВЛ 9,5+ГКЛ 12,5+ГКЛ 12,5)
5)Что делать с окном и главное подоконником?
Застройщиком оно было установлено на пену, откосы заштукатурены. После снятия поддоконника видно что пена продувается. Откосы переделали - заштукатурены и утеплены. Под окном я так понимаю нужно также заштукатурить поверх пены и только потом устанавливать подоконник на пену. Подоконник из сендвича
Есть ли замена пены, которая не пропускает звук?
Илья46
 
Posts: 19
Joined: 23 Jan 2018, 01:13
Location: Россия, г. Курск

Re: Квартира с пер. из ячестого бетона и каркасом

Postby Андрей Смирнов » 24 Jul 2018, 01:07

Илья46 wrote:Большое спасибо за консультацию. Доделываю ремонт
Появились дополнительные вопросы:
1)Нужно изолировать герметиком стык минваты со стеной? (кромка плавающей стяжки выполнена из минваты 25мм и обрезана вровень с полом. Она останется внутри облицовки
не обязательно
2)За каркасом потолка есть проводка в пластиковых гофрах. Как быть с ней? Я так понимаю это не окажет большого влияния, так как связь относительно не жёсткая . В данный момент гофры закреплены к потолку через пластиковое крепление. Стараться чтобы не касалось каркаса? Я так понимаю это окажется крайне малое влияние
Стараться чтобы не касались каркаса
3)Проход проводки в гофрах к розеткам с потолка: гофры окажутся за изоляцией. Как быть с переходом с потолка на стену. Можно ли провести в гофре и загерметизировать стык герметиком.
Т.е. общий контур окажется герметичным, но стены с потолком будут сообщаться через гофры?
можно
4)Что делать с подразетниками? Есть ли инструкция по изготовлению коробов или готовое решение? (4 подразетника (1 выключатель и три розетки) на стене с соседями из ячеистого бетона которая будет выполнена из 2х50мм минваты и ГВЛ 9,5+ГКЛ 12,5+ГКЛ 12,5)
поиск по этому форуму. Обсуждалось многократно
5)Что делать с окном и главное подоконником?
Застройщиком оно было установлено на пену, откосы заштукатурены. После снятия поддоконника видно что пена продувается. Откосы переделали - заштукатурены и утеплены. Под окном я так понимаю нужно также заштукатурить поверх пены и только потом устанавливать подоконник на пену. Подоконник из сендвича
Есть ли замена пены, которая не пропускает звук?
сложный вопрос, требует индивидуального рассмотрения
...ничто не слишком...(с) Кармадон, "Альтист Данилов"
http://www.akustik.ua - акустическое проектное бюро
http://www.acoustic.ua - звукоизоляционные материалы
............................................
User avatar
Андрей Смирнов
Soundmoderator
 
Posts: 8791
Joined: 29 Aug 2006, 12:24
Location: Украина, Киев

Re: Квартира с пер. из ячестого бетона и каркасом

Postby Илья46 » 26 Jul 2018, 18:25

Спасибо!
В данный момент готов каркас потолка на виброподвесах - профиль не доходит до стены
Все стены по периметру буду зашиваться - 3 стены 50мм вата, 1 - 100мм. Нужно ли стыковать гисокартон в плотную к каждой из стен? Т.е. каждая стена и потолок должна быть герметична относительно друг друга или только изнутри?
Если я вообще не буду доводить гипсокартон до капитальных стен и мои перегородки будут свободно сообщаться? Т.е. я положу вату по всему периметру. Это отразится в лучшую сторону? Или лучше вначале полностью зашить гипсокартоном до стен и загерметизировать потолок и проблемную стену, а к ним уже пристраивать остальные перегородки
Т.е. то что стены внутри свободно сообщаются это плюс или минус? Или так сделать сложнее и лучше делать этапами и это увеличит шансы на ошибку?
Если нужно могу нарисовать схему
Илья46
 
Posts: 19
Joined: 23 Jan 2018, 01:13
Location: Россия, г. Курск

Re: Квартира с пер. из ячестого бетона и каркасом

Postby Андрей Смирнов » 27 Jul 2018, 09:18

Стыковать ГКЛ облицовки к каждой из стен не требуется.
Просто соединяйте их друг с другом, тогда получится реальный "room in room".
...ничто не слишком...(с) Кармадон, "Альтист Данилов"
http://www.akustik.ua - акустическое проектное бюро
http://www.acoustic.ua - звукоизоляционные материалы
............................................
User avatar
Андрей Смирнов
Soundmoderator
 
Posts: 8791
Joined: 29 Aug 2006, 12:24
Location: Украина, Киев

Re: Квартира с пер. из ячестого бетона и каркасом

Postby Илья46 » 29 Jul 2018, 17:01

Спасибо
Как отразится на звукоизоляции то что у конструкций разная толщина? Т.е. потолок и стена с соседями 100мм минваты (гкл+гвл), а остальные 3 стены 50мм вата(2 х гкл) и все они сообщаются?
Я так понимаю если стены будут сообщаться с потолком и звук идёт в основном с одной стороны - то это хорошо. Т.е. это даст только плюс звукоизоляции, так как больше объём перегородки?
Т.е. для изоляции шума с потолка будет дополнительно помогать объём ваты в стенах


Как быть с розетками, т.е. там будет около 6 подразетников (3 на одной стене) на комнату имеет ли значение сообщаются стены с потолком или нет? Я так понимаю пока звук дойдёт с потолка до розетки - он полностью затухнет в объёме ваты
Илья46
 
Posts: 19
Joined: 23 Jan 2018, 01:13
Location: Россия, г. Курск

Re: Квартира с пер. из ячестого бетона и каркасом

Postby Андрей Смирнов » 29 Jul 2018, 17:41

Внутри каркасов вдоль облицовки звук практически не распространяется из-за высокого затухания.
...ничто не слишком...(с) Кармадон, "Альтист Данилов"
http://www.akustik.ua - акустическое проектное бюро
http://www.acoustic.ua - звукоизоляционные материалы
............................................
User avatar
Андрей Смирнов
Soundmoderator
 
Posts: 8791
Joined: 29 Aug 2006, 12:24
Location: Украина, Киев

Re: Квартира с пер. из ячестого бетона и каркасом

Postby Илья46 » 26 Sep 2018, 20:03

Спасибо!
Добрый вечер!
Заканчиваю черновую часть ремонта. Каркас полностью готов.
1) Столкнулся с тем что строители пытались прижать вату к стене в два слоя из благих побуждений, т.е. не было плотного контакта с ГКЛ (0,5 см зазор между ГКЛ и ватой на небольшой части капитальной стены)
По критичным стенам сделано всё верно. На будущее насколько важен плотное примыкание гипсокартона и ваты? Или нет разницы расположение главное общая толщина конструкции?
2)Для эстетика удобнее расположить порог двери за звукоизолирующей стяжкой. Т.е. дверная коробка будет опираться на голый бетон без изоляции.На сколько это плохо? Как стоит монтировать дверь, если нет возможности поставить коробку на звукоизолирующую стяжку?

Есть также вариант монтировать в в контуре звукоизоляции, но без порога или с поиском очень тонкого порога. Я так понимаю что сама по себе дверь не должна звенеть и изолирую я комнату от соседей. Поэтому не будет большой разницы ставить её в контуре изоляции или сместить на 15 см на голый бетон без изоляции
Илья46
 
Posts: 19
Joined: 23 Jan 2018, 01:13
Location: Россия, г. Курск

Re: Квартира с пер. из ячестого бетона и каркасом

Postby Андрей Смирнов » 27 Sep 2018, 09:10

1. расположение ваты в каркасе в данном случае не имеет значения
2. не понятно описание. В какой стене расположена указанная дверь? Почему вдоль двери проходит граница плавающего пола и голого бетона?
...ничто не слишком...(с) Кармадон, "Альтист Данилов"
http://www.akustik.ua - акустическое проектное бюро
http://www.acoustic.ua - звукоизоляционные материалы
............................................
User avatar
Андрей Смирнов
Soundmoderator
 
Posts: 8791
Joined: 29 Aug 2006, 12:24
Location: Украина, Киев

Re: Квартира с пер. из ячестого бетона и каркасом

Postby Илья46 » 22 Jan 2019, 02:33

Добрый день! Спасибо большое за ваши ответы. Почти закончил шумоизоляцию - результаты отличные вышли даже по ударному шуму молотка через несколько этажей - сильно на слух снижается звук если зайти в комнату (без двери). На слух шум за дверью если в центре комнаты или из окна - если подойти ближе к подоконнику. Т.е. стены и потолок со стяжкой свою функцию выполняют на отлично.
Но слышно от окна. Там пока меня не было строители утеплили пеноплексом (1см) откосы и осталось около двух сантиметров по минимальной стороне на на то чтобы на него приклеить гкл. Такое ощущение что после этого ударный шум стал сильнее слышен от стены где окно. В данный момент верхняя часть откоса окна выполнена таким образом: приклеен на раствор гвл лист на бетон и вторая его часть закреплена к каркасу шумоизоляции на саморезы через ленту из синтетического каучука. Строители планировали выполнить также и остальные. Что неправильно
Что можно сделать в этой ситуации, чтобы хотя бы не ухудшить звукоизоляцию остальных стен? по заполнению ватой или хотя бы виброразвязанный профиль - нет места
Т.е. как можно закрепить лист гипсокартона к стене, чтобы он был с ней виброразвязан?
Что думал сделать:
1)убрать лист гвл, который посажен на цемент к откосу окна.
2)проклеить бетонные откосы окна по всей поверхности чем-нибудь виброразвязывающим (больше 4м2- много уйдёт ленты) - синтетический каучук - дорого. На него приклеить гвл который будет крепиться к каркасу стен. Я так понимаю пытаться отвязывать лист гкл от каркаса бесполезно, так как потом всёравно шпаклевать угол и будет связь
3)На пластиковый подоконник приклеить снизу вибропласт 4мм(тяжёлая автомобильная шумка 7 кг на м2) для веса. Также думал использовать его для оклейки стен. как виброразвязку, так как синтетический каучук могу найти только в лентах по 5 см шириной

Чем отвязать гкл от стены, если на это есть всего около сантиметра? Можно ли оставить как есть или тогда шумоизоляция от ударного шума пойдёт насмарку? Потолок на виброподвесах, плавающая стяжка по вате на которой стоят все стены
Илья46
 
Posts: 19
Joined: 23 Jan 2018, 01:13
Location: Россия, г. Курск

Re: Квартира с пер. из ячестого бетона и каркасом

Postby Андрей Смирнов » 24 Jan 2019, 14:41

Выполнение звукоизоляционных работ всегда связано с компромиссами.
Очень редко в реальных квартирах можно реализовать все принципы строительной акустики и к этому надо быть готовым.
Закрепить ГКЛ на откос с зазором всего 1 см и при этом обеспечить акустическую развязку очень сложно или практически невозможно.
Самое "тонкое" решение это приклеить на строительный клей к откосу минеральную вату толщиной 20 мм, а затем к ней приклеить с помощью гипсовой шпаклевки лист ГВЛ.
К оконной раме ГВЛ может примыкать с помощью стандартного пластикового п-образного профиля, который наклеивается на раму двусторонним упругим тейпом (самоклеющаяся лента).
К облицовке стены лист ГВЛ примыкает стандартно саморезы/шпаклевка.

Откосы-профиль.jpg
Откосы-профиль.jpg (91.81 KiB) Viewed 14084 times
...ничто не слишком...(с) Кармадон, "Альтист Данилов"
http://www.akustik.ua - акустическое проектное бюро
http://www.acoustic.ua - звукоизоляционные материалы
............................................
User avatar
Андрей Смирнов
Soundmoderator
 
Posts: 8791
Joined: 29 Aug 2006, 12:24
Location: Украина, Киев

Next

Return to Звукоізоляція

Who is online

Users browsing this forum: No registered users and 27 guests