Здравствуйте.
Имеется 2ух комнатная квартира суммарной площадью 69 кв/м, предназначенное для проживания семьи (Я, супурга, сын 5ти лет)
Квартира располагается в г.Краснодар, расположена возле оживленной магистрали с трамвайными путями, на 13м этаже
Необходимо добиться звукоизоляции воздушного шума(на сколько я понимаю правильно свое желание.)
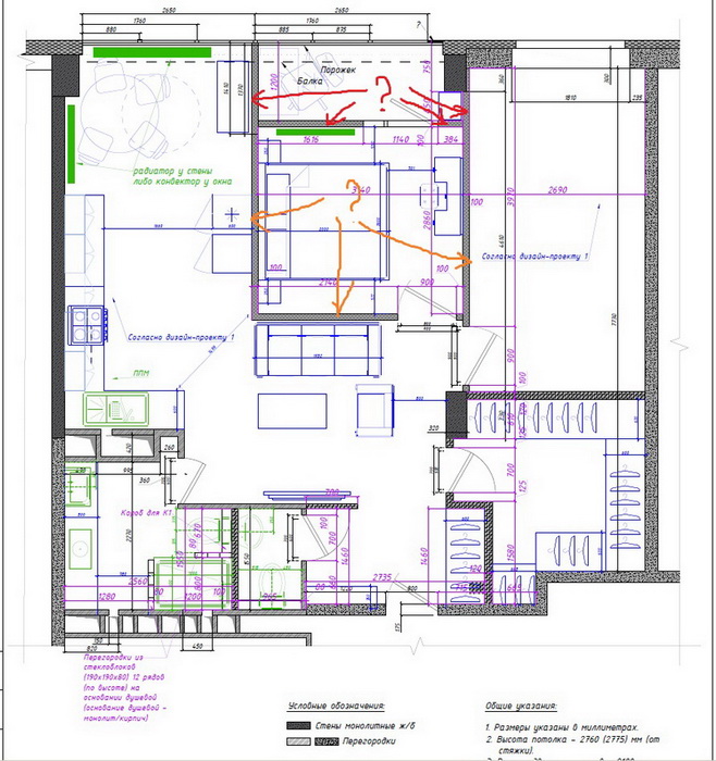
Особое внимание хочется уделить спальной комнате(находится посреди помещения на плане)
В основном мы хотим что бы нам не мешали звуки с кухни, детской и соседей сверху(хотя я не уверен что они будут шумные)
Планировчное решение которые мы будем реализовывать
https://www.dropbox.com/s/5z8ccqpvdrfmk9j/WORK_ARCH_21-Krasnodar-2-06-%D0%9C%D0%B5%D0%B1%D0%B5%D0%BB%D1%8C.pdf?dl=0
Тип помещения:
- Конструктивные решения: фундаменты – сплошная железобетонная плита; конструктивная схема – монолитный железобетонный рамно-связевый каркас; наружные стены – облицовочный кирпич 120 мм, газобетонные блоки 300мм; перегородки в сан.узлах – кирпичные 65 мм М100, межквартирные –бетонные блоки 200мм, кирпичные 250 мм М100;стены между лестничной клеткой и квартирой – железобетон 200 мм с облицовкой минераловатными плитами 50 мм и штукатуркой цементно-песчаным раствором 25мм; кровля – скатная из профнастила с внутренними водостоками. Фасад комбинированный – облицовочный кирпич, штукатурка и окраска.
-Штукатурка наружных и внутренних межквартирных стен, с устройством стяжки полов;
- Окна и балконные блоки – металлопластиковые;
План помещения по ссылке (квартира слева сверху , 2ух комнатная(
https://www.dropbox.com/s/5nifa56gpsu7hl6/%D0%9A%D0%BB%D0%B0%D0%B4%D0%BA%D0%B0%2013-15%20%D1%8D%D1%82%D0%B0%D0%B6%D0%B8%20%D1%81%D0%B5%D0%BA%D1%86%D0%B8%D1%8F%203.pdf?dl=0
вариант планировки в ДДУ от застройщика(слева, оранжевая, номер 207)
https://www.dropbox.com/s/3200kni8hrrb8y9/%D0%9A%D0%B2%D0%B0%D1%80%D1%82%D0%B8%D1%80%D0%B0%20207.jpg?dl=0
Фотографии помещения изнутри по ссылке
https://www.dropbox.com/sh/wj6h62coierttzw/AADjMgCrW_QvNj5-YhBN1bKAa?dl=0
Вопрос
Помогите выбрать материал для межкомнатных перегородок в соотношении цена качества.
Есть ли классические решения моего вопроса?
На данные момент я пришел к следующим вариантам материалов для возведения межкомнатных перегородок:
1. ПГП 100(волма) + Саундлайн-ПГП Супер,
http://www.acoustic.ru/productions/tonk ... PGP_Super/
2. Конструкиция http://www.acoustic.ru/constructions/zv ... gorodok/8/
ps Возможно я очень "сырой" еще по необходимым знаниям, т/е прочел всего страниц 30 форума
Буду благодарен за ответы
