Vibrofix

Подскажите, как лучше сделать звукоизоляцию.

Обговорення проблем захисту від шуму, звукоізоляції приміщень, віброізоляції обладнання.
Проєктування, матеріали, вимірювання

Подскажите, как лучше сделать звукоизоляцию.

Postby Rekmas » 07 Aug 2014, 22:17

Подскажите, как лучше сделать звукоизоляцию.
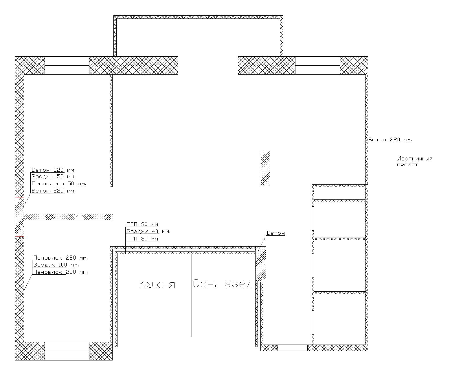
Идея такая, проложить между двумя ПГП звукоизоляцию 5 см. Поможет?
Не понятно, что делать с деформационным швом, на плане левая стена. На фото шов еще не заложенный пеноблоками.
Звук.jpg
Звук.jpg (178.14 KiB) Viewed 5352 times

Звук1.jpg
Звук1.jpg (48.08 KiB) Viewed 5352 times

звкук2.jpg
звкук2.jpg (63.9 KiB) Viewed 5352 times

Там где бетон, пеноплекс, а где пеноблоки просто воздушная прослойка.
Rekmas
 
Posts: 21
Joined: 17 Oct 2013, 22:42

Re: Подскажите, как лучше сделать звукоизоляцию.

Postby Андрей Смирнов » 09 Aug 2014, 11:41

Насколько я понимаю, ПГП 80 мм это не пенобетон а пазогребневые гипсовые блоки. Пенобетон обычно имеет толщину 100 мм.
Применение ваты между ПГП существенно не увеличит звукоизоляцию, в отличие от варианта перегородки из ГКЛ 12,5 мм х 2.
...ничто не слишком...(с) Кармадон, "Альтист Данилов"
http://www.akustik.ua - акустическое проектное бюро
http://www.acoustic.ua - звукоизоляционные материалы
............................................
User avatar
Андрей Смирнов
Soundmoderator
 
Posts: 8791
Joined: 29 Aug 2006, 12:24
Location: Украина, Киев

Re: Подскажите, как лучше сделать звукоизоляцию.

Postby Rekmas » 09 Aug 2014, 18:36

Андрей Смирнов wrote:Насколько я понимаю, ПГП 80 мм это не пенобетон а пазогребневые гипсовые блоки. Пенобетон обычно имеет толщину 100 мм.
Применение ваты между ПГП существенно не увеличит звукоизоляцию, в отличие от варианта перегородки из ГКЛ 12,5 мм х 2.


Да ПГП 80 мм. Пенобетон 220 мм. Всего два типа стен, которые я хочу звукоизолировать.
А какую звукоизоляцию можете посоветовать?
А если заложить кирпичом 60 мм?
Rekmas
 
Posts: 21
Joined: 17 Oct 2013, 22:42

Re: Подскажите, как лучше сделать звукоизоляцию.

Postby Андрей Смирнов » 11 Aug 2014, 09:44

Двойная перегородка из кирпича "на ребро" 60 мм будет гораздо эффективнее, чем ПГП и пенобетон.
...ничто не слишком...(с) Кармадон, "Альтист Данилов"
http://www.akustik.ua - акустическое проектное бюро
http://www.acoustic.ua - звукоизоляционные материалы
............................................
User avatar
Андрей Смирнов
Soundmoderator
 
Posts: 8791
Joined: 29 Aug 2006, 12:24
Location: Украина, Киев

Re: Подскажите, как лучше сделать звукоизоляцию.

Postby Rekmas » 11 Aug 2014, 14:04

Андрей Смирнов wrote:Двойная перегородка из кирпича "на ребро" 60 мм будет гораздо эффективнее, чем ПГП и пенобетон.

Двойная это 120 мм? Мне по хорошему надо уложиться в 120 мм вместе с звукоизоляцией. И как я понимаю кирпич надо на что то класть, что бы звук с пола не проходил по нему.
Rekmas
 
Posts: 21
Joined: 17 Oct 2013, 22:42

Re: Подскажите, как лучше сделать звукоизоляцию.

Postby Андрей Смирнов » 11 Aug 2014, 14:17

Я не понял. Вы хотели выполнить ПГП 80+вата+ПГП 80. Я предлагаю перегородку "кирпич "на ребро" 60 мм +вата+кирпич "на ребро" 60 мм", т.е. более тонкую конструкцию, а вам все-равно слишком толсто? :)
Изолировать тонкую кирпичную кладку от перекрытий и стен не получится вменяемыми средствами, да это и не нужно в вашем случае.
...ничто не слишком...(с) Кармадон, "Альтист Данилов"
http://www.akustik.ua - акустическое проектное бюро
http://www.acoustic.ua - звукоизоляционные материалы
............................................
User avatar
Андрей Смирнов
Soundmoderator
 
Posts: 8791
Joined: 29 Aug 2006, 12:24
Location: Украина, Киев

Re: Подскажите, как лучше сделать звукоизоляцию.

Postby Rekmas » 11 Aug 2014, 18:44

Андрей Смирнов wrote:Я не понял. Вы хотели выполнить ПГП 80+вата+ПГП 80. Я предлагаю перегородку "кирпич "на ребро" 60 мм +вата+кирпич "на ребро" 60 мм", т.е. более тонкую конструкцию, а вам все-равно слишком толсто? :)
Изолировать тонкую кирпичную кладку от перекрытий и стен не получится вменяемыми средствами, да это и не нужно в вашем случае.

Да, не совсем правильно объяснил. Я могу убрать только одну стену из ПГП, вторую трогать нельзя.
А если между полом и кирпичной кладкой проложить пробку?
Rekmas
 
Posts: 21
Joined: 17 Oct 2013, 22:42

Re: Подскажите, как лучше сделать звукоизоляцию.

Postby Андрей Смирнов » 12 Aug 2014, 08:43

Почитайте пожалуйста обсуждение по сабжу на этом же форуме. Я думаю, что много вопросов отпадет.
...ничто не слишком...(с) Кармадон, "Альтист Данилов"
http://www.akustik.ua - акустическое проектное бюро
http://www.acoustic.ua - звукоизоляционные материалы
............................................
User avatar
Андрей Смирнов
Soundmoderator
 
Posts: 8791
Joined: 29 Aug 2006, 12:24
Location: Украина, Киев


Return to Звукоізоляція

Who is online

Users browsing this forum: No registered users and 16 guests

cron