Добрый день, Андрей.
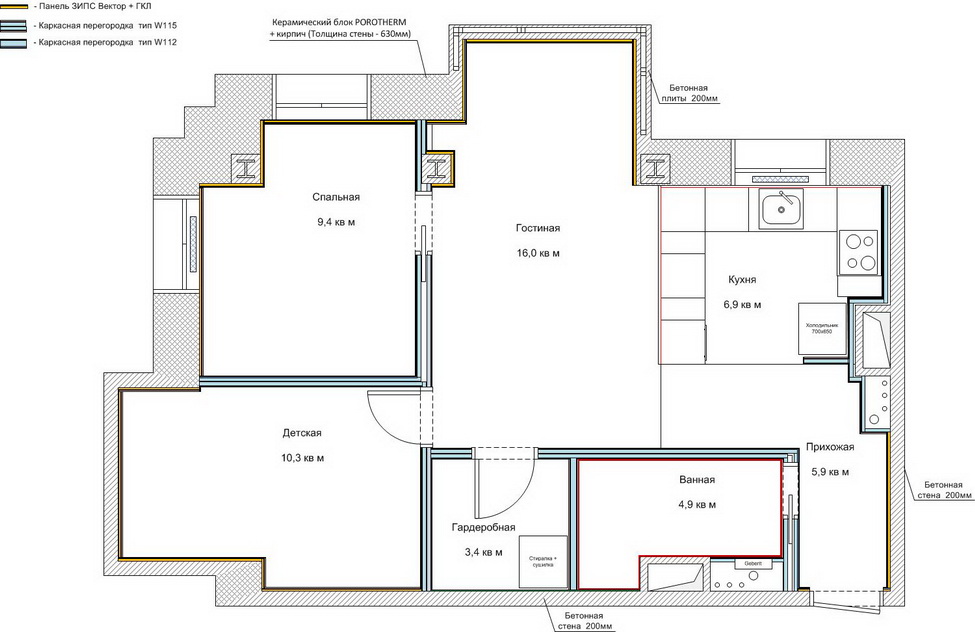
Приобрели квартиру площадью 56 кв.м в монолитном доме на 15 этаже 25 этажного дома. Квартира угловая: 2 стенки (бетонные – 200мм) граничат соседями, ещё 2 стенки выходят на улицу (выложенные из керамического блока POROTHERM + полноформатный облицовочный кирпич (толщина стены 510+120=630мм)). Внутренних перегородок нет. Межэтажные перекрытия не менее 200мм. В квартире имеются 2 стояка водоснабжения с канализацией и 2 вентшахты (бетонный короб). Также имеются 3 колонны: 2 в толще стены (которая выложена из блоков), одна отстоит от внешней стены на 500мм (на плане изображены в виде буквы «Н»). Высота потолка 2,8м
В квартире имеются 2 эркера с полным остеклением по горизонтали, снизу бортик (бетонные плиты) ~700мм.
Стяжки нет. По полу идёт разводка отопления (Гибкие пластиковые трубы в гофре d=40мм)
Почему я задумался о звукоизоляции.
Сейчас снимаю квартиру в монолитном доме с межкомнатными стенами из пазогребневых гипсовых блоков толщиной 100мм. Мне порой кажется, что в этом доме нет ни межкомнатных перегородок, ни межэтажных перекрытий. Через стену слышу, довольно хорошо, разговор жены, а по ночам слышно как ходят в туалет соседи сверху. Просто ужас. Дому 3 года, поэтому ремонты ещё продолжаются, перфоратор слышно, как будто сам сверлю. Я не хочу, чтоб такое было в нашей новенькой квартире. К тому же у нас годовалый ребёнок.
Перечитал кучу постов на этом форуме и на других. Голова кругом. Долго изучал Альбом инженерных решений и технологию KNAUF, т.к. межкомнатные перегородки собираюсь из ГКЛ на двух независимых каркас тип W115 (ГКЛ12,5 +ГВЛ10+профиль 50 с минватой+ воздушная прослойка 10+ профиль 50 с минватой+ГВЛ10+ ГКЛ12,5). Внешние стены хочу обшить панелями ЗИПС Вектор. Панели выбрал самые тонкие, т.к. квартира не большая и каждый миллиметр на счету.
Но самое главное – не могу определиться каким образом делать ЗИ на полу. В одном из постов обсуждалась подобная тема (с разводкой отопления по полу), но если делать черновую стяжку 40мм(чтоб покрыть трубы)+ плиты Rockwool ФЛОР БАТТС 25мм+ стяжка 70мм+ финишное покрытие 25мм (плитка/паркетная доска)=160мм – это слишком толстый сендвич.
Андрей, если поможете разобраться ЗИ в нашей квартире, то многие жители нашего жилого комплекса будут вам благодарны, т.к. у многих стоит вопрос по ЗИ пола.
Давайте начнём с пола, а потом плавно перейдём к стенам и потолку (потолок, думаю, наименее проблематичное место в реализации ЗИ):
1. Как можно уменьшить толщину сендвича на полу, описанного мной выше?
2. Что можете сказать про гранулированную смесь Шумопласт? (Не нашёл ваших отзывов на форуме)
3. Какое у Вас отношение сухой стяжке Knauf Компэвит?
4. Нужно ли делать ЗИ в ванной? Если да, то какие материалы использовать (плиты ФЛОР БАТТС или более тонкий и упругий материал)?
5. Что должно быть смонтировано первым: стяжка с разбиением на зоны (с независимым контуром в каждой комнате), а затем возведение стен из ГКЛ. Или можно выставить стены (с разрывом профиля в местах пересечения с трубами отопления), а затем в каждой комнате делать стяжку со ЗИ. Или последовательность будет зависеть напрямую от типа “сендвича” (сухая стяжка, полусухая)?
