Vibrofix

Улучшение зукоизоляции гипсовых стен

Обговорення проблем захисту від шуму, звукоізоляції приміщень, віброізоляції обладнання.
Проєктування, матеріали, вимірювання

Улучшение зукоизоляции гипсовых стен

Postby vladvoron » 06 Feb 2011, 10:56

Добрый день!
Подскажите, как улучшить звукоизоляцию стены с соседями - уменьшить воздушный шум ( слышны разговоры и телевизор ), чтобы не мешать соседям и они не мешали нам?
Дом- чешка,красный кирпич. Потолок и пол - плиты перекрытия. Все стены с соседями из кирпича по 50 см толщиной, но в спальне стена с соседями состоит из двух гипсовых перегородок толщиной около 8 см каждая и прослойки воздуха между ними от 5 до 10см ( кривые стены ). Высота комнаты 2,6м. Длина стены около 6м. Делаем капремонт - всё сбито до кирпича. С отделкой стены пока не решили - или обои, или покраска. Расшили все трещины в стене, чтобы хорошо глубоко замазать.
Вопрос №1. Стоит ли засыпать пространство между перегородками сыпучими материалами ( песок, перлитовый песок, керамзитовый песок, вермикулит ). И чем лучше? Песок пугает весом. Или оставить воздушную прослойку?
Вопрос №2. Что лучше нанести на свою стену,если есть возможность потратить 30 - 50мм - звукоизоляционную штукатурку или 2-3 слоя ГКЛ или ГВЛ. Может между листами положить мембрану типа "Тексаунда"? Даст ли это результат?
Вопрос №3. На потолке бетонные плиты, швы расшили, чтобы замазать раствором. У соседей сверху на полу стяжка и плитка - очень слышно как двигают стулья и басы музыки. Насколько эффективен будет на потолке каркас из профилей, обшитый ГКЛ и звукоизолирующей ватой внутри? Или эффект будет незначительным и не стоит монтировать такую конструкцию?
Заранее спасибо за совет.
vladvoron
 
Posts: 2
Joined: 06 Feb 2011, 10:21

Re: Улучшение зукоизоляции гипсовых стен

Postby Андрей Смирнов » 06 Feb 2011, 19:32

Это типовая проблема низкой звукоизоляции межквартирных стен из двойных гипсовых блоков или пенобетона.
Вопрос №1. Стоит ли засыпать пространство между перегородками сыпучими материалами ( песок, перлитовый песок, керамзитовый песок, вермикулит ). И чем лучше? Песок пугает весом. Или оставить воздушную прослойку?

Если бы позволяла несущая способность перекрытия, то засыпка песком существенно улучшила бы звукоизоляцию такой двойной перегородки. Поверхностная масса двойной гипсовой перегородки составляет примерно 160 кг, а звукоизоляция примерно соответствует одинарной перегородке из полнотелого кирпича 120 мм. Поэтому засыпка песком могла бы увеличить поверхностную массу в 1,5-2 раза, т.е. увеличить ЗИ на 5-6 дБ. Но я думаю, что такая легкая перегородка поставлена строителями в том числе по причине невысокой несущей способности перекрытия.
Вопрос №2. Что лучше нанести на свою стену,если есть возможность потратить 30 - 50мм - звукоизоляционную штукатурку или 2-3 слоя ГКЛ или ГВЛ. Может между листами положить мембрану типа "Тексаунда"? Даст ли это результат?

Это позволит получить незначительный результат за счет увеличения массы конструкции.
Более эффективным решением с точки зрения строительной акустики будет следующее:
1. демонтировать гипсовую перегородку с вашей стороны (рис 1)
2. смонтировать её заново вплотную к соседской без воздушного зазора!!! (рис 2)
3. смонтировать каркасную гипсокартонную облицовку (ГКЛ х 3 слоя) или ГКЛ Кнауф Титан х 2-3 слоя на максимально возможном относе от стены на независимом каркасе или с закреплением к стене с помощью эластичных креплений Vibrofix CD. Независимый каркас предпочтительнее. К двум слоям ГКЛ Кнауф Титан можно добавить один слой высокоплотной мембраны Vibrofix ML (mass loaded).
Хотя самым эффективным будет снести существующую перегородку и возвести новую из обычного красного полнотелого кирпича толщиной 250 мм по договоренности с соседом при условии достаточной несущей способности перекрытия.
Посмотрите на системы звукоизоляции стен № 5-7 по ссылке http://www.acoustic.ua/recommendations/883

Звукоизоляция двойной стенки СЧ1.JPG
Звукоизоляция двойной стенки СЧ1.JPG (35.03 KiB) Viewed 63999 times

Вопрос №3. На потолке бетонные плиты, швы расшили, чтобы замазать раствором. У соседей сверху на полу стяжка и плитка - очень слышно как двигают стулья и басы музыки. Насколько эффективен будет на потолке каркас из профилей, обшитый ГКЛ и звукоизолирующей ватой внутри? Или эффект будет незначительным и не стоит монтировать такую конструкцию?

Звукоизоляционный подвесной ГКЛ потолок отличается от обычного, особенно использованием специальных звукоизоляционных креплений каркаса и акустическими направляющими профилями (см. http://www.acoustic.ua/recommendations/884)
Если косвенная передача шума "сверху вниз" по стенам незначительная, то подвесной ЗИ потолок поможет снизить уровень шума на 8-10 дБ.
Если косвенная передача высока, то потребуется монтаж подвесного потолка на эластичных креплениях и дополнительная облицовка стен квартиры.
В этом случае дополнительная ЗИ может составить 15-20 дБ, в зависимости от выбранной схемы звукоизоляции и способа крепления каркасных конструкций.
Image
Виброфикс звукоизоляция потолка.JPG
Виброфикс звукоизоляция потолка.JPG (106.41 KiB) Viewed 57795 times
...ничто не слишком...(с) Кармадон, "Альтист Данилов"
http://www.akustik.ua - акустическое проектное бюро
http://www.acoustic.ua - звукоизоляционные материалы
............................................
User avatar
Андрей Смирнов
Soundmoderator
 
Posts: 8791
Joined: 29 Aug 2006, 12:24
Location: Украина, Киев

Re: Улучшение зукоизоляции гипсовых стен

Postby vladvoron » 09 Feb 2011, 09:20

Добрый день!
Спасибо за ответы на мои вопросы.
Хотелось бы немного уточнить.
1. По поводу засыпки песком.
Более тщательно перемерили промежуток между гипсовыми перегородками - оказалось в среднем 4см. Вес песка около 1000-1200кг. Не хотелось бы нагружать перекрытие.
Вопрос: Если не засыпать строительным песком - надо ли засыпать чем-то более лёгким ( перлитовый песок, керамзитовый песок, вермикулит). Чем лучше из этих материалов? Или эффект будет минимальный и проще оставить воздушную прослойку?
2. По поводу сноса стены.
Изначально прочитав Ваши статьи по звуко и шумоизоляции я понимал, что идеальным будет снос моей перегородки и установка каркаса с шумопоглощающей ватой и обшивка ГКЛ,Но по некоторым причинам стены демонтировать не будем. Монтировать каркас на мою стену тоже не получается - комната узковатая и остаётся небольшой проход между кроватью и противоположной стеной. Поэтому стену будем штукатурить.
Вопрос: Хотелось бы знать - штукатурить лучше специальной звукоизоляционной штукатуркой или приклеить 2-3 слоя ГКЛ ( или лучше ГВЛ - он с волокнами и плотней ). Или разница будет настолько мизерная, что можно просто штукатурить обычным изогипсом?
3, По поводу мембраны Тексаунд.
Насколько я понимаю мембраны дают результат только в составе каркасных конструкций вместо ваты или как дополнение к ней. Смотрел их рекламные ролики, но рекламе немного не доверяю.
Вопрос: Хотелось бы знать мнение специалиста - где ещё имеет смысл применять звукоизоляционные мембраны в случаях, когда надо изолировать свой шум и наоборот, когда необходимо звукоизолироваться от шума соседей.
4. По звукоизоляции потолка практически всё ясно.
Вопрос: Есть ли в Одессе филиал вашей фирмы или грамотные специалисты, которые смогли бы качественно смонтировать такую конструкцию? Может кого-то порекомендуете? Я не смог найти в нашем городе специалистов по звукоизоляции, поэтому и обратился на форум за советом.
Ещё раз заранее спасибо.
vladvoron
 
Posts: 2
Joined: 06 Feb 2011, 10:21

Re: Улучшение зукоизоляции гипсовых стен

Postby Андрей Смирнов » 09 Feb 2011, 11:33

Добрый день!
Если несущая способность перекрытия не позволяет, то выполнять тяжелую засыпку нельзя. Засыпка легкими материалами положительного эффекта не даст.
Если одну из перегородок демонтировать нельзя, то ресурса для увеличения ЗИ практически не остается.
Единственное решение это увеличить массу и жесткость внутренней перегородки насколько возможно с помощью штукатурного слоя с максимальной объемной плотностью. Никакой специальной звукоизоляционной штукатурки в природе не существует. Есть несколько видов звукопоглощающих легких штукатурок (например перлитовая), которые к нашему случаю отношения не имеют.
Мембраны Тексаунд никаким образом не могут применяться вместо минеральной ваты.
Мембраны используются только в качестве тонкого утяжеляющего материала каркасной облицовки и увеличения внутренних потерь в облицовке ГКЛ. Если позволяет бюджет, то можно применять мембраны в дополнение к ГКЛ :)
...ничто не слишком...(с) Кармадон, "Альтист Данилов"
http://www.akustik.ua - акустическое проектное бюро
http://www.acoustic.ua - звукоизоляционные материалы
............................................
User avatar
Андрей Смирнов
Soundmoderator
 
Posts: 8791
Joined: 29 Aug 2006, 12:24
Location: Украина, Киев

Re: Улучшение зукоизоляции гипсовых стен

Postby Hamillion » 02 Mar 2011, 00:17

Та же проблема - стена с прослойкой воздуха.
А если найти способ залить эту прослойку смесью типа Пескобетона? + система дополнительной звукоизоляции стены. Которую предлагают поставщики мембран Тексаунд?

ОПИСАНИЕ системы премиум – 68 мм:

Image

Вначале, необходимо механически закрепить при помощи пластиковых грибков на стене или приклеить при помощи монтажного клея слой тонкого отечественного звукопоглощающего материала из полиэфирного акустического войлока плотностью 900г/кв. м. и толщиной 10 мм. Затем, необходимо на него сверху прикрепить механически, при помощи пластиковых грибков (5 шт. на 1 кв. м.), материал Тексаунд 70. После этого, к потолку и полу монтируется направляющий профиль. В направляющий профиль вставляется профиль 60х27, который монтируется вертикально с интервалами через 600 мм., а при высоте стены более 3 м. через 400 мм. Полости между профилем заполняются звукопоглощающим материалами из минплиты, эковаты, или стекловолокна: Роквул, Парок, Изовер, КНАУФ и подобных, плотностью 40-60 кг/куб. м. Если нет желания применять минплиту, то для заполнения межпрофильного пространства можно применить сложенный в 2-3 раза акустический войлок из полиэфира. На все лицевые поверхности профиля, «смотрящие» в сторону помещения, потолка, пола и соседних стен, перед монтажом приклеиваются полосы, вырезанные из мембраны Тексаунд 70. После этого, на профиль крепится лист ГКЛ или ГВЛ. Завершает систему монтаж листов гипсокартона с предварительно наклеенным на него вторым слоем материала Тексаунд 70.

Очень хочется узнать Ваше мнение, Андрей, на этот счет????
Hamillion
 
Posts: 1
Joined: 01 Mar 2011, 22:40

Re: Улучшение зукоизоляции гипсовых стен

Postby Андрей Смирнов » 02 Mar 2011, 12:29

Привет, Hamillion

1. картинка не открывается
2. эта тема уже множество раз обсуждалась на этом форуме, не хотелось бы к ней возвращаться. Пройдись пожалуйста поиском.
Одна из тем по поводу подобных мембран доступна по ссылке http://soundmoderator.org/viewtopic.php?f=1&t=835&start=0&hilit=tecsound

Необходимо помнить, что звукоизоляция это не свойство материала, а свойство конструкции!!!
В описанной конструкции главную роль в звукоизолирующем эффекте играет не материал Тексаунд, а сама конструкция. В данном случае конструкция имеет состав: "стена / воздушный промежуток с минеральной ватой / облицовка из ГКЛ или ГВЛ". Эта конструкция представляет собой гибкую облицовку на относе от массивной стены. У этой системы есть собственная резонансная частота и чем она ниже, тем выше звукоизоляция конструкции. А частоту можно понизить увеличивая массу облицовки и величину воздушного промежутка. Это видно из приведенной на рисунке формулы.

Формула частоты облицовки.JPG
Формула частоты облицовки.JPG (24.1 KiB) Viewed 63843 times

Применение мембран типа тексаунд увеличивает массу облицовки (как впрочем и дополнительный слой ГКЛ) и внутренние потери. Использование мембраны в ГКЛ облицовке может увеличить индекс ЗИ на 2-3 дБ, что не очень существенно для общей звукоизоляции конструкции.
Несопоставимо больший эффект дает увеличение воздушного промежутка (глубины каркаса) между стеной и облицовкой ГКЛ.
Удвоение воздушного промежутка приводит к увеличению звукоизоляции на НЧ примерно на 5-6 дБ без увеличения стоимости конструкции!!!
Примерно к такому же увеличению звукоизоляции приводить удвоение количества слоев гипсокартона. Кроме того, звукоизоляцию существенно увеличивает применение акустической минеральной ваты.

Вопрос: что лучше, добавить мембрану за 20 евро/кв.м и получить дополнительную звукоизоляцию в пару дБ или бесплатно увеличить относ облицовки от стены (конечно немного потеряв в пространстве) и получить реальную дополнительную звукоизоляцию в 5-6 дБ? :)

Таким образом, зная законы строительной акустики можно реально экономить деньги, добиваясь реального звукоизоляционного эффекта :)

Советую ознакомиться с рекомендациями по сабжу http://soundmoderator.org/viewtopic.php?f=24&t=1090
...ничто не слишком...(с) Кармадон, "Альтист Данилов"
http://www.akustik.ua - акустическое проектное бюро
http://www.acoustic.ua - звукоизоляционные материалы
............................................
User avatar
Андрей Смирнов
Soundmoderator
 
Posts: 8791
Joined: 29 Aug 2006, 12:24
Location: Украина, Киев

Re: Улучшение зукоизоляции гипсовых стен

Postby bezlogina » 26 Mar 2011, 20:35

Андрей добрый день!

столкнулся с той же пробеммой - гипсовая стена с соседом через прослойку воздуха.

подскажите пожалуйста оптимальный материал для возведения новой перегордки вместо существующей? я так понимаю она должна быть в одной весовой категории с существующей ?
новая перегородка должна быть как можно ближе к соседской или надо делать так, что бы они были одним целым?
моя перегородка была "завалена" в верхней ее части см на 2, поэтому есть предположение что и у соседа она не совсем ровная... если не получится плотно поставить к соседской стене - чем заполнить зазор?
... и если не сложно, в двух словах, чем так плох существующий воздушный зазор между моей и соседской стеной? запутался немного- ваши конструкции из ваты+ГКЛ+ГВЛ рекомендуется относить как можно дальше от стены - чем дальше, тем эффективней... у меня вроде похожая конструкция только без ваты.. в чем принципиальное различие? понимаю что есть, а суть не уловил :roll:
bezlogina
 
Posts: 24
Joined: 25 Feb 2011, 20:16
Location: москва

Re: Улучшение зукоизоляции гипсовых стен

Postby Андрей Смирнов » 26 Mar 2011, 21:43

bezlogina,
вот здесь ответы на все твои вопросы http://soundmoderator.org/viewtopic.php?f=1&t=1114
...ничто не слишком...(с) Кармадон, "Альтист Данилов"
http://www.akustik.ua - акустическое проектное бюро
http://www.acoustic.ua - звукоизоляционные материалы
............................................
User avatar
Андрей Смирнов
Soundmoderator
 
Posts: 8791
Joined: 29 Aug 2006, 12:24
Location: Украина, Киев

Re: Улучшение зукоизоляции гипсовых стен

Postby bezlogina » 27 Mar 2011, 09:20

" Двойные стены предпочтительнее однослойных конструкций. Это касается и ограждений из массивных материалов и каркасных конструкций. -"????????? у меня как раз двойная стена...
"Но если позволяет несущая способность перекрытия, гораздо эффективнее возвести массивную стену из полнотелого красного кирпича. Очень эффективной конструкцией для изоляции мощного музыкального сигнала является стена из пустотелых бетонных (шлакобетонных) блоков с предварительной засыпкой пустот прокаленным сухим песком." - наверно не позволяет несущая способность перекрытия, т.как изначально стоит гипсовая...
"моя перегородка была "завалена" в верхней ее части см на 2, поэтому есть предположение что и у соседа она не совсем ровная... если не получится плотно поставить к соседской стене - чем заполнить зазор?" - не нашел ответа на этот вопрос
bezlogina
 
Posts: 24
Joined: 25 Feb 2011, 20:16
Location: москва

Re: Улучшение зукоизоляции гипсовых стен

Postby Андрей Смирнов » 27 Mar 2011, 12:55

Выражение "Двойные стены предпочтительнее однослойных конструкций" совершенно справедливо и касается случая, когда однослойная и двойная перегородки имеют одинаковую массу.
Например, звукоизоляция двухслойной гипсовой перегородки "80 мм - воздушный промежуток - 80 мм" будет выше, чем у однослойной гипсовой перегородки толщиной 160 мм. Это же касается перегородок из других материалов (бетона, кирпича, пенобетона и т.п.)
Но это не означает, что звукоизоляция двухслойной гипсовой перегородки "80 мм - воздушный промежуток - 80 мм" будет выше, чем у однослойной перегородки из тяжелого бетона толщиной 160 мм. Здесь уже звукоизоляцию будет определять значительно большая масса ограждения.

Зазор между легкими двойными стенами можно заполнить массивным сыпучим материалом: керамзитовым песком, гравием и т.п. Но при этом надо следить за допустимой нагрузкой на перекрытие.

И еще один аспект низкой ЗИ тонких двойных стен или облицовок стен на основе гипсовых блоков 80 мм, пенобетона 100 мм или кирпича на ребро.
Во всех указанных конструкциях наблюдается высокая косвенная передача шума, т.к. такие относительно тонкие массивные ограждения обладают высоким коэффициентом излучения звука. Именно поэтому решением может быть ГКЛ облицовка на относе, т.к. она имеет экстремально низкий коэффициент излучения звука по сравнению с гипсом, пенобетоном и кирпичом.
Важно: применять в каркасах акустическую вату Acousticwool Sonet, использовать звукоизоляционный гипсокартон Кнауф Титан, специальные направляющие ЗИ профили Vibrofix Liner и устраивать каркас максимально допустимой глубины.

Косвенный путь передачи шума.JPG
Косвенный путь передачи шума.JPG (123.5 KiB) Viewed 28401 times
...ничто не слишком...(с) Кармадон, "Альтист Данилов"
http://www.akustik.ua - акустическое проектное бюро
http://www.acoustic.ua - звукоизоляционные материалы
............................................
User avatar
Андрей Смирнов
Soundmoderator
 
Posts: 8791
Joined: 29 Aug 2006, 12:24
Location: Украина, Киев

Re: Улучшение зукоизоляции гипсовых стен

Postby bezlogina » 27 Mar 2011, 18:21

здесь я все понял, что 160 мм бетона лучше двухслойной гипсовой перегородки "80 мм - воздушный промежуток - 80 мм".... так же мы считаем, что строители не зря возвели гипсовую перегородку, так как учитывали нагрузку на плиту, из чего следует, что поставить вместо существующей 160 мм бетона нельзя.
чуть выше в этой теме Вы даете рекомендации по такой же ситуации :
Андрей Смирнов wrote:Наиболее эффективным решением с точки зрения строительной акустики будет следующее:1. демонтировать гипсовую перегородку с вашей стороны (рис 1)2. смонтировать её заново вплотную к соседской без воздушного зазора!!! (рис 2)3. смонтировать каркасную гипсокартонную облицовку (ГКЛ х 3 слоя) на максимально возможном относе от стены на независимом каркасе или с закреплением к стене с помощью эластичных креплений Vibrofix CD.

вот тут я совсем запутался... зачем в приведенном примере Вы предлагаете убрать воздушный зазор? что то я упускаю, а что не могу понять :(
bezlogina
 
Posts: 24
Joined: 25 Feb 2011, 20:16
Location: москва

Re: Улучшение зукоизоляции гипсовых стен

Postby Андрей Смирнов » 27 Mar 2011, 18:48

Я не предлагаю убрать воздушный зазор. Я предлагаю вместо двух относительно массивных перегородок с зазором поставить одну массивную перегородку (удвоенной толщины) и одну гибкую облицовку на относе (ГКЛ).
При этом я советую выполнить максимально возможный воздушный зазор (относ от стены) с заполнением его акустической минеральной ватой.
Этот подход наиболее приемлем с точки зрения строительной акустики.
...ничто не слишком...(с) Кармадон, "Альтист Данилов"
http://www.akustik.ua - акустическое проектное бюро
http://www.acoustic.ua - звукоизоляционные материалы
............................................
User avatar
Андрей Смирнов
Soundmoderator
 
Posts: 8791
Joined: 29 Aug 2006, 12:24
Location: Украина, Киев

Re: Улучшение зукоизоляции гипсовых стен

Postby bezlogina » 10 Apr 2011, 20:21

Андрей, снес свою часть стены, сейчас занимаюсь востановлением соседской - заполняю щели раствором, герметиком... перестарался сегодня немного - часть раствора у соседа в квартире оказалось :) скоро планирую возводить свою часть стены. как вы рекомендовали, вплотную к соседской... планирую вместо совей гипсовой - сделать из кирпича... посчитал, получилось, что кирпич можно ставить только на ребро... или есть другие варианты? и вот не совсем понятно, как делать примыкание возводимой кирпичной стены по бокам и к потолку? надо оставлять зазоры а потом их заполнять герметиком? или просто делаем кирпичную кладку с примыканием к стенам и потолку через раствор? посоветуйте пожалуйста....
bezlogina
 
Posts: 24
Joined: 25 Feb 2011, 20:16
Location: москва

Re: Улучшение зукоизоляции гипсовых стен

Postby Андрей Смирнов » 11 Apr 2011, 11:05

"Кирпич на ребро" конечно не очень гуд (слишком тонко), но по сравнению с гипсом будет лучше. Кирпич необхобимо оштукатурить. Примыкать к стенам и потолку без зазоров.
...ничто не слишком...(с) Кармадон, "Альтист Данилов"
http://www.akustik.ua - акустическое проектное бюро
http://www.acoustic.ua - звукоизоляционные материалы
............................................
User avatar
Андрей Смирнов
Soundmoderator
 
Posts: 8791
Joined: 29 Aug 2006, 12:24
Location: Украина, Киев

Re: Улучшение зукоизоляции гипсовых стен

Postby bezlogina » 11 Apr 2011, 18:54

Андрей, я вот почему беспокоюсь за примыкания... не даст со временем стена усадку? не появятся трещины по периметру? может заблаговременно как то обезопасить себя от появления данных трещин от усадки?
bezlogina
 
Posts: 24
Joined: 25 Feb 2011, 20:16
Location: москва

Re: Улучшение зукоизоляции гипсовых стен

Postby Андрей Смирнов » 11 Apr 2011, 20:22

Это вопросы конструкционной устойчивости и решают их строители на основании требований соответствующих СНиПов.
...ничто не слишком...(с) Кармадон, "Альтист Данилов"
http://www.akustik.ua - акустическое проектное бюро
http://www.acoustic.ua - звукоизоляционные материалы
............................................
User avatar
Андрей Смирнов
Soundmoderator
 
Posts: 8791
Joined: 29 Aug 2006, 12:24
Location: Украина, Киев

Re: Улучшение зукоизоляции гипсовых стен

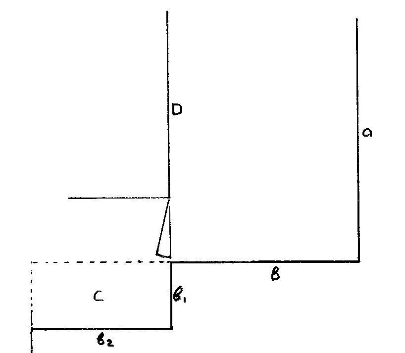
Postby bezlogina » 22 Oct 2011, 08:52

Андрей, извините, но без Ваших советов никак....

помогите пожалуйста найти компромиссы. квартира очень маленькая. поэтому каждый сантиметр на счету.

1.соседская стена "b" и "b1" сделана, как описано выше - четверть кирпича, засыпан песок, отштукатурина. бытовой шум остался. на данный моент стоит вопрос облицовки. ясно, что в идеале сделать стнену на Vibrofix CD, но это 10 см. если скажете, что да, в моей ситуации никакие другие варианты не подойдут, то так и будем делать( слышна речь, музыка телевизор и т.д.) если есть варианты потоньше, будте добры, порекомендуйте пожалуйста ( стена на относе из п-образного профиля порядка 7-8 см, так же стена на относе из потолочного профиля- порядка 5-6 см) - ход мысли правильный?? ).
2. стена "b2" так же с соседом, но она минимум полкирпича, может и больше, так как в этом районе проходит балка для потолочных плит. что делать с
"b1"и "b2" если это уже часть коридора и там будет шкаф купе ( на схеме "С") ? нужно дополнительные облицовки "b1"и "b2"?
3. стена "b2" стена кирпичная, толщиной см 50-60, за ней улица ( дом кирпичный). основная задача ее утеплить, однако приложив к ней ухо так же слышны соседский бытовой шум - не сильно, но слышно. нужна облицовка - какой будет достаточно?
4. стена "D" - межкомнатная. вот здесь запутался совсем. в иделае двухслойная перегородка на двух независимых п-образных профелях, но это 14 см. -многовато. сделать на одном п-образном профиле и обшить с двух сторон по два листа ГКЛ, добавив конечно туда мин.вату? сделать двухслойную перегородку на двух независмых каркасах из потолочного профиля? - такой схемы вообще нет - хотя получится также примерно 10 см... может стоит поставить обычную стену из шлакоблоков с засыпкой песком - такой варинат вроде есть в рекомендациях, однако не понятно на сколько он хуже/лучше гипсокартонной конструкции? посмотрел шлакоблоки в иненте - вот нашел типы шлакоблоков http://www.rosser.ru/down/r-11.html . получается несколько вариантов, если учитывать массу существующей перегородки, : 1. керамзитный блок - его можно засыпать песком, керамзитобетонный блок - можно засыпать керамзитом мелкой фракции 3. бетонный - ничем не засыпать. каких то особых задач к межкомнатным перегородкам не предъявляется - ДК нет и не будет,хотелось бы не слышать телевизор насколько это возможно - хотя помимо стены будут наверно и другие лазейки для звука - двери например... еще не понятно как развязывать такую стену от структурных шумов от пола/стены/потолка...
5. я так и не понял(уж извините) как крепить направляющий профиль к стенам/потолку/полу без Vibrofix Liner. в акустик ру задавал вопрос - ответ один - никак, вас спасет ЗИПС :) . понятно , что подкладываем Вибростек М, но что делать с саморезами? насколько сильно они являются акустическим мостиками? насколько сильно они "убивают" конструкцию? с полом вроде попроще - делаем плавающий(Vibrofix Floor вчера пришел из Питера) к нему вроде можно. остаются несущие стены и потолок... уфф...
p.s. извините что так много букв...
Attachments
Scan0005.jpg
Scan0005.jpg (24.71 KiB) Viewed 62528 times
bezlogina
 
Posts: 24
Joined: 25 Feb 2011, 20:16
Location: москва

Re: Улучшение зукоизоляции гипсовых стен

Postby bezlogina » 25 Oct 2011, 20:03

вот что нашел : http://www.knaufinsulation.ru/files/ki_ ... uments/%20перегородка.pdf - отсюда следует, что перегородка с112(с362) дает Rw 51 дб, если использовать ГКЛ и Rw 57 Дб, если ГВЛ , т.е. для моих целей вполне подходит???
... и если не сложно, пару слов про материалы кнауф - пишут, что экологически чистый и все такое, вот только не нашел его плотность... и обратил еще на http://www.knaufinsulation.ru/ru/produc ... plita-3d-0 - позицианируют как "для тепло- и звукоизоляции" - что за зверь, совсем не понятно. могут эти материалы быть альтернативой акустик батс?
bezlogina
 
Posts: 24
Joined: 25 Feb 2011, 20:16
Location: москва

Re: Улучшение зукоизоляции гипсовых стен

Postby Андрей Смирнов » 26 Oct 2011, 11:11

Во вложении выдержка из Детального листа Кнауф "Звукоизоляционные системы".
В качестве облицовки стен можно использовать или Vibrofix Protector или Vibrofix CD.
Минимальная глубина каркаса "h" составляет 50 мм плюс двойная облицовка ГКЛ. Уменьшение глубины каркаса существенно снижает звукоизоляцию.
Облицовку рекомендуется смонтировать на всех межквартирных стенах.

Перегородку между комнатами можно выполнить на одинарном каркасе шириной 100 мм, а можно на двух независимых каркасах шириной по 50 мм, разделенных упругой лентой из пенополиэтилена толщиной 5 мм. При практически одинаковой толщине (150-155 мм) двойная перегородка существенно лучше звукоизолирует по сравнению с одинарной.
Необходимо учитывать, что косвенная передача звука через дверные проемы может значительно снизить общий уровень звукоизоляции между комнатами.
Дверные полотна в рамах необходимо уплотнить с помощью пустотелых резиновых уплотнителей с D-образным сечением. Желательно устройство порогов. Звукоизоляция дверей с порогом и без порога может отличаться на 10-15 дБ.
Attachments
Акустиквул перегородки.JPG
Акустиквул перегородки.JPG (99.81 KiB) Viewed 62507 times
Виброфикс облицовки.JPG
Виброфикс облицовки.JPG (159.63 KiB) Viewed 62507 times
...ничто не слишком...(с) Кармадон, "Альтист Данилов"
http://www.akustik.ua - акустическое проектное бюро
http://www.acoustic.ua - звукоизоляционные материалы
............................................
User avatar
Андрей Смирнов
Soundmoderator
 
Posts: 8791
Joined: 29 Aug 2006, 12:24
Location: Украина, Киев

Re: Улучшение зукоизоляции гипсовых стен

Postby andgarm » 17 Dec 2013, 17:42

Андрей, здравствуйте. Хочу получить Ваш совет. Как и многие сдесь форумчане, столкнулся сами знаете с чем- разговорная речь, телевизор , музыка соседей :) Все так же впринципе как и у vladvoron. Хочу звукоизолировать 2 спальни в хрущевке..Между соседями 2 гипсовых плиты 80мм с небольшим зазором. Высота комнат 2.5 м. Габариты одной 2.2м*5.6м, второй 2.5м*4.4м. Пол деревянный ( доска 35 мм на лагах 60*120 мм). На приложенном плане красным навел планируемую звукоизоляцию. Т.к. комнаты узкие(особенно первая) борьба за миллиметры в ущерб звукоизоляции:) Поправте меня где я ошибаюсь. Планирую действовать по схеме фальшстены с отступом. Формула такая - 1см отступ от стены соседа + 50профиль с минватой AcousticWool® Sonet + 1 слой ГКЛ. Направляющий профиль Vibrofix Liner 50 на пол и потолок, под них Vibrosil Norma 5мм и между деревянным полом и соседской стеной в зазор тоже проложить Vibrosil Norma. Итого 75мм где-то зашивки получается.
Вопросы:
1.Нужно ли крепиться к соседской стене крепежом Vibrofix CD чтобы перегородка не гуляла и не прогибалась, или направляющего профиля хватит?
2.Как крепить фальшстену по бокам к внешней и внутренней кирпичной стене?
3.Понимаю что чем тоньше тем меньше эффект, интересует реализуемость и прочность конструкции- Можно ли использовать профиль 28мм как стоечный вместо 50-го и Vibrofix Liner 28 дабы уменьшить толщину конструкции? Насколько он устойчив и прочен, можно ли будет смять минвату 50 мм и засунуть в эти 28 мм?
4. Как происходит крепление Vibrofix Liner к полу и потолку, тоже через спец. крепления или просто саморезами?
5. Стену приходиться ставить на вышеописанный деревянный пол-это нормально, выдержит?

Заранее благодарен за ответ.
Attachments
add7_2.jpg
add7_2.jpg (67.62 KiB) Viewed 57607 times
Снимок.JPG
Снимок.JPG (50.97 KiB) Viewed 57607 times
andgarm
 
Posts: 4
Joined: 17 Dec 2013, 16:58

Next

Return to Звукоізоляція

Who is online

Users browsing this forum: No registered users and 1 guest

cron