Vibrofix

Звукоизоляция стен, пола и потолка (чертежи и схемы)

Обговорення проблем захисту від шуму, звукоізоляції приміщень, віброізоляції обладнання.
Проєктування, матеріали, вимірювання

Re: Звукоизоляция стен, пола и потолка (чертежи и схемы)

Postby KSashan » 25 Mar 2020, 19:52

Спасибо.
А как изменится звукоизоляция межквартирной стены при засыпке песком?

Попытался посчитать, площадь стены 9.5 м2, примерная масса в полкирпича получается 2 тонны, плюс штукатурка - ещё 400 кг. Со стороны соседа ещё столько же. А засыпка песком в щель 5 см прибавит в районе 500 кг. Т.е. в данном случае засыпка бесполезна и звукоизоляцию ощутимо улучшит только каркас на относе?
KSashan
 
Posts: 8
Joined: 02 Feb 2020, 09:41
Location: Муром

Re: Звукоизоляция стен, пола и потолка (чертежи и схемы)

Postby Андрей Смирнов » 25 Mar 2020, 23:51

Засыпка песком существенно увеличит ЗИ двойной межквартирной стены.
...ничто не слишком...(с) Кармадон, "Альтист Данилов"
http://www.akustik.ua - акустическое проектное бюро
http://www.acoustic.ua - звукоизоляционные материалы
............................................
User avatar
Андрей Смирнов
Soundmoderator
 
Posts: 8791
Joined: 29 Aug 2006, 12:24
Location: Украина, Киев

Re: Звукоизоляция стен, пола и потолка (чертежи и схемы)

Postby alex087 » 26 Mar 2020, 15:38

Всем доброго дня. Андрей подскажите, планирую делать каркасную облицовку 2гвл+1кгл, выше писал об этом. Возник вопрос, по каркасной облицовке, надо ли делать из в карказе поперечены из профиля? Или достаточно только вертикальных профилей. Спасибо
alex087
 
Posts: 10
Joined: 13 Aug 2018, 05:58
Location: Дальний Восток, Амурская область

Re: Звукоизоляция стен, пола и потолка (чертежи и схемы)

Postby Андрей Смирнов » 26 Mar 2020, 16:04

2 alex087

Достаточно только вертикальных стоечных профилей.
...ничто не слишком...(с) Кармадон, "Альтист Данилов"
http://www.akustik.ua - акустическое проектное бюро
http://www.acoustic.ua - звукоизоляционные материалы
............................................
User avatar
Андрей Смирнов
Soundmoderator
 
Posts: 8791
Joined: 29 Aug 2006, 12:24
Location: Украина, Киев

Re: Звукоизоляция стен, пола и потолка (чертежи и схемы)

Postby tapka » 23 Apr 2020, 11:17

Андрей Смирнов wrote:Засыпка песком существенно увеличит ЗИ двойной межквартирной стены.

Добрый день, приобрёл квартиру в монолитном доме, перегородки между квартирами частично из силикатного кирпича на ребро, 250мм общая толщина, в середине пустота(~74мм).
Вопросы в слеюдущем:
1. Имеет ли силикатный кирпич и красный разницу в свойствах поприминительно к звукоизоляции и поглащению звука?
2. Перегородку предпочтительно при частичной разборке заполнить (пустоту) минеральной ватой или засыпать песком?
3. Имеет ли смысл пересобрать "свою" сторону перегородки в полкирпича вместо на ребро, или же положить к ней вплотную ещё одну на ребро(из какого кирпича красный/силикатный)?
3.1 Если выкладывать ещё одну вплотную(на ребро/полкирпича), чем её развязать от основания и стен, при этом закрепить от падения (к стенам и потолку)?

Большое спасибо за ответы! =)
tapka
 
Posts: 8
Joined: 29 Aug 2015, 10:58
Location: Россия г. Саратов

Re: Звукоизоляция стен, пола и потолка (чертежи и схемы)

Postby Андрей Смирнов » 23 Apr 2020, 13:06

tapka wrote:Добрый день, приобрёл квартиру в монолитном доме, перегородки между квартирами частично из силикатного кирпича на ребро, 250мм общая толщина, в середине пустота(~74мм).
Вопросы в слеюдущем:
1. Имеет ли силикатный кирпич и красный разницу в свойствах поприминительно к звукоизоляции и поглащению звука?
2. Перегородку предпочтительно при частичной разборке заполнить (пустоту) минеральной ватой или засыпать песком?
3. Имеет ли смысл пересобрать "свою" сторону перегородки в полкирпича вместо на ребро, или же положить к ней вплотную ещё одну на ребро(из какого кирпича красный/силикатный)?
3.1 Если выкладывать ещё одну вплотную(на ребро/полкирпича), чем её развязать от основания и стен, при этом закрепить от падения (к стенам и потолку)?
Большое спасибо за ответы! =)

Все ответы есть в старой теме по ссылке viewtopic.php?f=1&t=1358
Тема касается ЗИ тонких двойных перегородок из гипсовых блоков, пенобетона, кирпича на ребро и т.п.
...ничто не слишком...(с) Кармадон, "Альтист Данилов"
http://www.akustik.ua - акустическое проектное бюро
http://www.acoustic.ua - звукоизоляционные материалы
............................................
User avatar
Андрей Смирнов
Soundmoderator
 
Posts: 8791
Joined: 29 Aug 2006, 12:24
Location: Украина, Киев

Re: Звукоизоляция стен, пола и потолка (чертежи и схемы)

Postby tapka » 26 Apr 2020, 12:02

Спасибо Вам большое!
tapka
 
Posts: 8
Joined: 29 Aug 2015, 10:58
Location: Россия г. Саратов

Re: Звукоизоляция стен, пола и потолка (чертежи и схемы)

Postby BigFatCat » 26 Apr 2020, 23:20

А можно ли в конструкции D112 не использовать различные сочетания гвл+гкл, а просто в 3 слоя прикрутить кнауф сапфир?
На 18 кв выходит 755 кг на 40 подвесов Vibrofix SPU (с шагом 55см) что 18,8 кг на подвес. Можно ли уменьшить шаг? Или стоит всегда делать 60см, а крайние подвесы крепить ближе друг к другу?
И сильно ли я потеряю в звукоизоляции если сделаю глубину каркаса не 250, а скажем 150-180?
BigFatCat
 
Posts: 23
Joined: 14 May 2019, 22:48
Location: Москва

Re: Звукоизоляция стен, пола и потолка (чертежи и схемы)

Postby Андрей Смирнов » 26 Apr 2020, 23:37

BigFatCat wrote:А можно ли в конструкции D112 не использовать различные сочетания гвл+гкл, а просто в 3 слоя прикрутить кнауф сапфир?
На 18 кв выходит 755 кг на 40 подвесов Vibrofix SPU (с шагом 55см) что 18,8 кг на подвес. Можно ли уменьшить шаг? Или стоит всегда делать 60см, а крайние подвесы крепить ближе друг к другу?
И сильно ли я потеряю в звукоизоляции если сделаю глубину каркаса не 250, а скажем 150-180?

Комбинировать гвл+гкл совершенно необязательно, обшивка в 3 слоя сапфира будет более чем достаточной.
Шаг подвесов выбирается согласно технологии Кнауф, исходя из нагрузки (кг/м2).
Звукоизоляция любой гипсокартонной облицовки стены или потолка напрямую зависит от глубины каркаса.
При каждом удвоении глубины каркаса ЗИ увеличивается примерно на 5-6 дБ.
...ничто не слишком...(с) Кармадон, "Альтист Данилов"
http://www.akustik.ua - акустическое проектное бюро
http://www.acoustic.ua - звукоизоляционные материалы
............................................
User avatar
Андрей Смирнов
Soundmoderator
 
Posts: 8791
Joined: 29 Aug 2006, 12:24
Location: Украина, Киев

Re: Звукоизоляция стен, пола и потолка (чертежи и схемы)

Postby AlekseiF » 27 May 2020, 09:15

Приветствую всех обитателей данного форума. Упущу все подробности взаимоотношений с соседями сверху. В общем квартира в многоэтажном доме. Информацию о доме нашел только такую : тип перекрытий – железобетонные, материал несущих стен – блочные. Сделал перепланировку и теперь спальня там, где должна была быть кухня по проекту. Слышимость – караул. Размеры комнаты 4,8м х 2,61м.
Мешают соседи с верху. Воздушный шум – спокойные разговоры можно понять интонацию, разговоры на повышенных тонах – можно понять слова, а вот топот и стуки очень напрягают. Например когда в квартире с верху ходит девушка, к слову совсем даже не габаритная, кажется, что там специально топает какой-то тяжелый мужик. Короче устали ругаться.
Одна из стен граничит с соседней квартирой. 7 лет соседняя квартира пустовала и вот выяснилось, что туда заселяются. Слышимость ужасная. Можно распознать слова соседей при спокойной беседе. Такое ощущение, что стена из картона.
Еще одна стена граничит с лифтовой площадкой. Так же слышны спокойные разговоры людей + шум от лифта. В этой стене есть выход под вытяжку.
Когда тихонько постукиваешь по этим двум стенам, звук очень звонкий и хорошо прередается с одной на другую. Так же по ним очень хорошо передаются голоса и ударные шумы от соседей сверху.
В общем решено делать шумо – звуко изоляцию этих 2х стен и потолка.
Потолок двухуровневый на виброподвесах, базальтовая вата + 3 слоя обшивки
Стены - каркас в распор, без крепления к стенам базальтовая вата + 3 слоя обшивки
Много читал информации, но остались некоторые вопросы.
1. Что делать в первую очередь потолок или стены? На сколько я понял, предпочтительней делать вначале потолок, а каркас стен подшивать к нему, но возникает вопрос. Со временем потолок немного опустится на виброподвесах ( 1-2мм) и тогда с одной стороны он будет упираться в каркас стены а с другой висеть на подвесах и тогда будет не равномерная нагрузка на виброподвесы + нагрузка на каркас стены. Не повлияет ли это на звуко – шумо изоляцию? Или например если соседи затопят, не будет возможности разобрать один потолок и придется разбирать и стены.
2. как я понял в основном все делают воздушное пространство между перекрытием и наполнителем – 1см, и этот не заполненный слои играет большую роль в общей конструкции. Есть ли смысл увеличить это пространство до 2-4см, даст ли это лучший результат всей конструкции? Или есть смысл оставить 1см но добавить дополнительный слой базальтовых плит, увеличив толщину всей конструкции на те же 3-4см?
3. и самое важное это облицовка. Буду вам безмерно благодарен за помощь в выборе оптимального варианта. Склоняюсь к использованию ГВЛ и ГКЛ т.к. в финансах немного ограничен. Можно добавить ГКЛ сапфир, если это поможет улучшить результат.
Не смог найти точного веса ГКЛ Knauf, считал из расчета : 9,5мм – 8кг/м2, 12,5мм – 10кг/м2.
Потолок – хотелось бы уложиться в примерно 33 – 34кг/м2. Тогда подойдут варианты:
ГКЛ 12,5-ГВЛ10-ГКЛ12,5
ГВЛ10-ГКЛ12,5-ГВЛ10
ГВЛ10 х 3 слоя
ГКЛ12,5 х 3 слоя
Или может какой-то другой вариант будет предпочтительнее?
Стены – тут в принципе по весу не особо ограничен, лишь бы к соседям не провалиться. На сколько я понял оптимально
ГВЛ12-ГКЛ9,5-КВЛ12
ГВЛ12 х 3слоя
илт другой вариант?
Заранее спасибо за внимание.
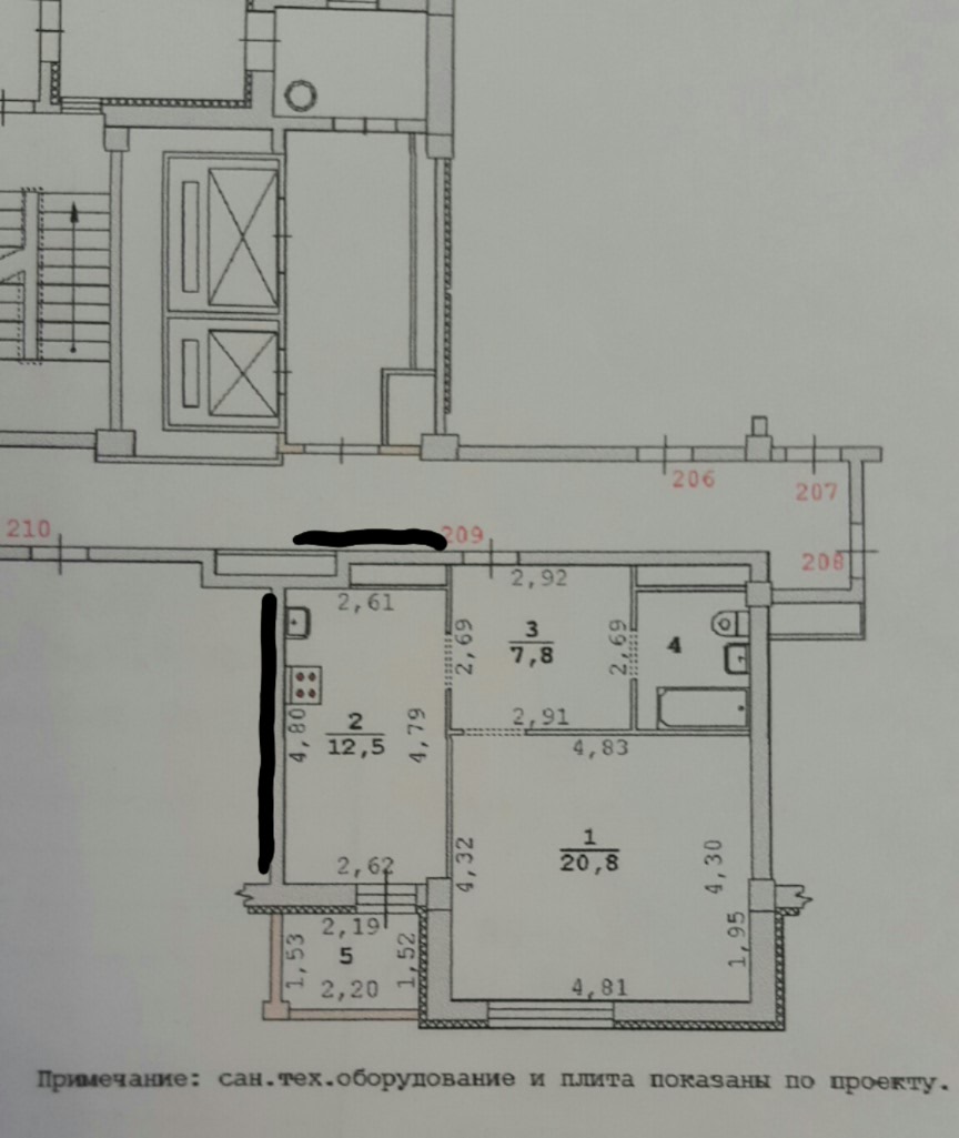
Attachments
2020-05-27 13.21.58.jpg
Отметил линиями стены, которые планирую облицевать
2020-05-27 13.21.58.jpg (96 KiB) Viewed 11934 times
AlekseiF
 
Posts: 1
Joined: 27 May 2020, 06:32

Re: Звукоизоляция стен, пола и потолка (чертежи и схемы)

Postby Андрей Смирнов » 27 May 2020, 16:33

В вашем случае лучше выполнить сначала потолок, затем облицовки стен.
При использовании правильных подвесов никакого заметного "проседания" потолка не будет.
Если соседи затопят, то даже с обычным ГКЛ потолком проблемы такие же, как и со звукоизоляционным.
Звукоизоляция ГКЛ/ГВЛ потолка/стены тем выше, чем больше глубина каркаса и масса облицовки.
Применяйте облицовку ГВЛ 10 в 3 слоя.
...ничто не слишком...(с) Кармадон, "Альтист Данилов"
http://www.akustik.ua - акустическое проектное бюро
http://www.acoustic.ua - звукоизоляционные материалы
............................................
User avatar
Андрей Смирнов
Soundmoderator
 
Posts: 8791
Joined: 29 Aug 2006, 12:24
Location: Украина, Киев

Re: Звукоизоляция стен, пола и потолка (чертежи и схемы)

Postby nxdorma » 28 May 2020, 18:40

Здравствуйте!

Делаю капительный ремонт квартиры (кирпичный дом 70ых гг., внешние и несущие стены силикатный кирпич, перегородки - красный). Хочу улучшить звукоизоляцию межквартирной перегородки.

В комнате (без отделки: высота 3 м, ширина 3,5 м, длина 5,5 м) будет спальня и домашний кинотеатр (фронтальные колонки направлены на перегородку, о которой идет речь), поэтому вопрос улучшения акустики помещения также волнует. Соседи тихие, особо не мешают, но вот мой домашний кинотеатр думаю им будет мешать.
Потолок будет гипсокартон с минватой на виброподвесах; пол на лагах с минватой на силомере (но вопрос не по ним).

Исходно была двойная межквартирная перегородка "кирпич на ребро - 10 см воздух - кирпич на ребро". Кирпич красный полнотелый. Перегородки связаны кирпичами. При данной перегородке иногда были слышны обычные спокойные телефонные разговоры из-за этой перегородки (почти до понимания слов, возможно сосед прикладывал голову к перегородке). Иных примеров привести не могу, в квартире не жил.

Свою часть перегородки демонтировал.


Собственно, вопросы:
1. Если я правильно понял, то наилучшим решением для звукоизоляции и вообще улучшения акустики помещения при таких тонких кирпичных перегородках (и отсутствии возможности возведения более тяжелых и массивных перегородок из-за небольшой несущей способности плиты перекрытия) будет - возведение впритык к существующей соседской перегородке "кирпич на ребро" второго ряда перегородки "кирпич на ребро" без воздушного пространства с заделкой всех существующих дыр и щелей и далее возведение звукоизолирующей конструкции с минватой (планирую до 13 см).
2. Получившуюся двойную перегородку "кирпич на ребро" без воздушной прослойки надо штукатурить c моей стороны для дополнительной заделки щелей и увеличения массы?
3. Какую предпочесть звукоизоляционную конструкцию - бескаркасную или каркасную?
4. Перегородка занимает не всю плоскость комнаты. 1,5 метра приходится на достаточно толстую кирпичную несущую стену (см. схему), за которой находится соседская лоджия. Зашивать её бы не хотелось (из-за потерь ширины комнаты). Если всё таки нужно, то можно ли её зашить какой-то тонкой конструкцией ?
звукоизоляция!.jpg
звукоизоляция!.jpg (63.11 KiB) Viewed 11907 times


Спасибо!
Attachments
перегородка.jpg
перегородка.jpg (132.23 KiB) Viewed 11907 times
nxdorma
 
Posts: 4
Joined: 26 May 2020, 20:02
Location: Россия, Тюмень

Re: Звукоизоляция стен, пола и потолка (чертежи и схемы)

Postby Андрей Смирнов » 28 May 2020, 19:00

Кирпич штукатурить обязательно.
Каркасная звукоизоляция предпочтительнее, она более эффективна, менее дорога и позволяет выровнять поверхность стены.
В вашем случае облицовывать участок несущей стены необязательно, т.к. кирпичная перегородка будет в любом случае более слабым местом по ЗИ.
...ничто не слишком...(с) Кармадон, "Альтист Данилов"
http://www.akustik.ua - акустическое проектное бюро
http://www.acoustic.ua - звукоизоляционные материалы
............................................
User avatar
Андрей Смирнов
Soundmoderator
 
Posts: 8791
Joined: 29 Aug 2006, 12:24
Location: Украина, Киев

Re: Звукоизоляция стен, пола и потолка (чертежи и схемы)

Postby denky » 20 Jun 2020, 16:00

Добрый день.

Просьба проконсультировать по звукоизоляции двух спальных комнат, звукоизоляцию всего периметра помещений не рассматриваю, т.к. сильно увеличится стоимость.
С учетом опыта жизни в квартире, где стены из пгп, хочется сразу сделать звукоизоляцию для комфортного сна.
Снизить воздействие воздушного и структурного шума (вибрации, гул, в том числе соседского спорт инвентаря - беговые дорожки, велосипеды и т. д.)

Собираюсь делать ремонт в таунхаусе три этажа, две спальни на втором этаже, первый этаж гостиная, третий этаж общее пространство без спальных комнат.
Крыша с соседями общая.
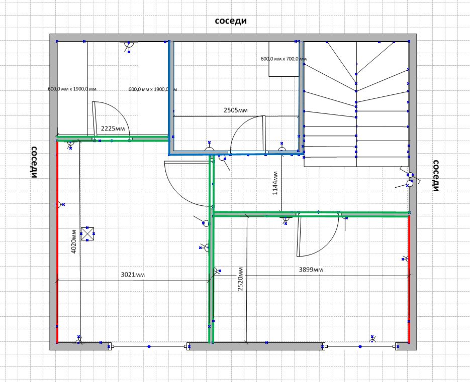
Соседей сверху и снизу нет, только с трех сторон, прикрепляю схему.
Стены с соседями из поротерма 380, фронтальная стена из поротерма 440 + клинкер.
Плиты перекрытия 160

работы которые думаю провести:

- на рисунке красным выделены общие стены с соседями, на которые хочу сделать каркасные перегородки, без предварительного оштукатуривания.
- зеленым выделены внутренние стены, которые предполагаю сделать каркасными, ширина профиля 50мм + 2 слой ГКЛ, или ГВЛ\ГКЛ
- синим выделены стены санузла, изначально думал сделать их газобетона, возможно их тоже стоит сделать каркасными с ЗИ, т.к. часть стены пересекается со спальней.
- остальные стены будут просто заштукатурены
- потолок буду смотреть по факту, если будут какие-то переизлучения.

какие у меня вопросы:
- поможет ли такая локальная звукоизоляция, т.к. лестница открыта и стены первого и третьего этажа без какой-либо ЗИ, в спальне есть еще гардеробная с дверью, нужно ли делать ЗИ в гардеробной?
- на пол 2 и 3 этажа достаточно будет 20мм плиты + стяжка 50мм?
- с учетом технологии кладки попротерма нужно ли сразу замазать герметиком вертикальные швы? т.к. блоки кладутся без раствора?
Спасибо!
Attachments
ЗИ спален.JPG
ЗИ спален.JPG (143.83 KiB) Viewed 11562 times
denky
 
Posts: 2
Joined: 20 Jun 2020, 09:13
Location: РФ, Московская область, г.Подольск

Re: Звукоизоляция стен, пола и потолка (чертежи и схемы)

Postby Андрей Смирнов » 22 Jun 2020, 09:59

denky wrote:какие у меня вопросы:
- поможет ли такая локальная звукоизоляция, т.к. лестница открыта и стены первого и третьего этажа без какой-либо ЗИ, в спальне есть еще гардеробная с дверью, нужно ли делать ЗИ в гардеробной?
- на пол 2 и 3 этажа достаточно будет 20мм плиты + стяжка 50мм?
- с учетом технологии кладки попротерма нужно ли сразу замазать герметиком вертикальные швы? т.к. блоки кладутся без раствора?
Спасибо!

Мероприятия по ЗИ вполне разумные.
Стяжку рекомендуется выполнять толщиной 70-80 мм, стяжка 50 мм это предельно допустимая минимальная толщина.
Стены из поротерма обязательно нужно штукатурить, т.к. сам материал достаточно легкий и "звонкий" и стены из него не обладают очень высокой ЗИ.
...ничто не слишком...(с) Кармадон, "Альтист Данилов"
http://www.akustik.ua - акустическое проектное бюро
http://www.acoustic.ua - звукоизоляционные материалы
............................................
User avatar
Андрей Смирнов
Soundmoderator
 
Posts: 8791
Joined: 29 Aug 2006, 12:24
Location: Украина, Киев

Re: Звукоизоляция стен, пола и потолка (чертежи и схемы)

Postby denky » 22 Jun 2020, 11:25

Андрей Смирнов wrote:Мероприятия по ЗИ вполне разумные.
Стяжку рекомендуется выполнять толщиной 70-80 мм, стяжка 50 мм это предельно допустимая минимальная толщина.
Стены из поротерма обязательно нужно штукатурить, т.к. сам материал достаточно легкий и "звонкий" и стены из него не обладают очень высокой ЗИ.


Андрей, спасибо.
Подскажите, стены санузла, что синим выделены на схеме, лучше также из каркаса сделать? у санузла общая часть стены с одной спальней.
denky
 
Posts: 2
Joined: 20 Jun 2020, 09:13
Location: РФ, Московская область, г.Подольск

Re: Звукоизоляция стен, пола и потолка (чертежи и схемы)

Postby Андрей Смирнов » 22 Jun 2020, 11:44

denky wrote:Подскажите, стены санузла, что синим выделены на схеме, лучше также из каркаса сделать? у санузла общая часть стены с одной спальней.

ГКЛ перегородка с двойной обшивкой будет по умолчанию обладать более высокой ЗИ по сравнению с перегородкой из пенобетона.
...ничто не слишком...(с) Кармадон, "Альтист Данилов"
http://www.akustik.ua - акустическое проектное бюро
http://www.acoustic.ua - звукоизоляционные материалы
............................................
User avatar
Андрей Смирнов
Soundmoderator
 
Posts: 8791
Joined: 29 Aug 2006, 12:24
Location: Украина, Киев

Re: Звукоизоляция стен, пола и потолка (чертежи и схемы)

Postby kif » 25 Jun 2020, 10:16

Здравствуйте.
Помогите, пожалуйста, выбрать вариант размещения подвесов на потолке комнаты:
Подвесы планируются vibrofix pu, комната 3,18*4,35 м, потолок - пустотелые плиты перекрытия, оба варианты приложены картинками.
На них синие круги - подвесы, зеленые линии - профили.
В первом варианте получается 32 подвеса (2,3 подвеса на 1кв.м., или 11 кг на подвес). Во втором варианте 36 подвесов (2,6 подвеса на 1 кв. м. или 9,8 кг на подвес).
Attachments
потолок2.jpg
потолок2.jpg (44.43 KiB) Viewed 11472 times
потолок1.jpg
потолок1.jpg (35.7 KiB) Viewed 11472 times
kif
 
Posts: 2
Joined: 24 Jun 2020, 20:49

Re: Звукоизоляция стен, пола и потолка (чертежи и схемы)

Postby Андрей Смирнов » 25 Jun 2020, 12:34

2 kif
распределение подвесов зависит от массы потолка (кг/м2).
См. стр 22 по ссылке http://www.acoustic.ua/st/Acoustic_ua_k ... utions.pdf
...ничто не слишком...(с) Кармадон, "Альтист Данилов"
http://www.akustik.ua - акустическое проектное бюро
http://www.acoustic.ua - звукоизоляционные материалы
............................................
User avatar
Андрей Смирнов
Soundmoderator
 
Posts: 8791
Joined: 29 Aug 2006, 12:24
Location: Украина, Киев

Re: Звукоизоляция стен, пола и потолка (чертежи и схемы)

Postby kif » 25 Jun 2020, 19:21

Общий вес потолка 354 кг, Это примерно 25.6 кг/м2. То есть теоретически оба варианта подходят под чертеж стр. 22. Вопрос по нагрузке на подвесы, его диапазон нагрузок 7-14 кг на подвес. Нет разницы какой вес будет приходиться на каждый подвес из этого диапазона или надо стараться смещать вес к верхней или нижней границе диапазона?
kif
 
Posts: 2
Joined: 24 Jun 2020, 20:49

PreviousNext

Return to Звукоізоляція

Who is online

Users browsing this forum: No registered users and 4 guests