Ответить на ваш вопрос можно только зная уровень звукоизоляции существующих ограждающих конструкций квартиры и уровень звука, который будет сопровождать ваши репетиции.
Однозначно можно утверждать только одно: не бывает 100% звукоизоляции, эффективность ЗИ мероприятий всегда ограничена.
Тем не менее, вы выбрали разумные решения для звукоизоляции.
...ничто не слишком...(с) Кармадон, "Альтист Данилов"
http://www.akustik.ua - акустическое проектное бюро
http://www.acoustic.ua - поставка звукоизоляционных материалов
............................................
Аватара пользователя
Андрей Смирнов
Soundmoderator
Сообщения: 5967
Зарегистрирован: 29 авг 2006, 15:24
Откуда: Украина, Киев
В моём случае облицовка 40см несущей стены из силикатного кирпича (50мм вата + ГКЛ12,5мм+ГКЛ12,5мм) не будет достаточно работать? НО по периметру стен подъезд и моя квартира , наверху чердак !!! Андрей , объясните звук вниз пойдёт по несущим стенам (если полы и пол я сделаю по вами приведённой схеме ,а облицовку 8см)?
Андрей Самара
Сообщения: 15
Зарегистрирован: 27 мар 2017, 21:45
Вернуться к началу
Re: Звукоизоляция стен, пола и потолка (чертежи и схемы)
Сообщение Андрей Смирнов » 22 май 2017, 23:43
Андрей Самара,
не требуйте от меня невозможного.
В подобных случаях необходимо проводить измерения звукоизоляции ограждающих конструкций квартиры и уровня звука источника (ваших репетиций).
Я мог бы дать гораздо более точные советы, если бы видел результаты этих натурных измерений.
А так можно давать только более общие рекомендации.
...ничто не слишком...(с) Кармадон, "Альтист Данилов"
http://www.akustik.ua - акустическое проектное бюро
http://www.acoustic.ua - поставка звукоизоляционных материалов
В моём случае облицовка 40см несущей стены из силикатного кирпича (50мм вата + ГКЛ12,5мм+ГКЛ12,5мм) не будет достаточно работать? НО по периметру стен подъезд и моя квартира , наверху чердак !!! Андрей , объясните звук вниз пойдёт по несущим стенам (если полы и пол я сделаю по вами приведённой схеме ,а облицовку 8см)?
Андрей Самара
Сообщения: 15
Зарегистрирован: 27 мар 2017, 21:45
Андрей Самара писал(а):
...как вы считаете не слишком мал для исходящих звуков классической гитары (в муз комнате будет ковер , на стенах что-то рассеивающее? Без натурных измерений сказать невозможно ?
Уровень шумов, проникающих в соседнюю квартиру зависит от двух факторов: исходной звукоизоляции квартиры и уровня громкости источника.
Те решения, которые вы планировали применить, вполне приемлемы для изоляции бытовых шумов - громкий разговор, звук телевизора, плач ребенка и т.п.
Но звук репетиций (гитара + вокал) это не бытовой шум, поэтому несколько затруднительно судить о его изоляции.
В данном случае требуются конструкции с более высокой, по сравнению с обычными случаями, звукоизоляцией. Как минимум необходимо использовать каркасные облицовки с большим относом от существующих стен, пола и потолка, 150-200 мм. А у вас и так очень маленькое помещение, всего 6 кв.м.
Есть план В снять стяжку во всей квартире и тогда общая высота плавающего пола будет 13 см . (но это подороже будет )
Вы хотите организовать студийное по статусу помещение в обычном жилом доме и при этом обойтись минимальным бюджетом?
Чудес не бывает.
...ничто не слишком...(с) Кармадон, "Альтист Данилов"
http://www.akustik.ua - акустическое проектное бюро
http://www.acoustic.ua - поставка звукоизоляционных материалов
Вы писали на форуме , что слабой стороной домов из силикатного кирпича является лёгкое бетонное перекрытие . В случае с моей муз комнатой надо максимально звукоизолировать пол ? Плавающий пол общей высотой примерно 8 см (vibrofix+минвата50мм+брус 50×40 + ОСП 10мм+ ГВЛ10мм+ОСП10мм+линолеум) , как вы считаете не слишком мал для исходящих звуков классической гитары (в муз комнате будет ковер , на стенах что-то рассеивающее. Без натурных измерений сказать невозможно ?
Последний раз редактировалось Андрей Самара 22 май 2017, 20:40, всего редактировалось 1 раз.
Андрей Самара
Сообщения: 15
Зарегистрирован: 27 мар 2017, 21:45
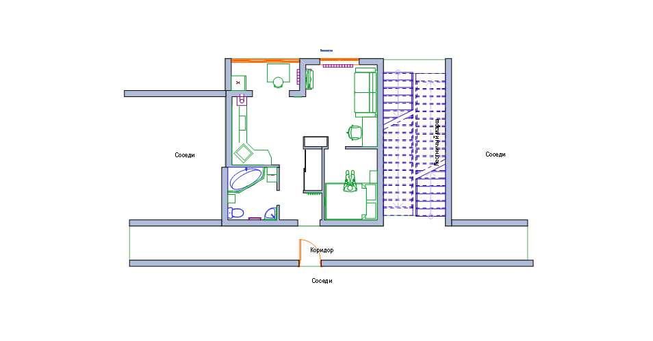
Есть план В снять стяжку во всей квартире и тогда общая высота плавающего пола будет 13 см . (но это подороже будет ) Поэтому хочется понять что на грани , а что излишне (пустотелая плита , стены несущие полтора кирпича 40 см) Выше я размещал две визуализации из которых видно , что муз комната граничит с подъездом дома и моей же квартирой , наверху чердак , и только подо мной соседи .
Последний раз редактировалось Андрей Самара 22 май 2017, 20:53, всего редактировалось 1 раз.
То что стены несущие 40 см и за ними подъезд , скажите , это разве не играет никакой роли ? Надо мной чердак ! И только внизу соседи !!! Выше я прикреплял 3d визуализацию . И какой высоты полы порекомендовали бы Вы, Андрей ? Только я планирую не студию , там не будет ни микрофонов ни другой электроники , а только классическая гитара и мой голос .
Студия это не только микрофоны и электроника.
Репетиционные помещения также относятся к студийным.
Типичный "студийный" настил пола имеет состав ОСП 25мм+ ГКЛ12мм+ГКЛ12мм+ОСП25мм и лаги высотой 100 мм.
А вы можете упрощать по своему усмотрению

...ничто не слишком...(с) Кармадон, "Альтист Данилов"
http://www.akustik.ua - акустическое проектное бюро
http://www.acoustic.ua - поставка звукоизоляционных материалов