Vibrofix

Квартира от строителей

Обговорення проблем захисту від шуму, звукоізоляції приміщень, віброізоляції обладнання.
Проєктування, матеріали, вимірювання

Квартира от строителей

Postby LSV » 27 May 2013, 13:45

Добрый день, Андрей!
Вопросов у меня много, но не все сразу, начну со стяжки.
Квартира в новостройке, монолит, наружные стены и межквартирные перегородки - пеноблок, межкомнатные - ПГП. Живу в Перми. Доступны звукоизоляционные материалы с acoustic.ru. Квартира без отделки, но со стяжкой. Стяжка плавающая на подложке, толщина стяжки 3-6см. Подложка типа изолон толщиной 0,5см. По периметру проложена демпферная лента.
1. Такая стяжка может хоть как-то защетить от шума снизу? Какого характера будет шум трудно сказать, т.к. внизу никто пока не живет.
2. Стяжка на удивление сделана ровно, м.б. поверх неё ещё сделаю самовыравнивающюю тонким слоем. Хочу вместо демпферной ленты проложить вибростек-м в два слоя. Под ламинат положить акуфлекс. Датут ли эти действия какой нибудь результат?
3. Хочу под ламинат положить теплые пленочные полы, куда этот акуфлекс класть, непосредственно под ламинат или под теплоизоляцию?
4. Акуфлекс под плитку на кухне и в санузле не положить, тогда чем можно снизить ударный шум от плитки?
Attachments
Отделка 0081.jpg
Отделка 0081.jpg (132.04 KiB) Viewed 19576 times
Отделка 0041.jpg
Отделка 0041.jpg (135.19 KiB) Viewed 19576 times
LSV
 
Posts: 9
Joined: 27 May 2013, 12:20
Location: г. Пермь

Re: Квартира от строителей

Postby LSV » 28 May 2013, 21:40

Здравствуйте, Андрей!
Хочу уточнить. Задача такая, что бы не слышать воздушный шум снизу и не мешать им ударным шумом. У меня трое детей, двоим, из которых, по 2,5 года. И, соответственно, это беготня, падающие игрушки, крики и т.д. Про изолон на форуме нашла ответ.
Last edited by LSV on 29 May 2013, 12:36, edited 1 time in total.
LSV
 
Posts: 9
Joined: 27 May 2013, 12:20
Location: г. Пермь

Re: Квартира от строителей

Postby interpreter » 29 May 2013, 06:51

Приветствую! В личку сообщение почему то не отправляются, но очень интересен вопрос - а застройщик кто?
interpreter
 
Posts: 2
Joined: 16 May 2013, 18:52
Location: г.Пермь

Re: Квартира от строителей

Postby Андрей Смирнов » 29 May 2013, 12:36

Добрый день, LSV
1. стяжка 3-6 см не сможет обеспечить защиту от шума снизу, но достаточно успешно решит проблему "вашего" ударного шума "сверху вниз".
2. менять существующую демпферную ленту вибростеком в два слоя не имеет никакого смысла. Под ламинат положить акуфлекс можно, но в строительной акустике эффективности не складываются арифметически. В данном случае эффективность изоляции ударного шума конструкцией плавающей стяжки поверх слоя изолона гораздо выше по сравнению с сочетанием ламинат/акуфлекс, поэтому можете применить любуб подходящую под ламинат подложку.
3. вопрос применения теплого пленочного пола необходимо согласовать с инсталлятором теплого пола.
4. снизить ударный шум от воздействия каблуков на плитку можно с помощью укладки этой плитки не на цементный раствор, а на эластичный полиуретановый клей для плитки, например, SikaBond-T 8 производства Sika (Швейцария).
...ничто не слишком...(с) Кармадон, "Альтист Данилов"
http://www.akustik.ua - акустическое проектное бюро
http://www.acoustic.ua - звукоизоляционные материалы
............................................
User avatar
Андрей Смирнов
Soundmoderator
 
Posts: 8791
Joined: 29 Aug 2006, 12:24
Location: Украина, Киев

Re: Квартира от строителей

Postby LSV » 29 May 2013, 21:26

Спасибо огромное, Андрей, что откликнулись :D
Теперь хочу спросить про ЗИ стен.
1. В гостиной стену из пеноблоков, которая граничит с соседями (у них на стене в с/у трубы водопровода, в коридоре домофон и дверь входная брякает) и стену, которая граничит с общим коридором буду ЗИ независимым каркасом с Шуманет-Эко в два слоя. Облицовка - ГВЛ 12,5+ГКЛ 9,5, профиль через Вибростек-М, стыки- Вибросилом. Меня смущает такой момент, т.к. есть стяжка и ее толщина не постоянная, то при креплении профиля к стяжке можно попасть в перекрытие. М.Б. стяжку срезать и каркас закрепить к перекрытиям снизу и сверху? При таком креплении Вы рекомендуете профиль Vibrofix Liner. У нас его не продают, но продают шайбы с резиновой прокладкой. Можно ли крепить через них? А вместо прокладки Vibrosil Tape что можно использовать?
2. Межкомнатные перегородки из ПГП, которые любят строители и, которые илучают все, что можно. Я склоняюсь их снести, но муж пока не соглашаеся :roll: . Индекс Rw этих ПГП 38 Дб. А какой индекс у перегородки с двумя облицовками ГКЛ 9,5+ГВЛ 12,5+Шуманет-Эко 50мм+ГВЛ 12,5+ГКЛ 9,5 и перегородки ГКЛ 9,5+ГВЛ 12,5+Шуманет-Эко 50мм+Шуманет-Эко 50мм+ГВЛ 12,5+ГКЛ 9,5 ( два независимых каркаса) при условии, что каркасы крепятся к перекрытиям?
Attachments
Plan_2_new[1].jpg
Plan_2_new[1].jpg (184.44 KiB) Viewed 19507 times
LSV
 
Posts: 9
Joined: 27 May 2013, 12:20
Location: г. Пермь

Re: Квартира от строителей

Postby Андрей Смирнов » 31 May 2013, 11:49

Межквартирная стена из пенобетона 200 мм это жесть :(
Звукоизоляция такого ограждения не будет превышать значений 44-46 дБ, что совершенно не удовлетворяет нормативным требованиям.
Независимый каркас лучше крепить к плавающему полу, предварительно проверив толщину стяжки для исключения акустических мостиков.
Изготовить самодельные профили с виброразвязкой конечно можно, но только отдавая себе отчет в результативности и подходя к вопросу осознанно :)
Вместо прокладки Vibrosil Tape что можно использовать ленту из синтетического вспененного каучука толщиной 6-10 мм и плотностью 35-60 кг/куб.м.
Перегородка ГКЛ 9,5+ГВЛ 12,5+минвата 50мм+ГВЛ 12,5+ГКЛ 9,5 может обладать эффективностью 49-52 дБ, а на двух независимых каркасах доходить до 55-57 дБ (в зависимости от качества исполнения). Минеральную вату можно применять Роквул Акустик Баттс.
...ничто не слишком...(с) Кармадон, "Альтист Данилов"
http://www.akustik.ua - акустическое проектное бюро
http://www.acoustic.ua - звукоизоляционные материалы
............................................
User avatar
Андрей Смирнов
Soundmoderator
 
Posts: 8791
Joined: 29 Aug 2006, 12:24
Location: Украина, Киев

Re: Квартира от строителей

Postby LSV » 02 Jun 2013, 05:00

Добрый день, Андрей!
Андрей Смирнов wrote:Межквартирная стена из пенобетона 200 мм это жесть :(
Звукоизоляция такого ограждения не будет превышать значений 44-46 дБ, что совершенно не удовлетворяет нормативным требованиям.

Если я увеличу толщину ГВЛ, ГКЛ и прикручу третий слой ГКЛ, это увеличит звукоизоляцию стен из пенобетона?
LSV
 
Posts: 9
Joined: 27 May 2013, 12:20
Location: г. Пермь

Re: Квартира от строителей

Postby LSV » 02 Jun 2013, 05:53

Андрей Смирнов wrote:Вместо прокладки Vibrosil Tape что можно использовать ленту из синтетического вспененного каучука толщиной 6-10 мм и плотностью 35-60 кг/куб.м.

Можно ли синтетический вспененный каучук использовать для звукоизоляции пластиковых труб канализации и металлопластиковых труб водопровода и на сколько это эффективно?
И еще, на типовых конструкциях Вы используете Vibrosil Tape в два слоя, правильно ли я поняла? Если да, то почему на конструкции 13, 14, 15, 16, 17, 18 в один слой к перекрытию потолка, с чем это связано?
LSV
 
Posts: 9
Joined: 27 May 2013, 12:20
Location: г. Пермь

Re: Квартира от строителей

Postby Андрей Смирнов » 02 Jun 2013, 13:31

Можно сразу выполнять облицовку межквартирной стены из пенобетона на независимом каркасе на основе 3 х ГВЛ 12,5.
Vibrosil Tape мы используем в один слой, но разной толщины (3мм для спряжения облицовок и 6 мм для крепления профилей Vibrofix Liner).
По всей видимости под "конструкциями 13, 14, 15, 16, 17, 18" вы имеете ввиду иллюстрации типовых решений по ссылке с сайта нашей компании http://acoustic.ua/recommendations/175 . Но это всего лишь иллюстрации.
На практике следует применять решения из Альбома чертежей звукоизоляционных конструкций http://acoustic.ua/st/Acoustic_ua_knauf_solutions.pdf
...ничто не слишком...(с) Кармадон, "Альтист Данилов"
http://www.akustik.ua - акустическое проектное бюро
http://www.acoustic.ua - звукоизоляционные материалы
............................................
User avatar
Андрей Смирнов
Soundmoderator
 
Posts: 8791
Joined: 29 Aug 2006, 12:24
Location: Украина, Киев

Re: Квартира от строителей

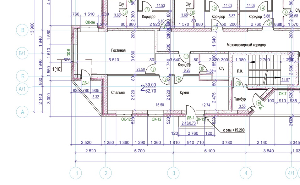
Postby LSV » 03 Jun 2013, 14:44

Добрый вечер, Андрей!
Сделала зарисовку на плане гостиной и коридора.
Перегородку из ПГП м/д гостиной и коридором сносим. Делаем облицовку пеноблоков от ниши вдоль стен гостиной и коридора. Крепление по полу в плавающую стяжку , по потолку - в перекрытие.
Кружочком обвела узел, как правильно его сделать?
1. Выполнить схему 3.46, затем выстроить перегородку м/д гостинной и коридором.
2. Облицовку продлить как перегородку, а потом сделать облицовку коридора.

И еще, вдоль стен, где окна, будут фальшстены с декоративными нишами, а также будут спрятаны трубы отопления и радиаторы. Пустоты за гипсокартоном тоже нужно закладывать мин. ватой или не обязательно? ЗИ наружных стен делать не хотела.

Plan_2_new%5B11%5D2.jpg
Plan_2_new%5B11%5D2.jpg (129.31 KiB) Viewed 19377 times
LSV
 
Posts: 9
Joined: 27 May 2013, 12:20
Location: г. Пермь

Re: Квартира от строителей

Postby Андрей Смирнов » 03 Jun 2013, 17:03

Сначала выполняете облицовку, а затем к ней примыкаете перегородкой (между гостиной и коридором).
Пустоты за ГКЛ обязательно надо заполнять минеральной ватой общей толщиной не менее 50-60% от глубины каркаса, в противном случае звукоизоляционная конструкция может превратиться в усилитель проникающих извне звуков :)
...ничто не слишком...(с) Кармадон, "Альтист Данилов"
http://www.akustik.ua - акустическое проектное бюро
http://www.acoustic.ua - звукоизоляционные материалы
............................................
User avatar
Андрей Смирнов
Soundmoderator
 
Posts: 8791
Joined: 29 Aug 2006, 12:24
Location: Украина, Киев

Re: Квартира от строителей

Postby LSV » 05 Jun 2013, 20:36

Андрей Смирнов wrote:Сначала выполняете облицовку, а затем к ней примыкаете перегородкой (между гостиной и коридором).

Облицовку, в моем случае, на каком расстоянии делать от стены?
LSV
 
Posts: 9
Joined: 27 May 2013, 12:20
Location: г. Пермь

Re: Квартира от строителей

Postby Андрей Смирнов » 05 Jun 2013, 21:49

1. прочитайте внимательно статью http://acoustic.ua/recommendations/743
2. чем больше глубина каркаса, тем выше звукоизоляция при прочих равных условиях. Поэтому выполняйте облицовку на максимально большом расстоянии, какое только сможете себе позволить.
...ничто не слишком...(с) Кармадон, "Альтист Данилов"
http://www.akustik.ua - акустическое проектное бюро
http://www.acoustic.ua - звукоизоляционные материалы
............................................
User avatar
Андрей Смирнов
Soundmoderator
 
Posts: 8791
Joined: 29 Aug 2006, 12:24
Location: Украина, Киев

Re: Квартира от строителей

Postby LSV » 06 Jun 2013, 20:19

Я уже читала эту статью, прочитала еще раз. В ней ни слова о величине расстояния ( о величине воздушного промежутка) м/д стеной и звукоизолирующей конструкцией. Может быть я не правильно понимаю значение слов "воздушный промежуток", применяемый в звукоизолирующих конструкциях. В моем понимании воздушный промежуток - это расстояние м/д стеной и стоечным профилем (50мм или 100мм), в который вложена акустическая вата соответственно в один слой или в два слоя. Толщину каркаса могу себе позволить в два слоя акустической ваты по 50мм, т.е. 100 мм + 3*ГВЛ. Расстояние м/д каркасом и стеной в 10мм будет достаточно или нет?
LSV
 
Posts: 9
Joined: 27 May 2013, 12:20
Location: г. Пермь

Re: Квартира от строителей

Postby vasilii » 07 Jun 2013, 06:11

Позволите пару реплик (начитанного диалетанта и доморощенного исследователя акустики своей квартиры)??
1) Немного вы запутались в терминологии, что впрочем некритично.. Ну, для однозначности диалога употребите словосочетание "расстояние от стены до стоечных профилей,не заполненное звукопоглощающим материалом" вместо имеющего, как вы верно заметили , несколько(!) значений понятия "воздушный промежуток"...
2) Само это расстояние(МИНИМАЛЬНОЕ) обычно определяется , в первую очередь неравномерностью стен- чтобы ни в одной точке не было контакта профиля (и соответственно , не было контакта ПЕРЕИЗЛУЧАЮЩЕЙ В ТАКОМ(!) случае на СРЕДНИХ частотах ("жесткие связи" -" звуковые мостики") облицовки ГВЛ-ГКЛ);
3) Так что делайте исходя из этого критерия.... Впрочем ,если за вашей стенкой находится соседская ванна и дверь брякает (как вы описали) или кухня или место, где все к лифту ходят - наверное стоит подумать и над рекомендацией А.Смирнова о максимальном по возможности относе от защищаемой стены собственно "ОБЛИЦОВКИ из трех ГВЛ"... Сделаете этот "воздушный промежуток" не 1 см , а ,например, 6 см-
И ПРИ указанной вами конструкции- три ГВЛ и 100мм ваты- собственная частота конструкции с ДОПОЛНИТЕЛЬНЫМ 5-см отступом(воздушным промежутком) от стены до ближнего к стене края профиля соответственно снизится с 30-32 Гц до 21-23 Гц.. Что повлечет как увеличение показателей звукоизоляции при СИЛЬНЫХ гроханиях дверью или соседской НЧ-музыки(имею в виду частоты диапазона 55-70 Гц), так и снизит нижнюю границу тех частот, с которых собственно и будет ощутим эффект звукоизоляции (то есть опять же снизит проникающие структурным путем ударные звуки БОЛЬШОЙ интенсивности от окружающих квартир и поверхностей.(Почему я везде упоминаю словосочетания "СИЛЬНОЙ или БОЛЬШОЙ интенсивности"- по наблюдениям в моей квартире именно эти частоты были максимальны по амплитуде среди прочих именно ТОЛЬКО при сильных ударах дверьми, прыжках детей в квартирах расположенных не только "над" и "под" и "через стену", но и "по диагонали" сверху и снизу. Впрочем это соответствует и теории акустики (упрощая до легкого искажения) - чем ниже частота (из тех СОБСТВЕННЫХ частот, что МОГУТ(!) образоваться в ОДНОРОДНОЙ пластине), тем большая энергия требуется для их возникновения("возбуждения" ) (Несмотря на то, что дом классической 86-кирпичной серии, но и внутриквартирные перегородки и межквартирные(кроме продольных несущих в два и полтора кирпича) и плиты 220-мм пустотные перекрытий по своей поверностной плотности очень БЛИЗКИ к , например, 30-40 см газобетону плотности 600... )
4) Независимо от показателей звукоизоляции на низких НЧ (55-70 Гц),возникающих при СИЛЬНЫХ ударных воздействиях ( по ДИАЛЕТАНТСКИМ измерениям именно в МОЕЙ квартире, уточню) увеличение относа (воздушного промежутка) повлечет и увеличение показателей звукоизоляции на частотах 120-130 Гц . А вот данные частоты (по измерениям осциллографом в моей квартире ) были максимальны по амплитуде (cовместно с полосами частот 250-320 ГЦ)при БЫТОВЫХ (ОБЫЧНОГО уровня) ударных воздействиях у соседей(например, ОБЫЧНЫЕ захлопывания дверей на защелку), особенно при наличии "условно-запрещенных" конструкций полов с плиткой керамической или паркетом-ламинатом ( передвижение мебели, падение игрушек на "паркет по фанере" за межквартирной стеной ,каблуки и т.п).
5) В плане защиты от звуков речи или БЫТОВОГО радио-телевизора(без(!) САБа и ДК) не считал бы данный относ(расстояние) критичным- по опять же измерениям в моей квартире ДОХОДЯЩИЕ и СЛЫШИМЫЕ через стену и плиты перекрытий частоты от соответственно женских и мужских голосов были максимальны по амплитуде на экране осциллографа в диапазонах выше, соответственно, 400 и 180 Гц(приблизительно). То есть при предполагаемой собственной частоте вашей конструкции с 10-см ватой и тремя ГВЛ приблизительно 30 Гц (с 1-см промежутком) на данных частотах (выше 180 Гц) дополнительная звукоизоляция возросла бы несущественно..(хотя , конечно выросла бы , но на диапазоне ДО 250 Гц это повышение при увеличении относа выглядело бы гораздо существенно) Неплохо показана эта динамика- более крутой подъем именно на НИЗКИХ НЧ(до 250 Гц,и особенно на частоте 125 Гц)) на графиках испытаний перегородок с разными толщинами("воздушными промежутками") от 50 до 150 мм с сайта Рокволла (собственно, там испытывали действие ваты Акустик Баттс в составе разнообразных перегородок )...
vasilii
 
Posts: 448
Joined: 30 Mar 2009, 15:06

Re: Квартира от строителей

Postby Ars » 07 Jun 2013, 12:27

vasilii wrote:Неплохо показана эта динамика- более крутой подъем именно на НИЗКИХ НЧ(до 250 Гц,и особенно на частоте 125 Гц)) на графиках испытаний перегородок с разными толщинами("воздушными промежутками") от 50 до 150 мм с сайта Рокволла (собственно, там испытывали действие ваты Акустик Баттс в составе разнообразных перегородок )...

Вы говорите об альбоме "Каталог эффективной звукоизоляции"?
http://guide.rockwool.ru/tools/brochure.aspx
Или есть еще что-то?
Ars
 
Posts: 137
Joined: 21 Feb 2013, 12:08
Location: Россия, Краснодарский край, Новороссийск

Re: Квартира от строителей

Postby vasilii » 07 Jun 2013, 13:14

Я имел в виду проведенные НИИСФ испытания , которые я сейчас нашел по ссылке
http://guide.rockwool.ru/media/50129/ro ... sting3.pdf
Разумеется, перегородка из однотипных облицовок не эквивалентна "облицовке на относе" от МАССИВНОЙ стены( плотностью в 10-20 раз больше, чем плотность облицовки ). В частности, приблизительно в 1.2 раза выше будет собственная частота конструкции LSV из данного поста "ГВЛ*3 листа на относе от пенобетона" чем если проводить аналогию с "двумя ГКЛ *2 c обоих сторон" в составе перегородки №12 из ИСПЫТАНИЙ, наиболее близкой . И разумеется, цифры дополнительной звукоизоляции конструкции из поста ни в коей мере не совпадают с цифрами СОБСТВЕННОЙ звукоизоляции перегородок из ПРОТОКОЛОВ НИИСФ. Но общие тенденции не сильно отличаются.. Добавку приблизительно 5 см воздушного промежутка приблизительно иллюстрируют конструкции 14 и 15 - резкое отличие на 7-8(!) дБ на частоте 100 Гц. А учитывая, что собственная частота конструкции зачинщика данной темы (LSV) будет где-то в 1.2 раза выше чем на графиках 12, 14 и 15 конструкций -то данное РЕЗКОЕ отличие в 7-8 дБ проявится МОЖЕТ и на 120-130 Гц(конструкция "ТРИ ГВЛ на относе с 10-см минватой и с ДОПОЛНИТЕЛЬНЫМ 5-см ВОЗДУШНЫМ промежутком" ....)
Last edited by vasilii on 07 Jun 2013, 13:57, edited 2 times in total.
vasilii
 
Posts: 448
Joined: 30 Mar 2009, 15:06

Re: Квартира от строителей

Postby Андрей Смирнов » 07 Jun 2013, 13:24

2 vasilii
доверять измерениям выполненным в НИИСФ (х/д №31450 от10.08.2005) для Роквула нельзя. Испытания проводились в разное время в разных условиях и выводы корректировались. Согласно отчету испытаний (копия у меня есть) перегородка на одном каркасе 100 мм с двухслойной обшивкой ГКЛ с обеих сторон и перегородка на двух независимых каркасах 2х50 мм с двухслойной обшивкой ГКЛ с обеих сторон обладают одинаковым значением индекса звукоизоляции. Более того, в выводах звучит фраза (дословно):
"...Отсюда следует вывод, что в каркасно-обшивных перегородках при тонкостенном стальном профиле применение двойного каркаса, если это не вызвано необходимостью пропуска внутри перегородки каких-либо коммуникаций, нецелесообразно".
Как вы понимаете, принять такую формулировку, не соответствующую действительности, просто невозможно :)
Кроме того, акустическая камера в НИИСФе имеет некоторые ограничения по уровню звукоизоляции. Эти ограничения искажают результаты испытаний перегородок с "потенциально" высокими значениями Rw.

2 LSV
воздушный промежуток необходим только для исключения механического контакта между стеной и каркасом облицовки. Его величина зависит от степени неровности стены и может составлять 5-10 мм. Если промежуток увеличить, это приведет к соответствующему увеличению звукоизолирующей способности облицовки. Как правило, удвоение общей глубины каркаса (расстояние от стены до ГКЛ) на практике приводит к увеличению звукоизоляции на 5-6 дБ.
...ничто не слишком...(с) Кармадон, "Альтист Данилов"
http://www.akustik.ua - акустическое проектное бюро
http://www.acoustic.ua - звукоизоляционные материалы
............................................
User avatar
Андрей Смирнов
Soundmoderator
 
Posts: 8791
Joined: 29 Aug 2006, 12:24
Location: Украина, Киев

Re: Квартира от строителей

Postby vasilii » 07 Jun 2013, 13:40

Разумеется, Андрей - я в свое время тоже обратил внимание на данный результат испытаний на раздельном каркасе и вывод ... Но решил на ЭТОМ исключении(!) не акцентировать внимание.. В исследованиях Роквола меня привлекло достаточно явная иллюстрация СУЩЕСТВЕННОГО(крутого)снижения собственной звукоизоляции в районах резонансных провалов(ниже 2-4* Fсобст ) То есть ЯВНОЕ влияние именно УВЕЛИЧЕНИЯ расстояний-относов (или масс ) на показатели собственной( или дополнительной) звукоизоляции на НЧ.... Ну уж больно наглядно проиллюстрирована была РЯДОМ ГРАФИКОВ испытаний физическая(акустическая) суть понятия СОБСТВЕННАЯ ЧАСТОТА (перегородки или конструкции с "облицовкой на относе ")... Именно в том диапазоне, что я интересовался всегда - район 120-135 Гц ...
vasilii
 
Posts: 448
Joined: 30 Mar 2009, 15:06

Re: Квартира от строителей

Postby Андрей Смирнов » 07 Jun 2013, 13:48

Василий, к сожалению эти измерения были выполнены некачественно, возможно второпях и бессистемно, поэтому доверять их результатам невозможно :(
...ничто не слишком...(с) Кармадон, "Альтист Данилов"
http://www.akustik.ua - акустическое проектное бюро
http://www.acoustic.ua - звукоизоляционные материалы
............................................
User avatar
Андрей Смирнов
Soundmoderator
 
Posts: 8791
Joined: 29 Aug 2006, 12:24
Location: Украина, Киев

Next

Return to Звукоізоляція

Who is online

Users browsing this forum: No registered users and 7 guests

cron