Vibrofix

Re: Звукоизоляция стен, пола и потолка (чертежи и схемы)

Обговорення проблем захисту від шуму, звукоізоляції приміщень, віброізоляції обладнання.
Проєктування, матеріали, вимірювання

Re: Звукоизоляция стен, пола и потолка (чертежи и схемы)

Postby Сергей_GM » 28 Sep 2020, 16:57

Андрей, добрый день. Строю частный одноэтажный дом из газоблока. Наружные стены - 300кг/м3 толщина 500мм, несущие -500кг/м3 толщина250мм. Высота стен - 3м, материал потолков - еще не решил, перекрытия-деревянные, полы-плитка, ламинат. Из-за погони за теплосбережением чуть не пропустил тему звукоизоляции. Хочу заменить межкомнатные перегородки из газоблока-500кг/м3 толщина 100 мм (так как сам производитель указывает Rw-39 Дб после штукатурки), на каркасные перегородки. Ориентируюсь на Целевой показатель - 47-50 Дб, чтобы оградиться от бытовых шумов, шумов из ванной, шумов из топочной (газовый котел, насосы, реле и т.д), так как ванная и топочная граничат со спальнями. Хотелось бы чтобы конструкция 1-не превышала плановые 100 мм, 2-была максимально экологична, 3-соразмерна по стоиомости с газоблоком, 4-долговечна. Ознакомился с тех материалами Кнауф и с вашими комментариями по поводу перегородок из газоблока, но есть вопрос- кокой вариант будет достаточным:

1) 12,5 мм ГКЛ + 50 мм вата 15 кг/м3 + 25 мм воздух + 12,5 мм ГКЛ=100 мм

2) 12,5 мм ГКЛ + 50 мм вата 15 кг/м3 + 10 мм войлок+15 мм воздух + 12,5 мм ГКЛ=100 мм

2.1) 12,5 мм ГКЛ + 50 мм вата 15 кг/м3 + 10 мм поролон 22кг/м3+15 мм воздух + 12,5 мм ГКЛ=100 мм

3) 2*12,5 мм ГКЛ + 50 мм вата 30 кг/м3 + 2*12,5 мм ГКЛ=100 мм

4) буду признателен за ваш вариант.
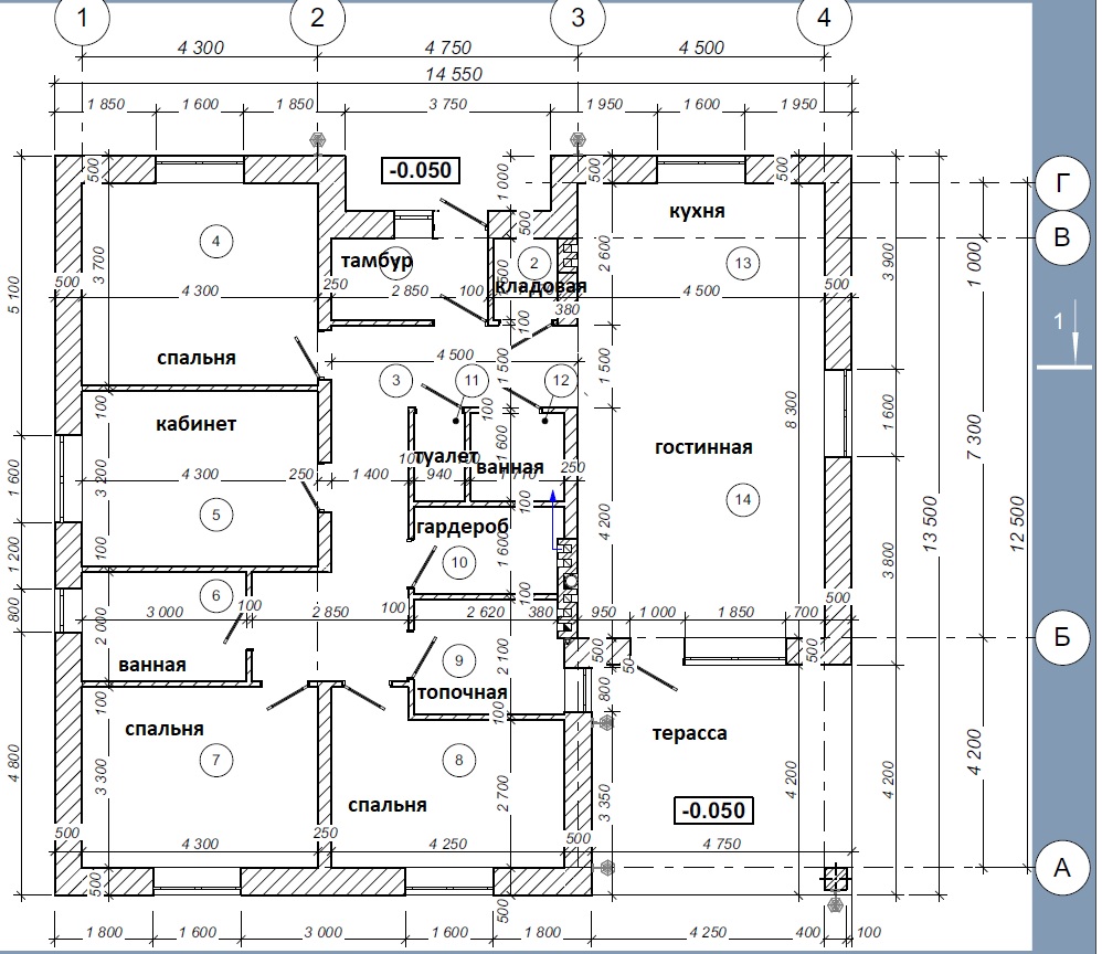
Attachments
Звукоизоляция.jpg
планировка дома
Звукоизоляция.jpg (255.17 KiB) Viewed 3049 times
Сергей_GM
 
Posts: 4
Joined: 28 Sep 2020, 14:15
Location: Киев

Re: Частный одноэтажный дом из газоблока

Postby Андрей Смирнов » 28 Sep 2020, 17:20

Вариант 4.
Звукоизоляционная перегородка Titan CW50
Толщина: 100 мм
Звукоизоляция: Rw = 57 дБ
https://www.acoustic.ua/recommendations/885

перегородка vibrofix_Titan_CW50.jpg
перегородка vibrofix_Titan_CW50.jpg (84.54 KiB) Viewed 3047 times
...ничто не слишком...(с) Кармадон, "Альтист Данилов"
http://www.akustik.ua - акустическое проектное бюро
http://www.acoustic.ua - звукоизоляционные материалы
............................................
User avatar
Андрей Смирнов
Soundmoderator
 
Posts: 8791
Joined: 29 Aug 2006, 12:24
Location: Украина, Киев

Re: Re: Звукоизоляция стен, пола и потолка (чертежи и схемы)

Postby Сергей_GM » 28 Sep 2020, 17:31

Андрей, спасибо за быстрый и исчерпывающий ответ
Сергей_GM
 
Posts: 4
Joined: 28 Sep 2020, 14:15
Location: Киев

Re: Звукоизоляция стен, пола и потолка (чертежи и схемы)

Postby Сергей_GM » 28 Sep 2020, 17:47

Андрей, если Кнауф Титан заменить на обычный, до какого уровня снизится Rw?
Сергей_GM
 
Posts: 4
Joined: 28 Sep 2020, 14:15
Location: Киев

Re: Звукоизоляция стен, пола и потолка (чертежи и схемы)

Postby Сергей_GM » 28 Sep 2020, 18:10

Уже нашел. До 50дБ
Сергей_GM
 
Posts: 4
Joined: 28 Sep 2020, 14:15
Location: Киев


Return to Звукоізоляція

Who is online

Users browsing this forum: No registered users and 1 guest

cron