Vibrofix

Звукоизоляция ДК

Обговорення проблем захисту від шуму, звукоізоляції приміщень, віброізоляції обладнання.
Проєктування, матеріали, вимірювання

Звукоизоляция ДК

Postby Алексей813 » 22 Aug 2016, 21:33

Здравствуйте, Андрей
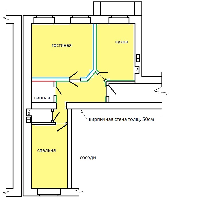
Итак,дано:
квартира на 9 этаже в 16 этажном новом доме. Дом кирпичный с межэтажными перекрытиями из ПК толщ. 220 мм. Разводка отопления по полу, вент каналы в стенах. Высота потолков 285 см.
план квартиры.jpg
план квартиры.jpg (59.57 KiB) Viewed 2581 times

Задача:
1. Максимально звукоизолировать гостиную (здесь будет ДК со всеми вытекающими последствиями). В планах установить 2 двери(трехслойные с порогами) в независимые каркасы перегородки гостиной
2. Максимально звукоизолировать спальню (может быть у будущих соседей будет ДК или громкий муз. центр)
Сделано:
1. Плавающая стяжка толщ. 7-10см по 2 слоям флор баттс под каждое помещение(закрашено жёлтым)
2. потолок на виброподвесах PU в 3 слоя ГВЛ-ГВЛ-ГКЛ с относом 100мм(внутри 2 слоя баттс про) на кухне и коридоре
3. перегородки в 3 слоя ГВЛ-ГВЛ-ГКЛ , опирающиеся на стяжку и звукоизоляционный потолок (отмечены зелёным)
Вопросы:
1. В спальне планирую потолок и стену,граничащую с соседом сделать в 4 слоя с относом 100мм,какой последовательности толщин необходимо придерживаться для рассогласования частот.
2. В ванной надо ли стену(отмечена красным) делать акустически развязанной с помощью виброфикс лайнер для ослабления НЧ или можно не заморачиваться и крепить жестко.
3. В гостиной планирую стены и потолок задемпфировать тексаундом 70, есть ли смысл потолок и стены(отмечены синим) делать в 4 слоя, если да, то в какой последовательности, остальные 2 стены буду монтировать в 3 слоя.
4. Надо ли демпфировать откосы(их глубина 50 см)
5. В гостиной стены (отмечены синим) будут крепиться к плавающей стяжке, а сверху для наилучшей эффективности к перекрытию или звукоизоляционному потолку лучше крепить(кстати, все стены будут крепиться через виброфикс лайнер)
Алексей813
 
Posts: 2
Joined: 11 Aug 2016, 20:01
Location: Омск,Россия

Re: Звукоизоляция ДК

Postby Андрей Смирнов » 23 Aug 2016, 11:35

Алексей813 wrote:Вопросы:
1. В спальне планирую потолок и стену,граничащую с соседом сделать в 4 слоя с относом 100мм,какой последовательности толщин необходимо придерживаться для рассогласования частот.
Если облицовка будет в 3-4 слоя ГВЛ или ГКЛ, то последовательность слоев не критична с точки зрения рассогласования критических частот. На частотах выше 1000 Гц ЗИ и так будет очень высокой
2. В ванной надо ли стену(отмечена красным) делать акустически развязанной с помощью виброфикс лайнер для ослабления НЧ или можно не заморачиваться и крепить жестко.
В ванной комнате допускается все крепить жестко
3. В гостиной планирую стены и потолок задемпфировать тексаундом 70, есть ли смысл потолок и стены(отмечены синим) делать в 4 слоя, если да, то в какой последовательности, остальные 2 стены буду монтировать в 3 слоя.
Тексаунд совершенно излишен в данном случае. Его роль с тем же успехом играет дополнительный слой гипсокартона.
4. Надо ли демпфировать откосы(их глубина 50 см)
Это желательно. Целесообразность ЗИ откосов определяется конструкцией здания
5. В гостиной стены (отмечены синим) будут крепиться к плавающей стяжке, а сверху для наилучшей эффективности к перекрытию или звукоизоляционному потолку лучше крепить(кстати, все стены будут крепиться через виброфикс лайнер)
Наибольшая ЗИ получается, если перегородки и облицовки закрепляются к плавающей стяжке и подвесному потолку
...ничто не слишком...(с) Кармадон, "Альтист Данилов"
http://www.akustik.ua - акустическое проектное бюро
http://www.acoustic.ua - звукоизоляционные материалы
............................................
User avatar
Андрей Смирнов
Soundmoderator
 
Posts: 8791
Joined: 29 Aug 2006, 12:24
Location: Украина, Киев

Re: Звукоизоляция ДК

Postby Алексей813 » 23 Aug 2016, 16:32

О.К. Спасибо, Андрей, за быстрый ответ.
Алексей813
 
Posts: 2
Joined: 11 Aug 2016, 20:01
Location: Омск,Россия


Return to Звукоізоляція

Who is online

Users browsing this forum: No registered users and 38 guests