Vibrofix

Шумоизоляция квартиры в монолите

Обговорення проблем захисту від шуму, звукоізоляції приміщень, віброізоляції обладнання.
Проєктування, матеріали, вимірювання

Шумоизоляция квартиры в монолите

Postby SergeyM » 23 Feb 2016, 00:16

Здравствуйте,

Мне предстоит ремонт в квартире в монолитном доме. Те кто уже заселился в дом, жалуются на очень хорошую слышемость и горько жалают если не подумали зарание о шумоизоляции. Недавно по совету Андрея Смирнова и vasilii в корне пересмотрел свои взгляды на то из чего делать перегородки. Читаю форум и постепенно складывается картина что и как надо делать. Однако некоторые моменты вызывают вопросы. Буду очень признателен за конструктивную критику и ответы на мои вопросы.


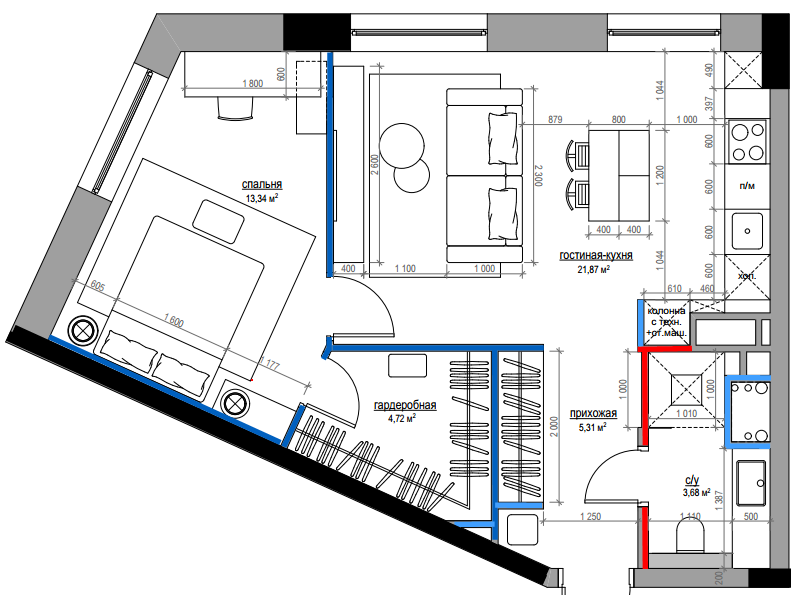
Перекрытия и несущие стены - монолит 20 см, остальные стены - пеноблок 20 см. За стеной, примыкающей к спальне соседская квартира, что именно там будет не знаю. За стеной кухни/сан.узла, кухня и сан.узел соседей. Венткороб из бетона.
Сейчас квартира в состоянии бетонной коробки. Ни одна из соседних квартир (сверху/снизу/справа/слева) еще не заселена, так что в квартире тихо. Точно слышно когда что-то спускают в канализацию. Так же, если подойти совсем близко (10-20 см) к вент.коробу, слышен шум потока воздуха,

Цели:
- Шумоизолировать спальню, от посторонних звуков. Какие конкретно шумы и откуда пока не знаю.
- Шумоизолировать стояки, в первую очередь стояк канализации, во вторую - стояки водоснабжения и отопления. Те кто уже заселился говорят, что стояки иногда как будто гудят.
- Шумоизолировать санузел. В текущей квартире через 2 стенки слышу каждый пук и плеск в туалете, так как будто в нем нахожусь.
- Шумоизолировать приточную вентиляцию, канальный кондиционер и их воздуховоды
- Возможно, шумоизолировать вент.короб.

На схеме:
черный - монолит
серный - пеноблоки
красный - керамический кирпич
синий - ШИ каркасная перегородка/облицовка
светлосиний - каркасная перегородка, к которой нет требований по ШИ.

Вот что планирую:
1) Межквартирные перегородки по схеме W112 на 50мм профиле. Получается Rw=50 или 55 (при использовании ГКЛ повышенной плотности)
2) Стены сан.узла из полнотелого красного кирпича на ребро + 1 см штукатурки с каждой из сторон, итого толщина 90 мм.
3) Облицовка монолитной стены в спальне по схеме W626, так же на 50 мм профиле. Остальные внешние стены шумоизолировать вроде как нет особой надобности.
4) Плавающая стяжка по схеме 5.5 из альбома Кнауф. Общая высота 9-10 см: 20 мм чтобы скрыть коммуникации, затем 20 мм плит Роквул ФлорБатс, затем 40-50 мм армированной стяжки
5) С потолком пока еще не решил. Видимо это будет что-то вроде D113 + в некоторых местах 2-й уровень потолка
6) Канальный кондиционер будет стоять под потолком в гардеробной, вентустановка - в сан.узле под потолком.

Вопросы:
1) Если в перегородке установлена дверь, общий Rw перегородки будет равен Rw двери или здесь какая-то более сложная зависимость?
2) Имеет ли смысл покупать более плотный ГКЛ (например Гипрок Аку-лайн), или наличие дверей в перегородках сведет прибувку Rw к нулю?
3) Будет ли достаточно перегородки в сан.узле в 1/4 полнотелого кирпича для моих целей? Какой Rw будет у такой перегородки?
4) Будет ли толк от облицовки W626 монолитной стены? От НЧ такая облицовка вроде не особо защищает, а СЧ вроде как и так должны госится массой 20 см желозобетона. Какую прибавку Rw даст такая облицовка?
5) Что предпочтительнее, ставить перегородки на перекрытие (схема 1.2 в альбоме) или на стяжку (схема 1.5)?
6) ШУ потолка нужно делать в жилых помещениях или во всех?
Attachments
ScreenClip.png
ScreenClip.png (110.47 KiB) Viewed 17166 times
SergeyM
 
Posts: 11
Joined: 11 Feb 2016, 22:08
Location: Москва

Re: Шумоизоляция квартиры в монолите

Postby Андрей Смирнов » 23 Feb 2016, 10:44

Добрый день,

в целом вы выбрали верный подход.
Я бы рекомендовал отказаться от кирпичной перегородки "на ребро" и выполнить все перегородки по каркасной технологии.
Кирпичная перегородка "на ребро" очень сильно переизлучает звук, распространяющийся по перекрытиям.
Каркасы перегородок с дверями лучше выполнить профилях 75 мм для устойчивости.
Обшивку каркасов выполнять в 2 слоя листами ГВЛ 12,5 мм, это дешевле, чем ГКЛ Аку Лайн с той же эффективностью.

Rw перегородки с дверью выше звукоизоляции двери и ниже звукоизоляции глухой перегородки. Есть методика расчета таких ограждений.
Облицовка W626 монолитной стены будет весьма эффективной для изоляции структурного шума, природа которого отличается от шума воздушного.
Дополнительная ЗИ облицовки W626 зависти от звукоизоляции исходного ограждения. Для стены из монолитного бетона дополнительная ЗИ может иметь значение 10-15 дБ.
Выбор способа опирания перегородок (на перекрытие или на стяжку) зависит от целого ряда факторов.
С точки зрения акустической эффективности лучше опирать на плавающий пол, но всегда существует ряд индивидуальных особенностей.
Звукоизоляцию потолка рекомендуется выполнять по всей квартире, возможно за исключением санузлов и гардероба.
...ничто не слишком...(с) Кармадон, "Альтист Данилов"
http://www.akustik.ua - акустическое проектное бюро
http://www.acoustic.ua - звукоизоляционные материалы
............................................
User avatar
Андрей Смирнов
Soundmoderator
 
Posts: 8791
Joined: 29 Aug 2006, 12:24
Location: Украина, Киев

Re: Шумоизоляция квартиры в монолите

Postby SergeyM » 23 Feb 2016, 21:53

Андрей, спасибо.

Почти все стены будут под покраску. Как понимаю, в этом случае внешний слой из ГКЛ предпочтительней. так он удобней для финишной отделки. Думаю о ГВЛ 10 мм (внутренний слой )+ ГВЛ Аку-лайн 12.5 (внешний). Мне кажется, это разумный компромис между ШУ, простотой дальнейшей отделки и стоимость. Что скажите?

Для меня очень важно, чтобы когда кто-то пользуется сан.узлом, в гостинной не было слышно никаких звуков. В текущей квартире, находясь через 2 гипсовых стенки от туалета я отлично слышу как в нем справляют нужду или сливают воду в унитазе. Скажите, пожалуйста, из-за чего возникает такая проблема и что нужно чтобы в новой квартире ее гарантированно не было?

Существенная часть кирпичной перегородки в сан.узле будет являться стенками душевой кабины в строительном исполнении, то есть вода на них будет попадать регулярно и в больших количества. Поэтому с ГКЛв и ГВЛв связывать не хочется. Как вариант сделать каркасную перегородку, с одной стороны обшитой ГКЛ 12.5+ГВЛ 10, а с другой - 2-мя слоями Аквапанели 12.5. Другой вариант, сделать стену не в 1/4 кирпича, а в 1/2, но с минимальным слоем штукатурки. Что из этого предпочтительней?

Подскажите, пожалуйста, на что лучше опирать перегородки в моем случае? От чего это зависит или тыкнете где в ?
SergeyM
 
Posts: 11
Joined: 11 Feb 2016, 22:08
Location: Москва

Re: Шумоизоляция квартиры в монолите

Postby Андрей Смирнов » 23 Feb 2016, 22:36

ГВЛ Аку-лайн 12.5 и обычный Кнауф ГВЛ это одно и тоже с точки зрения ЗИ.

Звукоизоляция ограждений туалета в основном определяется звукоизоляцией двери. Как правило дверной блок выполняют без порога, поэтому основная слышимость определяется уплотнением дверного полотна. Разница в ЗИ двери с порогом и без него 10-15 дБ!!!
Номера практически во всех отелях 5* построены на основе ГКЛ перегородок, но слышимость в них вполне достойная (если конечно все построено без нарушений технологии). Поэтому пенять на низкую ЗИ ограждений из-за ГКЛ конструкций не стоит.
Это же касается и гидроизоляции ванных комнат. Есть влагостойкий ГКЛ, а есть аквапанель, которая вообще не боится воды.
Кирпич явно проигрывает... :)

Проще и дешевле сначала выполнить плавающий пол с деформационными швами вдоль будущих перегородок, а затем опереть на него перегородки ГКЛ.
...ничто не слишком...(с) Кармадон, "Альтист Данилов"
http://www.akustik.ua - акустическое проектное бюро
http://www.acoustic.ua - звукоизоляционные материалы
............................................
User avatar
Андрей Смирнов
Soundmoderator
 
Posts: 8791
Joined: 29 Aug 2006, 12:24
Location: Украина, Киев

Re: Шумоизоляция квартиры в монолите

Postby SergeyM » 01 Mar 2016, 22:08

Здравствуйте Андрей,
Появилось очередная порция вопросов. Не могли бы вы ответить на них?
1) Как лучше всего звукоизолировать места примыкания стен из пеноблока к монолитному перекрытию. Мне предлагают выдолбить то, что там есть сейчас, плотно затолкать в щель мин.вату, смоченную в цементном растворе и заштукатурить.
2) Как правильно изолировать гильзы в которых стояки проходят через перекрытия? Планировал сделать примерно так: в щели внутри гильзы затолкать мин.ваты сколько получися, а сверху залить акрилатным герметиком. Перед заливкой стяжки обернуть гильзы кромочной лентой или вспененным каучуком.
3) Нужно ли как-то шумоизолировать бетонный вент.короб? Шум потока воздуха слышу,только стоя к коробу вплотную. На данный момент планировал только выровнить поверхность минимальным слоем штукатурки.Так же короб будет закрыт кухонными шкафами.
4) С точки зрения ШИ есть ли какая-то разница из какого материала (шумопласт, кнауф убо, ЦПС) делать черновую стяжку, в которой пройдут коммуникации? Имеетли смысл делать ее макимально тяжелой? Высота черновой стяжки - 2 см. По макс.нагрузке на перекрытие запас есть.
SergeyM
 
Posts: 11
Joined: 11 Feb 2016, 22:08
Location: Москва

Re: Шумоизоляция квартиры в монолите

Postby Андрей Смирнов » 03 Mar 2016, 16:28

1. можно сделать как предлагают строители, только не смачивать минеральную вату в цементном растворе.
2. так и делайте
3. если шум потока воздуха не слышен на расстоянии, то его можно не изолировать дополнительно.
4. черновую стяжку можно применить обычную ЦПС.
...ничто не слишком...(с) Кармадон, "Альтист Данилов"
http://www.akustik.ua - акустическое проектное бюро
http://www.acoustic.ua - звукоизоляционные материалы
............................................
User avatar
Андрей Смирнов
Soundmoderator
 
Posts: 8791
Joined: 29 Aug 2006, 12:24
Location: Украина, Киев

Re: Шумоизоляция квартиры в монолите

Postby Biz » 21 May 2016, 00:27

Андрей, добрый день.
У нас в квартире в монолитном доме появился структурный шум, видимо от кондиционера через этаж выше. Шум и вибрация идут от межкомнатной перегородки из пенобетона 80 мм на обе стороны, т.е. в каждую комнату. Гул слышен в обеих комнатах такой, как будто работает КАМАЗ под окном.
На эту перегородку приходят также другие шумы: речь соседей сверху, шум водопровода от соседей сбоку. Площадь перегородки 2,55*4,0 м.
Планируем звукоизолировать ЗИПС панелями Ультра 3 с Аку Лайном, но только с одной стороны перегородки, т.е. в одной из комнат, в той, где позволяет площадь.
Возникают вопросы:
1. Помогут ли ЗИПС панели от шума и вибрации?
2. Нужно ли перед монтажом ЗИПС панелей чем-нибудь дополнительно утяжелить эту перегородку, например кирпичом?
3. Нужно ли отвязать эту перегородку от перекрытия сверху, от стены сбоку, даст ли это эффект, если да, то как отвязать?
4. Исчезнет ли звук в комнате с другой стороны перегородки?
Спасибо.
Biz
 
Posts: 4
Joined: 20 May 2016, 14:57

Re: Шумоизоляция квартиры в монолите

Postby Андрей Смирнов » 21 May 2016, 17:08

Перегородки из пенобетона по определению обладают очень низкой звукоизоляцией из-за малого веса.
Но у них есть ещё один и очень большой недостаток - нежелательные резонансные явления в области средних частот, из-за которых такие перегородки очень хорошо переизлучают звук, в частности структурные шумы здания.
Единственным преимуществом пенобетона в качестве материала внутренних перегородок является его невысокая цена.
Панели зипс могут снизить уровень проникающих структурных шумов, но только с той стороны перегородки, где они смонтированы. С противоположной стороны шум останется прежним, т.к. перегородка излучает одинаково в обе стороны.
Монтировать зипсы с двух сторон не имеет смысла, т.к. перегородка получится золотой и толстой.
Гораздо проще, дешевле и эффективнее демонтировать существующую перегородку и возвести вместо нее каркасную гипсокартонную.
Перегородки на основе гибких листовых материалов (ГКЛ, ГВЛ, ОСБ, ДСП и т.п) обладают экстремально низким излучением звука в речевом диапазоне.
Чертежи звукоизоляционных каркасных перегородок можно найти на нашем сайте по ссылке http://www.acoustic.ua/st/Acoustic_ua_k ... utions.pdf
vibrofix_partition.jpg
vibrofix_partition.jpg (184.9 KiB) Viewed 16520 times
...ничто не слишком...(с) Кармадон, "Альтист Данилов"
http://www.akustik.ua - акустическое проектное бюро
http://www.acoustic.ua - звукоизоляционные материалы
............................................
User avatar
Андрей Смирнов
Soundmoderator
 
Posts: 8791
Joined: 29 Aug 2006, 12:24
Location: Украина, Киев

Re: Шумоизоляция квартиры в монолите

Postby Biz » 23 May 2016, 11:55

Андрей, спасибо за рекомендации.
Плюсы пенобетона достались застройщику, а жильцам только минусы.
Со стеной все понятно, однако снос перегородки затруднен выполненным ремонтом в одной из комнат, а именно, к этой перегородке примыкает подвесной потолок, и демонтаж перегородки затронет его.
Поэтому скорее всего придется обшивать ЗИПСами с обеих сторон.
Или можно перегородку отрезать ниже уровня подвесного потолка, разобрать и возвести каркас?
Спасибо.
Biz
 
Posts: 4
Joined: 20 May 2016, 14:57

Re: Шумоизоляция квартиры в монолите

Postby Андрей Смирнов » 23 May 2016, 12:26

1. Зипсы с обеих сторон будут стоить как ремонт во всей комнате. Считайте сами.
2. звукоизоляция зипсов эффективна не во всем диапазоне частот, а выше 100 Гц. Но если в вашем случае источником является инженерное оборудование (кондиционер, насос, трансформатор и т.п.), то его акустическое воздействие максимально в диапазоне 50-100 Гц. Таким образом, зипсы не решат проблему звукоизоляции такого типа шума. Вообще, зипсы рассчитаны на изоляцию бытовых шумов: звук телевизора, лай собаки, негромкий разговор и т.п.
...ничто не слишком...(с) Кармадон, "Альтист Данилов"
http://www.akustik.ua - акустическое проектное бюро
http://www.acoustic.ua - звукоизоляционные материалы
............................................
User avatar
Андрей Смирнов
Soundmoderator
 
Posts: 8791
Joined: 29 Aug 2006, 12:24
Location: Украина, Киев


Return to Звукоізоляція

Who is online

Users browsing this forum: No registered users and 12 guests