Здравствуйте Андрей и все форумчане!
Прошу уделить мне немного времени. Надеюсь мой вопрос поможет не только мне.
Ситуация следующая:
Расположение: Московская обл, РФ
Дом: Каркасный, по канадской технологии, 3 этажа
перекрытия: выполнены из доски (иначе не назовешь) 40х300мм, с шагом 406мм, балка лежит на стороне 40мм. С верху и снизу к балкам на клей и саморезы приклеена плита ОСБ толщиной 18мм, пространство между балками заполнено минватой (марка не известна постараюсь узнать если это важно) итого толщина перекрытия 336мм.

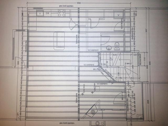
- план перекрытий 2-го этажа
- 1496865.jpg (51.73 KiB) Viewed 15199 times

- план перекрытий 1-го этажа
- 1496869.jpg (72.84 KiB) Viewed 15199 times
сори за качество тороплюсь.
Задача: повысить ударную шумоизоляцию на обоих перекрытиях. В неотделанном доме слышен каждый шаг, рабочих на верхнем этаже.
1. Предполагается на 2 этаже как финишное покрытие паркетная доска толщиной 14мм замковая. способ укладки плавающий. максимальная толщина пола от чернового 40мм. К сожалению уже заказали двери. т.е. на шумоизоляцию остается всего 40мм-14мм=
26мм. 2. На 1 этаже планируется как финишное покрытие массивная доска покрытая лаком. Она обязательно должна быть приклеена и привинчена саморезами к фанере толщиной 15-18мм иначе ее выгнет. Толщина доски 22мм. Планирую приклеивать доску полиуретановым клеем МК92 Uzin, он застывает до состояния "твердой резины". Толщина пола на 1 этаже может составлять 50мм т.е. на шумоизоляцию остается всего 50мм-15мм-22мм=
13мм. Если сделать шумоизоляцию с такой толщиной не возможно. Готов заменить массивную доску на замковую и положить ее плавающим способом. Тогда макс. толщина шумоизоляции составит 50мм-14мм=
36мм.
Прошу дать Вашего совета, что можно сделать в моем "случае". С примерами материалов которые можно приобрести в РФ.
На чудо не рассчитываю.
