Vibrofix

ЗИ в квартире в монолите при ремонте с нуля

Обговорення проблем захисту від шуму, звукоізоляції приміщень, віброізоляції обладнання.
Проєктування, матеріали, вимірювання

ЗИ в квартире в монолите при ремонте с нуля

Postby John Snow » 01 Mar 2016, 12:07

Здравствуйте,

Попытался синтезировать решения для своей ситуации на основе рекомендация на этом форуме. Укажите пожалуйста на ошибки + подскажите по вопросам, если не трудно. Пост длинный,так что если не будет времени отвечать - сбросьте в ЛС контакты специалистов в Москве по акустическим измерениям и монтажу ЗИ конструкций (хочу задать и другие вопросы по ЗИ вживую на объекте).

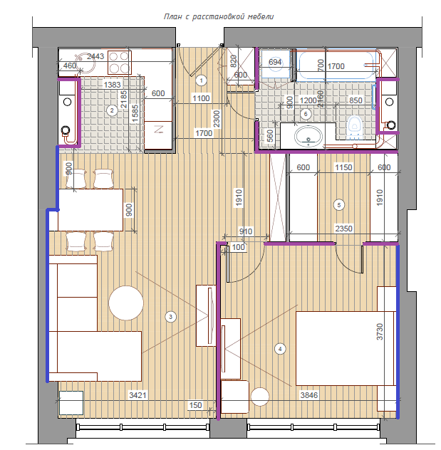
Дано: монолитный дом-новостройка, бетонная коробка без отделки 58 м2. Схема стен на картинке "Схема перекрытий и стен". Перекрытия - 250 мм монолитный железобетон. Стены:
1) в основном 400 мм монолитный железобетон.
2) в межквартирных стенах есть 2 вставки из газобетонных блоков 200 мм - основной пробел в ЗИ квартиры
3) под окнами во внешней стене есть вставка из пеноблоков 400 мм (высота от пола 70 см) - прикрывает батареи.

Соседи будут слева, справа, снизу, сверху. Кто именно и как будут шуметь - неясно, т.к. новостройка. Однако есть типовые планировки, по которым жестко фиксируются зоны сан узлов (см "потенциальные планировки у соседей.png"). Так что считаю, что у соседей сверху и снизу санузел будет прямо над моим, а у соседей слева и справа - гостевые санузлы и спальни вдоль межквартирных стен.
Моя планировка также во вложении.

Цели:
1) не слышать соседей (превентивные меры)
2) смягчить дискомфорт от постоянных ремонтов, которые будут идти в доме следующие несколько лет. Понятно, что от перфоратора не скрыться.

Планы работ - см картинку "план комнаты и звукоизоляции" :
1) Пол. На полу лежат трубы отопления в гофре 30 мм. Также по полу планируется развести проводку в гофре. Идеальный вариант - выполнить черновую стяжку 30мм, чтобы закрыть гофры. Потом слой мин.ваты 20-30мм (Роквул Флор Баттс/Paroc SSB 1) и чистовая стяжка 50-70мм. Рискованный вариант - черновую стяжку не делать, а вырезать в мин вате место под гофры, чтобы сверху получился ровный слой мин ваты.
2) Каркасные перегородки по схеме W112. Профили 75 мм везде, кроме перегородки гардеробная/коридор. Акустик баттс устанавливается в сиреневые перегородки, закрывающие спальню, кухню и стояки (хол и гор вода, короб вытяжки). Перегородки будут ставится на деформационные швы в стяжке.
3) Каркасные облицовки по схеме W626 с Акусти Баттс на профиле 50мм закрашены синим. Не хочу использовать W623, т.к. ничего тяжелого вешать не планируется. Облицовка вдоль левой межквартирной стены полностью закрывает газобетонный блок. Облицовка вдоль правой стены частично закрывает газобетонный блок.
4) Потолок по схеме D112 на подвесах Vibrofix PU с Акустик Батс внутри планируется на всю площадь комнаты и частично - в гостиной.
5) В спальной и гостиной будут установлены кондиционеры. В гостиной, в левом нижнем углу будет установлен блок приточной вентиляции, забирающий воздух с улицы. Забирать воздух будут 2 штатные вытяжки в стояках на кухне и в ванной. Буду использовать гибкие воздуховоды с шумопоглощением, либо заключу воздуховоды в короб. От блока приточной вентиляции в гостиной пойдет труба в спальную через перегородку.

Вопросы:
1) Подскажите контакты специалистов в Москве по акустическим измерениям и монтажу ЗИ конструкций.
2) Нужно понять, где остановится со звукоизоляцией гостиной. Факт 1: не получится установить облицовку вдоль внешней стены на кухне (где стоит раковина и плита). Иначе кухня не влезет. Факт 2: рекомендации устанавливать подвесной потолок по всей площади потолка,возможно исключив санузел и гардеробную. Факт 3. Открытое пространство между гостиной, кухней и коридором.
Если делать подвесной потолок только в гостиной (исключив кухню и коридор) или в гостиной+кухне (исключив коридор), от этого будет эффект? Или это выброшенные деньги? Жаба очень душит делать потолок на всю площадь :(
3) Стоит ли облицовывать огрызки внешних стен? Левый угол, правый угол, снизу посередине.
4) Как рассчитать толщину чистовой стяжки поверх мин.плит? В моем случае строители предлагают ЦПС из бетона марки М300. Я видел ограничение снизу - 50 мм, понимаю про ограничения сверху из-за допустимой нагрузки перекрытия и желания сохранить пространство. Нужно просто уложится в этот диапазон?
5) Увидел на тему с проблемой эха - http://soundmoderator.org/viewtopic.php?f=3&t=2089&p=13462. Я правильно понимаю, что у меня в гостиной/кухне/коридоре будет такая же проблема? Мебели мало, из гасителей звука только диван, книжный шкаф вдоль перегородки в гардеробной, возможно шторы.
6) Какой конкретно "полимерный вспененный материал" стоит применять вместо мин.ваты в ванной? Не лучше ли использовать материал, обеспечивающий одновременно и гидроизоляцию, например Шуманет-100Гидро (Акуфлекс Супер)?
Attachments
план комнаты и звукоизоляции.png
план комнаты и звукоизоляции.png (72.84 KiB) Viewed 5367 times
потенциальные планировки у соседей.png
потенциальные планировки у соседей.png (161.48 KiB) Viewed 5367 times
Схема перекрытий и стен.png
Схема перекрытий и стен.png (41.07 KiB) Viewed 5367 times
John Snow
 
Posts: 2
Joined: 24 Feb 2016, 16:00
Location: Москва, Россия

Re: ЗИ в квартире в монолите при ремонте с нуля

Postby Андрей Смирнов » 03 Mar 2016, 16:49

John Snow wrote:Планы работ - см картинку "план комнаты и звукоизоляции" :
1) Пол. На полу лежат трубы отопления в гофре 30 мм. Также по полу планируется развести проводку в гофре. Идеальный вариант - выполнить черновую стяжку 30мм, чтобы закрыть гофры. Потом слой мин.ваты 20-30мм (Роквул Флор Баттс/Paroc SSB 1) и чистовая стяжка 50-70мм. Рискованный вариант - черновую стяжку не делать, а вырезать в мин вате место под гофры, чтобы сверху получился ровный слой мин ваты.
рекомендуется "идеальный" вариант на основе Paroc SSB 1
2) Каркасные перегородки по схеме W112. Профили 75 мм везде, кроме перегородки гардеробная/коридор. Акустик баттс устанавливается в сиреневые перегородки, закрывающие спальню, кухню и стояки (хол и гор вода, короб вытяжки). Перегородки будут ставится на деформационные швы в стяжке.
да
3) Каркасные облицовки по схеме W626 с Акусти Баттс на профиле 50мм закрашены синим. Не хочу использовать W623, т.к. ничего тяжелого вешать не планируется. Облицовка вдоль левой межквартирной стены полностью закрывает газобетонный блок. Облицовка вдоль правой стены частично закрывает газобетонный блок.
да
4) Потолок по схеме D112 на подвесах Vibrofix PU с Акустик Батс внутри планируется на всю площадь комнаты и частично - в гостиной.
частичное выполнение потолка в гостиной кажется несколько странным решением. Или делать или не делать.
5) В спальной и гостиной будут установлены кондиционеры. В гостиной, в левом нижнем углу будет установлен блок приточной вентиляции, забирающий воздух с улицы. Забирать воздух будут 2 штатные вытяжки в стояках на кухне и в ванной. Буду использовать гибкие воздуховоды с шумопоглощением, либо заключу воздуховоды в короб. От блока приточной вентиляции в гостиной пойдет труба в спальную через перегородку.
опасно устанавливать вентиляционный агрегат в жилом помещении. Можно получить большую проблему с шумом вентилятора. Я вообще ярый противник принудительной вентиляции в квартирах

Вопросы:
1) Подскажите контакты специалистов в Москве по акустическим измерениям и монтажу ЗИ конструкций.
2) Нужно понять, где остановится со звукоизоляцией гостиной. Факт 1: не получится установить облицовку вдоль внешней стены на кухне (где стоит раковина и плита). Иначе кухня не влезет. Факт 2: рекомендации устанавливать подвесной потолок по всей площади потолка,возможно исключив санузел и гардеробную. Факт 3. Открытое пространство между гостиной, кухней и коридором.
Если делать подвесной потолок только в гостиной (исключив кухню и коридор) или в гостиной+кухне (исключив коридор), от этого будет эффект? Или это выброшенные деньги? Жаба очень душит делать потолок на всю площадь :(
частичный потолок все равно потребует расхода денег, а результата не будет... вопрос: зачем?
3) Стоит ли облицовывать огрызки внешних стен? Левый угол, правый угол, снизу посередине.
не стоит
4) Как рассчитать толщину чистовой стяжки поверх мин.плит? В моем случае строители предлагают ЦПС из бетона марки М300. Я видел ограничение снизу - 50 мм, понимаю про ограничения сверху из-за допустимой нагрузки перекрытия и желания сохранить пространство. Нужно просто уложится в этот диапазон?
если получится выполнить 80 мм, то хорошо, если не получится, то 70-60-50....
5) Увидел на тему с проблемой эха - http://soundmoderator.org/viewtopic.php?f=3&t=2089&p=13462. Я правильно понимаю, что у меня в гостиной/кухне/коридоре будет такая же проблема? Мебели мало, из гасителей звука только диван, книжный шкаф вдоль перегородки в гардеробной, возможно шторы.
любая пустая комната всегда является гулкой
6) Какой конкретно "полимерный вспененный материал" стоит применять вместо мин.ваты в ванной? Не лучше ли использовать материал, обеспечивающий одновременно и гидроизоляцию, например Шуманет-100Гидро (Акуфлекс Супер)?
химически сшитый пенополиэтилен, например, Изолон
...ничто не слишком...(с) Кармадон, "Альтист Данилов"
http://www.akustik.ua - акустическое проектное бюро
http://www.acoustic.ua - звукоизоляционные материалы
............................................
User avatar
Андрей Смирнов
Soundmoderator
 
Posts: 8791
Joined: 29 Aug 2006, 12:24
Location: Украина, Киев

Re: ЗИ в квартире в монолите при ремонте с нуля

Postby John Snow » 09 Mar 2016, 04:34

Андрей, спасибо за ответы.
Обнаружилась проблема по полу - не получается сделать выравнивающую стяжку. Есть жесткое ограничение на высоту ЗИ слоя+стяжки: максимум 10 см.
Выравнивающая стяжка получается 30мм, Paroc SSB1 - 20 мм и на чистовую стяжку остается чуть меньше 50 мм. Есть опасения из-за трещин и не нравится ухудшение ЗИ параметров пола (финишное покрытие не требовательно - ламинат и только в санузле и кухне плитка). Можно конечно сделать выравнивающую стяжку 20мм и сделать 10мм вырезы в Paroc под трубы отопления. Но тогда над трубами останется всего 10мм Paroc. Надо опасаться давления на трубы и как превентивную меру упаковывать их в каучук?

По поводу альтернативы - укладка труб на мин. вату и утопление в теле стяжки - я читал:
viewtopic.php?f=1&t=1830#p10376 -
viewtopic.php?f=1&t=1930&start=20#p13457
viewtopic.php?f=1&t=1868
viewtopic.php?f=1&t=2116
С учетом публичности форума, все равно посоветуете делать черновую стяжку, даже с толщиной чистовой стяжки 45-50 мм? Ответ можно в ЛС.

На других форумах видел и другие альтернативы:
1) Оставить трубы на перекрытии и просто накрыть их мин. ватой. http://goo.gl/5kqGx8 - см пункт 2. Все предостережения по поводу разрушения труб из-за давления стяжки остаются в силе?
2) Положить на перекрытие 1-слой мин. ваты и провести трубы в его стыках. Места стыков засыпать песком, а сверху положить тонкий ЗИ материал. Пример: https://goo.gl/kkY9q3 и https://goo.gl/t8f7bY
3) Оставить трубы лежать на перекрытии, закрыть их П-образным профилем или холмиком из черновой стяжки на манер "лежачих полицейских". Ваши предостережения про трещины в местах холмиков видел: viewtopic.php?f=1&t=1868&start=20#p12738. Мои рабочие клянутся, что армированная фиброй и сеткой стяжка не треснет. В моем случае из-за толщины мин. ваты в 20мм и 30 мм трубы отопления толщина стяжки над усилением будем 50мм, в остальных местах 80мм.
4) Сделать 20мм черновую стяжку а потом засыпать 20 мм слоем из гранул Шумопласт. Здесь вижу только ухудшение ЗИ параметров у Шумопласта по сравнению с мин. ватами.
Если не трудно, прокомментируйте пожалуйста и эти альтернативы.
John Snow
 
Posts: 2
Joined: 24 Feb 2016, 16:00
Location: Москва, Россия

Re: ЗИ в квартире в монолите при ремонте с нуля

Postby Андрей Смирнов » 09 Mar 2016, 13:43

John Snow wrote:Андрей, спасибо за ответы.
Обнаружилась проблема по полу - не получается сделать выравнивающую стяжку. Есть жесткое ограничение на высоту ЗИ слоя+стяжки: максимум 10 см.
Выравнивающая стяжка получается 30мм, Paroc SSB1 - 20 мм и на чистовую стяжку остается чуть меньше 50 мм. Есть опасения из-за трещин и не нравится ухудшение ЗИ параметров пола (финишное покрытие не требовательно - ламинат и только в санузле и кухне плитка). Можно конечно сделать выравнивающую стяжку 20мм и сделать 10мм вырезы в Paroc под трубы отопления. Но тогда над трубами останется всего 10мм Paroc. Надо опасаться давления на трубы и как превентивную меру упаковывать их в каучук?

По поводу альтернативы - укладка труб на мин. вату и утопление в теле стяжки - я читал:
viewtopic.php?f=1&t=1830#p10376 -
viewtopic.php?f=1&t=1930&start=20#p13457
viewtopic.php?f=1&t=1868
viewtopic.php?f=1&t=2116
С учетом публичности форума, все равно посоветуете делать черновую стяжку, даже с толщиной чистовой стяжки 45-50 мм? Ответ можно в ЛС.
Вы сами понимаете как будет правильно :)
На других форумах видел и другие альтернативы:
1) Оставить трубы на перекрытии и просто накрыть их мин. ватой. http://goo.gl/5kqGx8 - см пункт 2. Все предостережения по поводу разрушения труб из-за давления стяжки остаются в силе?
совет давал инженер, который не очень знаком со строительной практикой. Если трубопроводы уложить на слой минваты, то закрепить их к изоляционному слою будет невозможно. После заливки стяжки трубопроводы просто "всплывут" в растворе ЦПС.
2) Положить на перекрытие 1-слой мин. ваты и провести трубы в его стыках. Места стыков засыпать песком, а сверху положить тонкий ЗИ материал. Пример: https://goo.gl/kkY9q3 и https://goo.gl/t8f7bY
Так можно поступить, но песок субстанция сыпучая и со временем под динамической нагрузкой от ходьбы он распределится в толщу минваты, обнажив трубопроводы. Риски существуют...
3) Оставить трубы лежать на перекрытии, закрыть их П-образным профилем или холмиком из черновой стяжки на манер "лежачих полицейских". Ваши предостережения про трещины в местах холмиков видел: viewtopic.php?f=1&t=1868&start=20#p12738. Мои рабочие клянутся, что армированная фиброй и сеткой стяжка не треснет. В моем случае из-за толщины мин. ваты в 20мм и 30 мм трубы отопления толщина стяжки над усилением будем 50мм, в остальных местах 80мм.
ну если рабочие клянутся, то можно... :)
4) Сделать 20мм черновую стяжку а потом засыпать 20 мм слоем из гранул Шумопласт. Здесь вижу только ухудшение ЗИ параметров у Шумопласта по сравнению с мин. ватами.
Если не трудно, прокомментируйте пожалуйста и эти альтернативы.
...ничто не слишком...(с) Кармадон, "Альтист Данилов"
http://www.akustik.ua - акустическое проектное бюро
http://www.acoustic.ua - звукоизоляционные материалы
............................................
User avatar
Андрей Смирнов
Soundmoderator
 
Posts: 8791
Joined: 29 Aug 2006, 12:24
Location: Украина, Киев

Re: ЗИ в квартире в монолите при ремонте с нуля

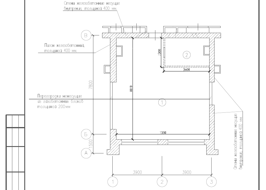
Postby Doc » 21 Mar 2016, 13:55

Доброго дня!
Андрей, спасибо за ценный ресурс и Ваш труд. Многое прочитал, но не удалось найти правильного решения на некоторые вопросы. Надеюсь, John Snow не против продолжения в его теме, тк мой вопрос частично перекликается с темой.
Ситуация у меня традиционная: дом-новостройка монолит, перекрытие монолит без изоляции, материал стен пустотелый шлакоблок 20 см и 1 стена монолит, внешняя пустотелый красный кирпич). Соседи по периметру звукоизоляцию не делали, также в некоторых местах в стену встраивали щитки и тд. Основная цель – звукоизоляция стояков и воздуховодов центральной приточно-вытяжной системы (очень шумные стояки водоснабжения и шумный воздушный поток), при этом желательно достигнуть оптимальной звукоизоляции от внешних шумов при минимально возможном бюджете и размере конструкций. К сожалению, при моем бюджете достигнуть полноценной изоляции не удастся. Планирую устроить плавающий пол (армированная стяжка на звукоизоляторе), перегородки ГКЛ, звукоизоляцию подвесного потолка, теплоизоляцию внешней стены (нарушение технологии застройщиком – между кирпичами с улицы дует ветер). Трубы отопления из коридора и электрические провода, если я правильно понял лучше проводить под звукоизолятором с фиксацией к перекрытию.
На первом этапе столкнулся с вопросом устройства плавающего пола, тк в квартире расположено 2 пилона и спустя некоторое время после завершения строительства на 120 см вокруг пилонов была устроена бетонная «отмостка» (квадратный порожек высотой около 6 см). Порожки расположены очень неудачно на границе спальни/комнаты и частично в санузле и кухне.
Вопрос по последовательности и толщине слоев: из ответов понимаю, что желательно устроить массивную стяжку (до 75% от перекрытия), но получается с учетом «порожка» 6 см + 2 см paroc ssb-1 + 6 см минимум на плавающий пол уже 14 см без отделки. Чем лучше выводить общий уровень пола до уровня отмостки? Что лучше: заполнить все 6см paroc (над отмосткой будет 2 см и это уже 8 см на всей остальной площади - имеет ли смысл..) и сверху 6 см на армированную стяжку на всю площадь или возможно иное решение и замена материалов, тк может «барабан» получиться и в любом случае над отмосткой минимальный слой звукоизоляции 2 см? или например, уменьшить толщину стяжки над порожками и увеличить толщину стяжки на остальной площади, но порожки в основном в спальне… и какая минимальная толщина стяжки над упругим основанием допустима для монтажа сверху перегородок ГКЛ (точнее, в основном проемов в перегородке)? на схеме пилоны выделены красным и до серой линии "порожек".
Расчет сантиметров еще усугубляется, тем что «рекомендованная» дверь установлена на пол с плиткой в подъезде и открывается внутрь на высоте около 5 см от перекрытия))) Дверь нужно заказывать новую, но как бы дверь в итоге полутораметровая не получилась))).
Буду очень признателен, если сможете помочь.
Attachments
1-02 пилоны.JPG
1-02 пилоны.JPG (64.02 KiB) Viewed 5178 times
Doc
 
Posts: 2
Joined: 21 Mar 2016, 12:36


Return to Звукоізоляція

Who is online

Users browsing this forum: No registered users and 12 guests