Vibrofix

Звукоизоляция и экологичность материалов

Обговорення проблем захисту від шуму, звукоізоляції приміщень, віброізоляції обладнання.
Проєктування, матеріали, вимірювання

Звукоизоляция и экологичность материалов

Postby Илья Муромец » 13 Mar 2015, 00:37

Андрей, добрый день.
Прежде чем создать отдельную тему честно прочитал большую часть ранее созданных, но не нашел ответа на все имеющиеся у меня вопросы.

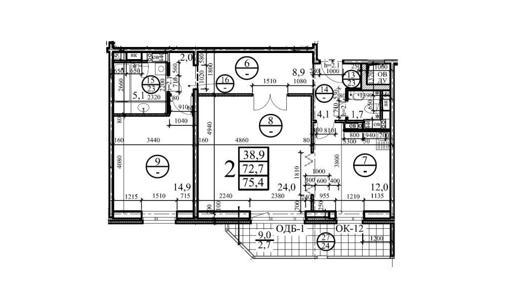
Объект: двухкомнатная квартира 75 метров в монолитном доме (схема - экспликация от застройщика во вложении, вставить непосредственно в текст письма не получилось). Т.к. из предыдущей квартиры переехали из-за шума, то сейчас надеемся предусмотреть все аспекты заранее.

Высота потолков 3,1 м. Максимальная возможная конструкции пола 10-12 см ограничена перепадом пола в общем холе и в квартире. В квартире возведена только одна несущая стена между 2 комнатами, стены между большой комнатой и коридором с кухней нет (хоть на плане застройщика они и отмечены). При этом рекомендованные стены будут возведены в виде каркасов из ГКЛ или из блоков и дверь в большую комнату будет только со стороны коридора.

Вопросы следующие:

1.Потолок.
Потолок будем делать подвесной: каркас, минвата, два слоя ГКЛ.
1.1. Применять специальные виброподвесы Vibrofix Protector будем только в большой комнате (24 м2) т.к. планируем там спальню и домашний кинотеатр, а в остальном будем использовать обычные подвесы из-за большой разницы в цене (6 и 160 рублей за шт.) На квадрат как мне сказали надо 6 шт. Не сведут ли на нет обычные крепления шумоизоляцию в других комнатах и есть ли им замена?

1.2. Строители советуют использовать вату РОКВУЛ акустик баттс 50 мм или 100 мм. Изучив вопрос в интернете я понял, что вата бывает с содержанием фенолформальдегидных смол и без. Вата с указанными веществами запрещена как я понял в Германии, а также имеет негативную оценку некоторыми здравоохранительными организациями, в соответствии с которой она может приводить к онкологическим заболеванием. Вата же АкустиKNAUF Expert не содержит данного вещества. Подскажите в чем правда и вату какой марки и толщины лучше использовать в данной конструкции потолка?

1.3. Как данный потолок должен прилегать к несущей и возведенной каркасной стене? Много схем от КНАУФ и других организаций, я честно говоря запутался.

2. Пол
С полом несколько сложнее. Как я сказал, допустимая толщина 10-12 см. Необходимо избавить соседей снизу от ударного шума и главное себя от воздушного. По ударному шуму решений очень много, а по воздушному нет. Строители рекомендуют Шуманет 100 или вибростоп и сверху стяжку, но на сколько я понимаю, он не защищает от воздушного шума.

2.1. Скажите какая конструкция толщиной 10 -12 см с учетом монолитной плиты перекрытия будет оптимальной по изоляции воздушного шума?
(читал ваши рекомендации по AcousticWool Floor и Paroc SSB-1 + армированная стяжка, можете сориентировать по соотношению толщины ваты и стяжки?)

2.2 Можно ли применять данные конструкции в помещениях где планируется плитка в качестве напольного покрытия?

3. Монолитная стена разделяющая две комнаты, по всем правилам также должна передавать звук от меня соседям и наоборот. Надо ли ее изолировать, если целью стоит не создать бункер, а убрать бытовые шумы + музыку и телевизор? Не хочется делать каркас с ватой, есть ли менее объемно и затратное решение?

4. Домашний кинотеатр.
Хотим поставить в большой комнате телевизор и немного колонок (без фанатизма, но звук понятно будет чуть громче). Надо ли предусматривать дополнительное звукопоглащение? Можно ли использовать акустический поролон но внутри конструкций стен, а не снаружи?

Заранее благодарю Вас за ответ!
С уважением, Илья.



Заранее благодарю за ответ!
Attachments
Схема квартиры.jpg
экспликация
Схема квартиры.jpg (72.74 KiB) Viewed 10351 times
User avatar
Илья Муромец
 
Posts: 2
Joined: 11 Mar 2015, 23:07
Location: Москва

Re: Звукоизоляция и экологичность материалов

Postby Андрей Смирнов » 13 Mar 2015, 18:44

Илья Муромец wrote:Вопросы следующие:

1.Потолок.
Потолок будем делать подвесной: каркас, минвата, два слоя ГКЛ.
1.1. Применять специальные виброподвесы Vibrofix Protector будем только в большой комнате (24 м2) т.к. планируем там спальню и домашний кинотеатр, а в остальном будем использовать обычные подвесы из-за большой разницы в цене (6 и 160 рублей за шт.) На квадрат как мне сказали надо 6 шт. Не сведут ли на нет обычные крепления шумоизоляцию в других комнатах и есть ли им замена?
расход Vibrofix - 2,3 крепления на квадратный метр
1.2. Строители советуют использовать вату РОКВУЛ акустик баттс 50 мм или 100 мм. Изучив вопрос в интернете я понял, что вата бывает с содержанием фенолформальдегидных смол и без. Вата с указанными веществами запрещена как я понял в Германии, а также имеет негативную оценку некоторыми здравоохранительными организациями, в соответствии с которой она может приводить к онкологическим заболеванием. Вата же АкустиKNAUF Expert не содержит данного вещества. Подскажите в чем правда и вату какой марки и толщины лучше использовать в данной конструкции потолка?
вопросы экологичности минваты обсуждались здесь много раз. Никаких запретов, о которых вы пишете нигде нет, в т.ч. и в Германии. Содержание формальдегида в минвате известных производителей меньше, чем обычном мебельном ДСП в 3-10 раз.
1.3. Как данный потолок должен прилегать к несущей и возведенной каркасной стене? Много схем от КНАУФ и других организаций, я честно говоря запутался.
В альбомах чертежей обычно приведены типовые конструкции. Все возможные варианты примыкания предусмотреть просто невозможно.

2. Пол
С полом несколько сложнее. Как я сказал, допустимая толщина 10-12 см. Необходимо избавить соседей снизу от ударного шума и главное себя от воздушного. По ударному шуму решений очень много, а по воздушному нет. Строители рекомендуют Шуманет 100 или вибростоп и сверху стяжку, но на сколько я понимаю, он не защищает от воздушного шума.
не защищает от воздушного шума
2.1. Скажите какая конструкция толщиной 10 -12 см с учетом монолитной плиты перекрытия будет оптимальной по изоляции воздушного шума?
(читал ваши рекомендации по AcousticWool Floor и Paroc SSB-1 + армированная стяжка, можете сориентировать по соотношению толщины ваты и стяжки?)
20-30 мм AcousticWool Floor и Paroc SSB-1 + армированная стяжка 60-80 мм
2.2 Можно ли применять данные конструкции в помещениях где планируется плитка в качестве напольного покрытия?
вполне можно
3. Монолитная стена разделяющая две комнаты, по всем правилам также должна передавать звук от меня соседям и наоборот. Надо ли ее изолировать, если целью стоит не создать бункер, а убрать бытовые шумы + музыку и телевизор? Не хочется делать каркас с ватой, есть ли менее объемно и затратное решение?
это вопрос выбора. Со стороны спальни я бы рекомендовал изолировать бетонную стену
4. Домашний кинотеатр.
Хотим поставить в большой комнате телевизор и немного колонок (без фанатизма, но звук понятно будет чуть громче). Надо ли предусматривать дополнительное звукопоглащение? Можно ли использовать акустический поролон но внутри конструкций стен, а не снаружи?
любой звукопоглотитель внутри конструкций стен не будет "работать" на поглощение внутри комнаты. Звукопоглотитель должен быть открыт
Заранее благодарю Вас за ответ!
С уважением, Илья.



Заранее благодарю за ответ!
...ничто не слишком...(с) Кармадон, "Альтист Данилов"
http://www.akustik.ua - акустическое проектное бюро
http://www.acoustic.ua - звукоизоляционные материалы
............................................
User avatar
Андрей Смирнов
Soundmoderator
 
Posts: 8791
Joined: 29 Aug 2006, 12:24
Location: Украина, Киев

Re: Звукоизоляция и экологичность материалов

Postby Илья Муромец » 13 Mar 2015, 19:32

Александр, спасибо за ответ.
Позвольте уточнить:
1.2 В таком случае (1)какой толщины и (2)какую вату вы бы рекомендовали на потолок? Рассматриваю: Плиты KNAUF Insulation (АкустиKNAUF) и Роквул Акустик Баттс, может вы что -то еще посоветуете.
3. Как бы вы рекомендовали изолировать данную стену? Каркас и минеральная вата внутри или есть более компактный вариант?

С полом мне понятно, спасибо.
User avatar
Илья Муромец
 
Posts: 2
Joined: 11 Mar 2015, 23:07
Location: Москва

Re: Звукоизоляция и экологичность материалов

Postby Андрей Смирнов » 13 Mar 2015, 21:30

Илья Муромец wrote:Александр, спасибо за ответ.
Позвольте уточнить:
1.2 В таком случае (1)какой толщины и (2)какую вату вы бы рекомендовали на потолок? Рассматриваю: Плиты KNAUF Insulation (АкустиKNAUF) и Роквул Акустик Баттс, может вы что -то еще посоветуете.
3. Как бы вы рекомендовали изолировать данную стену? Каркас и минеральная вата внутри или есть более компактный вариант?

С полом мне понятно, спасибо.

Я Андрей, спасибо... :)

1. Роквул Акустик Баттс
2. есть законы строительной физики, согласно которым для эффективной звукоизоляции необходимо выполнение конструкции по принципу "масса 1-упругость-демпфер-масса 2",
где
масса 1 это защищаемая стена,
упругость это воздушный промежуток,
демпфер это звукопоглотитель (минвата),
масса 2 это облицовка ГКЛ (ГВЛ, ОСБ, МДФ и т.п.).

Любые другие конструкции будут обладать меньшей эффективностью...
...ничто не слишком...(с) Кармадон, "Альтист Данилов"
http://www.akustik.ua - акустическое проектное бюро
http://www.acoustic.ua - звукоизоляционные материалы
............................................
User avatar
Андрей Смирнов
Soundmoderator
 
Posts: 8791
Joined: 29 Aug 2006, 12:24
Location: Украина, Киев

Re: Звукоизоляция и экологичность материалов

Postby sanches91 » 17 Mar 2015, 23:35

Здравствуйте! Ничего, если я сюда же напишу, вроде похожая шумка по материалам..

Планирую звукоизоляцию студии в новостройке, есть несколько вариантов, прошу помощи!
Форум читал, но остались вопросы..

Из-за ограниченного бюджета, буду делать только жилое помещение (без коридора и с/у).
Что имею:
20м2 жилой площади кухня-комната
дом монолитно-каркасный вроде как, т.е. нормальная стяжка, но перегородки из пеноблоков тонкие, слышно ВСЕ.
За одной стеной соседи будут, за противоположной лестничный пролет, 3 стена балкон, 4 стена граничит с коридором.

Хочу сделать шумоизоляцию достойную, но не слишком дорогую (надеюсь)
На стены:
- мет. каркас из профилей к полу и потолку через вибростек М 1) один или два слоя?
- заполнить все ROCKWOOL Акустик Баттс 50мм
- зашить ГВЛ+ГКЛ
- по швам пройтись вибросилом
..тут вроде все понятно

На потолок: и сразу вопрос 2) начинать шумку надо со стен или с потолка?
Вариант 1

- потолок обязательно хочу на виброподвесы, но тут сразу удар по карману. 3)вопрос: Vibrofix PU или виброфлекс к15 слишком дорого выходит.
Хватит ли мне Vibrofix Protector или разница прям огромная будет?

ещё откопал в сети какие-то "ZES Vibro" подвесы по 100руб., но информации по ним нет почти, типа специализированные виброизоляционные элементы, но они без силомера конечно, может кто-то сталкивался?

- рассчитал кол-во Vibrofix Protector, получилось примерно 45 шт. на площать 20м2, если нагрузка около 26-27кг. на м2, 4) подскажите, это нормальное кол-во, оптимально ли будут нагружены подвесы??

- 5) одноуровневый каркас из профиля или двухуровневый лучше?

- все заполнить ROCKWOOL Акустик Баттс 50мм

- далее как со стенами, зашить ГВЛ+ГКЛ+вибросил по швам вопрос 6) ГВЛ и ГКЛ стыковать вплотную или оставлять зазор ~2-3мм, для вибросил? (относится и к стенам)

Вариант 2.
Если получится договориться с соседями сверху, чтобы они сделали у себя плавающий пол 7) достаточно ли будет положить под стяжку что-то типа шуманет 100 супер от структурного шума? Или может достаточно будет просто положить шуманет 100 супер под, скажем, ламинат?

Допустим с соседями договорился.
Что если:
- закрепить плиты ROCKWOOL Акустик Баттс 100мм прямо к потолку анкерами-зонтиками
- закрыть герметично роквул какой-нибудь плёнкой, чтобы не сыпался
- установить акустический натяжной потолок типа clipso или перфорированный (подробно не разобрался ещё)

Вариант 3.

Потратиться на нормальный плавающий пол соседям 8) какой приемлемый вариант плавающего пола посоветуете, чтобы можно было не делать шумку потолка у себя?
И не запариваться с подвесным потолком у себя в квартире вообще. Но я боюсь, что даже если сделать хороший пол соседям сверху, шум воздушный все равно пойдет по их стенам ко мне - и на мой потолок и на мои стены в итоге.

Поэтому склоняюсь к комплексной шумоизоляции, т.е. и стены и подвесной потолок Вариант 1. Ну и подложку соседям сверху купить потолще, типа Полифом Вибро 8 мм (до 24 дб) или Стенофон 5 мм хотя бы, т.к. на шумаНЕТ 100 уже и денег НЕТ (не хватит наверно)

В общем помогите пожалуйста советами, голову ломаю, вопрос для меня серьезный.
Заранее благодарю за ответы!
sanches91
 
Posts: 1
Joined: 14 Mar 2015, 02:17


Return to Звукоізоляція

Who is online

Users browsing this forum: No registered users and 16 guests

cron