Всем добрый день!
Прошу помощи и совета в решении задачи частичной звукоизоляции квартиры.
Несколько дней читала ваш форум, было очень интересно и познавательно. А учитывая то, что по образованию я инженер радиосвязи даже ностальгия нахлынула - сразу вспомнились лабораторные по акустике со "звонкой" и "глухой" комнатой, в ходе которых мы исследовали затухание сигнала в зависимости от частоты и ЗИ свойств материала. Но это было давно, да и на практике я с этой тематикой никогда не сталкивалась, поэтому остались вопросы.
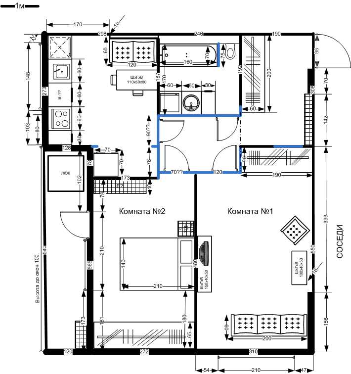
Исходные данные по квартире:
Двухкомнатная квартира в кирпичном 15 этажном доме (башня Вулыха), 15 этаж из 15. Наружные стены - кирпич 510мм, внутренние стены (межквартирные) - гипсобетонные панели 200мм, перегородки - гипсобетонные панели 80мм, перекрытия - многопустотные панели 220мм.
Так как мой этаж - последний жилой (над нами тех этаж), ЗИ потолка не интересует. На тех этаже только мотор лифта, расположенный не рядом с нами. Но предвижу проблемы шума от соседей, и от членов своей семьи внутри квартиры. Поэтому...
Постановка задачи:
1) Звукоизоляция пола - не мешать соседям снизу (ЗИ ударного шума) и чтобы они не мешали мне (ЗИ воздушного шума).
2) Звукоизоляция стены в комнате №1 примыкающей к соседям (ЗИ воздушного шума от соседей, основной источник шума - вопли капризного ребенка, остальные - человеческая речь и ТВ, источников низких частот нет). Идеально общая ЗИ > 60 дБ
3) Звукоизоляция внутриквартирной стены между комнатой №1 и №2 (ЗИ воздушного шума от обычного ТВ примыкающего к стене, чтобы не мешало человеку с другой стороны лежащему на кровати головой к общей стене). Идеально общая ЗИ > 60 дБ
Планируемая финишная отделка. Стены - обои под покраску, пол в комнатах - паркет, пол в остальных помещениях - керамогранит.
Вопросы:
1) ЗИ пола.
Изначально хотели делать "плавающий пол" перекрытие > шумостоп (1 слой) > полусухая стяжка 60мм, монтаж внутриквартирной электрики в слой ЗИ материала. Но после демонтажа старого пола (это был паркет, положенный на стяжку с большим содержанием песка), оказалось что перекрытия ОЧЕНЬ неровные. Перепады более 3см, много ям и выбоин частично засыпанных строительным мусором. По технологии укладки большинства ЗИ материалов, о которых я прочитала, это слишком большие перепады для их корректной укладки.
Вопрос - как оптимальнее сделать шумоизоляцию и стяжку в данной ситуации? Оптимальнее для меня - соотношение приемлемой ЗИ для соседей снизу (мы сами не шумные), цена вопроса и сроки исполнения (например, если делать черновую стяжку, потом ждать пока она полностью высохнет, потом ЗИ и основная стяжка, ждать пока она высохнет, потом финишное покрытие - то это видится дорогим и долгим).
Прочитала что стяжка пола из полистиролбетон обладает ЗИ свойствами. Что скажите?
2) ЗИ стены от соседей.
Стена примыкающая к квартире соседей состоит из 2х частей: толстая часть (несущая конструкция, кирпич ??) и "проем" в ней заделанный гипсобетонными панелями 200мм (так что в стене получается ниша глубиной 16мм). Слышно как за стеной плачет ребенок, и наставления взрослых.
Вопрос - достаточно ли выложить ЗИ только нишу или требуется изолировать всю стену? Какой материал лучше применить? Смотрела в сторону панелей ЗИПС. Или лучше поставить еще одну стену из гипсолита (80 мм)?
3) ЗИ межквартирной стены.
С какой стороны лучше возводить ЗИ конструкцию (со стороны источника шума или приемника)? Какой материал выбрать из соображений экологичности, экономичности по цене и съедаемому пространству?
