Vibrofix

Планировка студии на цокольном этаже

Обговорення проблем захисту від шуму, звукоізоляції приміщень, віброізоляції обладнання.
Проєктування, матеріали, вимірювання

Планировка студии на цокольном этаже

Postby Наблюдатель » 07 Jun 2013, 17:35

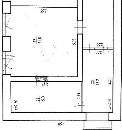
Порекомендуйте,пожалуйста, какие меры предпринять по звукоизоляции и акустике этого помещения(см.вложение).
Это цокольный этаж- верхняя часть окон над землёй выступает на 35-40см. Потолки высокие. Точно не скажу ,но на глаз 3м. точно есть. Квадратное помещение,то что (22) планируется как тон-зал ( запись вокала и инструментов,барабаны). Крестиками перечеркнуты окна- хотят их заделать.
Прямоугольное помещение (21) планируется как контрольная комната. там есть не капитальная перегородка (где написано 2.55). помещение (20) это как прихожка,но слишком жирно для этих целей. Думаю лучше соединить с контрольной,убрав перегородку. окно в помещении (20) замуровали. Над этими помещениями,на 1-м этаже находится концертный зал. Это муз.школа. Концерты по вечерам и не часто. Внешние стены у помещения толстые- 50-60 см.

Как лучше изолировать? Как быть с акустикой? Где рубить окно для связи контрольной с тон-залом? Делить ли тон-зал на отдельную вокальную? Замуровывать ли окна?

Деньги пробиваются бюджетные. Сколько- неизвестно. Но всяко,не много. Пока они там сами не понастроили,подскажите,пожалуйста,как грамотнее всё распланировать.
Заранее благодарен.
Attachments
plan v msh.jpg
plan v msh.jpg (25.72 KiB) Viewed 3104 times
Наблюдатель
 

Re: Планировка студии на цокольном этаже

Postby Наблюдатель » 16 Jun 2013, 04:22

А что если комнаты местами поменять? 22- контр.комната, 20-21 тон-зал.
Наблюдатель
 

Re: Планировка студии на цокольном этаже

Postby Наблюдатель » 01 Dec 2013, 19:09

Как угодить роспотребнадзору при отделке помещения? это муз.школа- там стены мыться должны.
Наблюдатель
 


Return to Звукоізоляція

Who is online

Users browsing this forum: No registered users and 16 guests

cron